פרויקטים של בתים וקוטג'ים עשויים לבנים: הכנה נכונה ובקרת בנייה
התוצאה הסופית בבניית מבנים שונים תלויה במידה רבה בתכנון נכון. פרויקטים בבנייה מאפשרים לך לקחת בחשבון את צריכת החומרים ועבודות הסקר, עלות הנחת התקשורת והנחות טכניות אפשריות. בפרסום זה נספר כיצד ליצור פרויקטים של בתים לבנים וקוטג'ים, תוך התחשבות בכל דרישות האדריכלות וקודי הבנייה. עורכי המגזין המקוון homebase.decorexpro.com/iw/ יספרו לכם על התכונות של יצירת פרויקטים, היתרונות והחסרונות של פתרונות סטנדרטיים שונים. גם בסקירה ישנם פתרונות מוכנים שכבר יושמו בפועל.
תוכן המאמר
- 1 פרויקטים של בתים לבנים וקוטג'ים כבסיס לבנייה אמינה
- 2 מהם הפרויקטים של בתים וקוטג'ים עשויים לבנים
- 3 יסודות תכנון נכון של חלקים עיקריים
- 4 כיצד לבחור פרויקט קוטג 'לבנים - המלצות צוות המערכת שלנו עם דוגמאות בתמונה
- 5 סקירה של פרויקטים של בתי פרימיום יפים ושטחי לבנים גדולים
- 6 פרויקטים של בתי לבנים בגזרת המחירים הכלכליים
- 7 מידע נוסף
- 8 סרטון עם דוגמאות לפרויקטים של בתים וקוטג'ים עשויים לבנים
פרויקטים של בתים לבנים וקוטג'ים כבסיס לבנייה אמינה
חומר בנייה זה שימש לבניית בתים במשך אלפי שנים. למרות התפתחות הטכנולוגיה, עדיין משתמשים בגרסה הקלאסית - לבנים מחימר אפוי. לאחר עיבוד כזה, מוצרי קרמיקה עם מאפיין של צבע אדוםעם התנגדות מוגברת להשפעות חיצוניות שונות. גרסה מודרנית, לבני סיליקט לבנות או צהובות נוצרות מחול קוורץ עם סיד. הם נבדלים על ידי נקבוביות מוגברת ותכונות בידוד טובות יותר.
לייצור שינויים כאלה משתמשים במלט פורטלנד עם דולומיט כתוש, שיש וסלעים אחרים. מראה אידיאלי המתאים לקישוט. לפעמים נוצרת צורה מורכבת לחיקוי אבן טבעית. סדרות פנים נוצרות עם מבחר זהיר יותר של חומרי גלם. על פי ה- GOST הנוכחי, הסטיות ברוחב, באורך ובגובה לא יעלו על 3, 4 ו- 2 מ"מ, בהתאמה. מוצרים כאלה משמשים ללא טיח דקורטיבי... יתרונות מהותיים:
- חוזק גבוה;
- חוסר בעירה;
- עמידות בפני לחות, כפור וחום, נרקב והשפעות ביולוגיות אחרות;
- עֲמִידוּת;
- ניקיון אקולוגי.
אתה יכול לעבוד עם חומרים כאלה לבד. המוצרים מתאימים היטב לשיפוץ ומודרניזציה. הם משמשים להקמת קירות ראשיים ומחיצות, מבנים רב קומות ובנייני חוץ.
החיסרון הוא העלות הגבוהה יחסית. היגרוסקופיות מסוימת מכריחה התקנה של שכבת טיח. לירידה מוליכות תרמית ליצור לבנים עם חללים פנימיים.
מהם הפרויקטים של בתים וקוטג'ים עשויים לבנים
חבילת תיעוד מלאה חייבת להכיל מידע על האתר, רשתות הנדסה. נתונים אלה משלימים את הדרישות של משתמשים עתידיים. מידע מצטבר משמש לעריכת מפרט טכני. זה מציין את ההרכב הרצוי שטח החדרים, פרמטרים בסיסיים אחרים.
פרויקטים של סקיצה
אתה יכול להתחיל בהכנת תיעוד פשוט. למרות שם זה, עיצוב טיוטה טיפוסי מכיל הרבה מידע שימושי:
- תוכנית כללית;
- תכניות קומה בודדות וחתכים;
- סוגי חזיתות וציור פרספקטיבה.
במקרים מסוימים יש להניח שהדמיה נפחית עם דוגמאות מחשב. פנים... בהערת הסבר מקוצרת, ניתן תיאור כללי של העיצוב עם האינדיקטורים הטכניים והכלכליים העיקריים.
פרויקטים אופייניים ואישיים
החבילה המוגמרת מכילה מידע הדרוש לרכישת חומרים, ביצוע פעולות עבודה ורישום חפץ. כדי להאיץ את התהליך ולמנוע עלויות מיותרות, הדרך הקלה ביותר היא לפנות לפרויקטים סטנדרטיים מוכנים. יש חברות מתמחות שמוכנות לקחת על עצמן את כל העבודה המלוכלכת ולהכין פרויקט תוך התחשבות בכל הדרישות הנדרשות, כמו גם עזרה בהכנת מסמכים. פרויקטים אופייניים של בית לבני בן שתי קומות ניתן למצוא ללא קושי במקורות אינטרנט פתוחים, לקחת אותו כבסיס ובהתייעצות עם מומחים להתאים אותו לצרכים שלכם. ניתן לשנות את הגודל, את מיקום המחיצות, את צורת החלונות ופתחי הדלתות. קביעות שונות בפסקאות הנוגעות לתיאור מערכות אספקת החשמל והחימום. בנפרד, תוכלו לקחת בחשבון פתרונות עיצוב עתידיים.
פרויקט אישי מ- "A" ל- "Z" נוצר כאשר יש צורך מיוחד. במקרה זה עלותו עולה משמעותית מכיוון שיש צורך לבצע מחדש את החישוב ועבודה אחרת. התהליך אורך זמן רב.
יסודות תכנון נכון של חלקים עיקריים
בחלק זה של הפרסום, חבילת תיעוד לבניית בתי לבנים וקוטג'ים נחשבת ביתר פירוט. מידע זה יהיה שימושי בקניית מוכנה ובשלב הכנת פרויקט חדש. הם יעזרו לך לא לשכוח מניואנסים חשובים.
קטע אדריכלי ובונה בפרויקט
החלק הכללי מתחיל בהערת הסבר. בנוסף לאינדיקטורים כלכליים וטכניים מפורטים, יש מידע על כמות החומרים לקירות, גגות ואלמנטים מבניים אחרים. תרשים תוכנית האב מציין את מיקום הבניין הראשי, מוּסָך, אמבטיות, בנייני חוץ פרטניים.
רישומים כאלה שימושיים להתנסות בצבע, מרקם, חומרי גימור.
החלק המבני נדרש גם כאשר משתמשים בפרויקט מוכן לבית וקוטג 'לבנים. כאן מתבצעים חישובי עומסים תוך התחשבות בסוג הגג שנבחר ושינויים אחרים שבוצעו. תגבור מפותח תוך התחשבות בסייסמיות של האזור, במוזרויות הגיאולוגיה בחלקה היבשתית. הם מחשבים בנפרד:
- מגשרים, טרסות, מעליות מדרגות;
- רצפות בין רצפות;
- מסגרת מסבךעם לגג.
החלק ההנדסי של הפרויקט
החבילה הסטנדרטית כוללת שרטוטים יחד עם הערות הסבר לכל המערכות:
- חשמל, גז, אספקת מים;
- הַסָקָה;
- בִּיוּב ו תעלת ניקוז;
- אוורור, הַתנָיָה;
- הגנה מפני ברקים קרקוע;
- מכבי אש ו אזעקת אבטחה;
- רשת מחשבים;
- תקשורת טלפונית;
- הטלוויזיה.
הערה! מערכות מסוימות מתוכננות בנפרד עבור פנים וחוץ.
כיצד לבחור פרויקט קוטג 'לבנים - המלצות צוות המערכת שלנו עם דוגמאות בתמונה
ראשית, עליך ללמוד את תכונות הארץ:
- מיקום הכבישים המהירים קובע את פרמטרי המעברים.
- בקרקעות חלשות תזדקק ללוח או יסוד ערימה.
- מה שחשוב הוא המיקום היחסי של בנייני מגורים, בור ספיגה, בארות וחפצים אחרים בטריטוריה משלה וסמוכה.
- עם רמה גבוהה של מי תהום, בנוסף לחיזוק היסוד, ייתכן שיהיה צורך בכך מערכת ניקוז מיוחדת.
יתר על כן, מספר וגודל החדרים נקבעים תוך התחשבות בגידול הצפוי במשפחה, הגעת האורחים, תחביבי הבעלים ודרישות מיוחדות. אל תשכח מארגון מקום האחסון לרכבים בודדים. ערכו רשימה של בניינים נוספים על הקרקע. חוגגים צבע אישי, סגנון, העדפות טכניות ופונקציונליות.
סקירה של פרויקטים של בתי פרימיום יפים ושטחי לבנים גדולים
תקציב איתן מרמז על שימוש בחומרים איכותיים, רמת נוחות מוגברת, הנדסה חדישה. בתי הלבנים היפים המוצגים להלן בתמונה נוצרו תוך התחשבות בדרישות המוגברות של הבעלים העתידיים. ההערות מספקות פרטים שכדאי לשים לב אליהם בעת בחינת הצעות השוק הנוכחיות.
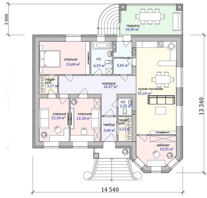
פרויקט בית לבנים אדומות עם תצלום של החזית
| קְבוּצָה | אפשרויות | הערכים |
|---|---|---|
| אינדיקטורים טכניים | מספר הקומות | 2 |
| מספר חדרים | 4 | |
| סה"כ / שטח מגורים, מ"ר | 254/69,4 | |
| מאפייני עיצוב | קירות חיצוניים | לבנה חלולה מקרמיקה מבודדת 250 מ"מ עם לוחות צמר מינרלים 120 מ"מ. |
| מחיצות | לבנים 120 מ"מ. | |
| גג | רפסודה עם אריחי מתכת. |
בכפרים מסוימים, גדרות אינן נכללות במיוחד כדי לפשט את השליטה בשטח על ידי שירות הביטחון שלהם.
מאמר קשור:
התוכנית של בית בן קומה אחת. פרויקטים של בתים בגדלים שונים עם מרתף, מוסך ועליית גג, כיצד לפתח נכון פרויקט של רשתות הנדסיות בבית, ייעוץ שימושי ממומחים - תמצאו בפרסום.
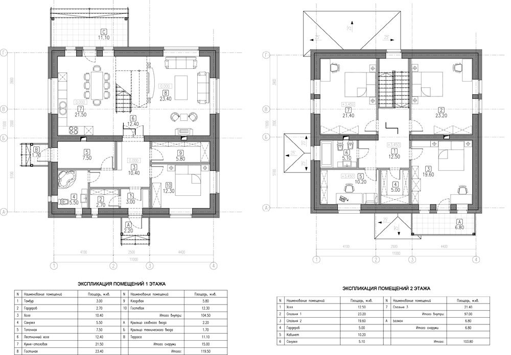
פרויקט בית לבנים לבן עם תצלום של החזית
| קְבוּצָה | אפשרויות | הערכים |
|---|---|---|
| אינדיקטורים טכניים | מספר הקומות | 2 |
| מספר חדרים | 5 חדרי שינה, 2 חדרי אמבטיה | |
| שטח כולל, מ"ר | 201 | |
| גובה התקרה של הקומה הראשונה / השנייה, ס"מ | 315/300 | |
| מאפייני עיצוב | קירות חיצוניים | בלוקים מבטון חרס מורחב 390 מ"מ עם בידוד 250 מ"מ עם לוחות צמר מינרלים 120 מ"מ. מול לבנים לבנות. |
| קרן | לוח בטון מזוין מונוליטי. | |
| גג | שלבקת חוגרת מתכת / גמישה לבחירתכם. |
פרויקט בית לבנים חום, שימוש בצבעים אחרים
| קְבוּצָה | אפשרויות | הערכים |
|---|---|---|
| אינדיקטורים טכניים | מספר הקומות | 2 |
| מספר חדרים | 4 | |
| סה"כ / שטח מגורים, מ"ר | 201/79 | |
| גובה התקרה של הקומה הראשונה / השנייה, ס"מ | 315/300 | |
| מאפייני עיצוב | קירות חיצוניים | בלוקים עשויים בצפיפות בטון קצף 600 עם לבני קרמיקה הפונות. |
| קרן | סרט מונוליטי מבטון C16 / 20. | |
| גג | אריחי מתכת על מערכת הקורות. | |
| חוֹפֵף | מעל המוסך יש לוחות בטון מזוין. בשאר יש קורות עץ. |

תמונה זו מציגה גדר לבנים צהובה. ניתן לחזור על גימורי צבע מנוגדים מרהיבים ליצירת מבנים אדריכליים שונים על הקרקע
פרויקטים של בתי לבנים בגזרת המחירים הכלכליים
הכנה זהירה תאפשר שימוש רציונלי בכספים הזמינים. תמונות של בתים יפים עשויים לבנים עם התיאורים בסעיף זה מדגימים בבירור את הפוטנציאל הרחב.
פרויקט בית לבנים בן קומה אחת
| קְבוּצָה | אפשרויות | הערכים |
|---|---|---|
| אינדיקטורים טכניים | מספר הקומות | 1 |
| מספר חדרים | 4 | |
| סה"כ / שטח מגורים, מ"ר | 122,5/62,2 | |
| מאפייני עיצוב | קירות חיצוניים | לבנה חלולה מקרמיקה מבודדת 250 מ"מ עם לוחות צמר מינרלים 120 מ"מ. |
| מחיצות | לבנים 120 מ"מ. | |
| גג | רפסודה עם אריחי מתכת. |
מאמר קשור:
פרויקטים של בתים חד קומתיים עד 100 מ"ר. M. מבר, קוביות קצף, לבנים, על מסגרת מתכת ועץ, היתרונות והחסרונות של העיצוב, צילומי פריסות - בפרסום שלנו.
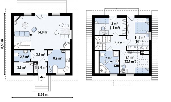
פרויקט בית לבנים עם עליית גג
| קְבוּצָה | אפשרויות | הערכים |
|---|---|---|
| אינדיקטורים טכניים | מספר הקומות | עליית גג 1 + |
| מספר חדרים | 3 | |
| שטח כולל, מ"ר | 107 | |
| שטח בניין, מ"ר | 64 | |
| מאפייני עיצוב | קירות חיצוניים | בלוקים מבטון קצף, צמר מינרלים, לבני קרמיקה. |
| קרן | בטון מזוין, מונוליטי. | |
| גג | אריחי מתכת או קרמיקה. |
במבנים כאלה התכנון מתבצע בזהירות רבה. השתמש בכל האזור הניתן לשימוש. לפעמים משמש אזורי עליית גג, אך במקרה זה, יתכן עלייה משמעותית בעלות העיצוב, אשר נובעת מעיצוב מורכב יותר גג מבודד... חלונות עבור אפשרות הרכבה זו יקרים יותר מהדגמים הסטנדרטיים.
מאמר קשור:
בית עם עליית גג: פרויקטים, תמונות. מבני עליית גג הם רעיון מעשי ואטרקטיבי מאוד לחלקה פרטית.פרויקטים, תמונות של חללי פנים מוצלחים והמלצות של בונים מנוסים נמצאים בחומר שלנו.
פרויקט בית לבנים בן שתי קומות
| קְבוּצָה | אפשרויות | הערכים |
|---|---|---|
| אינדיקטורים טכניים | מספר הקומות | 2 |
| מספר חדרים | 3 חדרי שינה | |
| שטח כולל, מ"ר | 113 | |
| מאפייני עיצוב | קירות חיצוניים | אפשר להשתמש בלבני קרמיקה, בלוקים מבטון מוקצף. בידוד צמר מינרלים 50-100 מ"מ. |
| קרן | מונוליטי מבטון מזוין. | |
| גג | אריחי מתכת, גמישים או קרמיקה. |
מאמר קשור:
תוכניות לבתים דו קומתיים. היקף ותכונות ייחודיות, יתרונות וחסרונות, חומרים; פריסות בתים 9x9, 10x10, 7x7, 6x8, 6x10, 9x6, 12x12 מטר - בפרסום שלנו.
מידע נוסף
תצלום של בית לבנים בן קומה אחת או אחרת מדגים פרמטרים אסתטיים בלבד. העיצוב צריך ללמוד את המאפיינים הטכניים. עמידות הגימור ולוח הזמנים לתחזוקה חיוניים.
השתמש בתגובות לפרסום כדי לקבל תשובות לשאלות אחרות. השאירו כאן את ההערות, העצות שלכם, שתפו את החוויה שלכם בבחירת פרויקטים וטכנולוגיות בנייה.
















































