פרויקטים של בתים חד קומתיים עד 100 מ"ר. מ ': אלגוריתם ליישום מוצלח של תוכניות בעלויות סבירות
בניין קטן, עם מתווה נכון, מסוגל למלא לא רק צרכים בסיסיים אלא גם מורחבים. במקביל, ניתן לחסוך זמן וכסף. תקבל יתרונות אלו ואחרים לאחר קריאת החומרים המוצגים להלן. בסקירה של היום נשקול בפירוט הכנת פרויקט איכותי לבית בן קומה אחת עד 100 מ"ר. M.
תוכן המאמר
- 1 יתרונות וחסרונות של פרויקטים של בתים פרטיים חד קומתיים עד 100 מ"ר. M
- 2 תכונות של פריסה ובנייה של בית חד קומתי עד 100 מ"ר
- 3 באילו חומרים ניתן להשתמש כדי ליצור בית פרטי בן קומה אחת
- 4 דוגמאות לבתים חד קומתיים עד 100 מ"ר. מ ': תמונות של פריסות, תכונות הפרויקט
- 5 יתרונות וחסרונות של פרויקטים של בית עד 100 מ"ר עם עליית גג
- 6 באיזה סגנון תוכלו ליצור חזית של קוטג 'בן קומה אחת: תמונה עם הערות
- 7 המלצות לעבודה עם פרויקט: מה עדיף, הזמנה או פיתרון מוכן
- 8 עלות תכנון בית פרטי בן קומה אחת: סקירה של שירותים מיוחדים וטיפים שימושיים נוספים
- 9 וידאו עם פרויקטים של בתים חד קומתיים
יתרונות וחסרונות של פרויקטים של בתים פרטיים חד קומתיים עד 100 מ"ר. M
ראשית, פתרונות כאלה מוקדשים בגלל עלותם הסבירה. עם זאת, מחקר זהיר פרויקטים של בתים חד קומתיים יאפשר לך למצוא הטבות נוספות. נכס קטן זה מתאים למגורים זמניים בעונת הקיץ. זה תופס מינימום מקום בשטח. ניתן להשתמש בשטח "שמור" ליצירת עיצוב נוף מרהיב, להגדלת גן הגן / ירק, הקמת מבנים חיצוניים שונים.
פרויקט מתוכנן כראוי של בית בגודל של עד 100 מ"ר יסייע בארגון מגורים נוחים לאורך כל השנה למשפחה של 3-4 אנשים. במקרה זה יהיה צורך לשפר את מאפייני הבידוד, להתקין מערכת חימום.אך כל עבודות הבנייה, הגימור וההתקנה הכלליות קלות יותר לביצוע בהתחשב בגובה הנמוך יחסית של בניין בן קומה אחת.
היעדר מדרגות מדרגות לא רק מפשט את תכנון הפרויקטים של בתים חד קומתיים. זה מקטין מאוד את העומס האמיתי על משתמשים עתידיים ומגביר את רמת האבטחה. ניתן להבטיח יציבות של בניין בן קומה אחת באמצעות בסיס לא יקר, גם על קרקעות רכות, עם מי תהום ברמה גבוהה. הטווח הקצר ליישום תוכניות הבנייה הוא חיובי. ניתן לנצל את היתרון הזה עם הכנה זהירה.
החיסרון היחיד של מבנה קטן הוא השטח השימושי המוגבל. משפחה גדולה צריכה להגדיל את מספר הקומות כדי לענות על הצרכים המקבילים בכמות אדמה מוגבלת.
הערה! במקרים מסוימים יש צורך לצמצם את "נקודת הבנייה", תוך התחשבות במרחק המותר למתקני טיפול, צינורות ראשיים וקודי בנייה רלוונטיים אחרים.
תכונות של פריסה ובנייה של בית חד קומתי עד 100 מ"ר
הליך זה מתבצע תוך שימוש בנורמות החקיקה הנוכחית. בהמשך המידע יוכנס למאגר הקדסטרלי, ולכן יש לא לכלול שגיאות. עדיף להפקיד את יצירת פרויקטים של בתים חד קומתיים למומחים מתמחים במסגרת הסכם עם ציון העלות והערבויות הרשמיות.
דִיוּר משוכות, עצים, מסלולים, בור ספיגה ואובייקטים אחרים הוא נושא נרחב למאמר אחר. כאן נלמד ביתר פירוט כיצד להשתמש באופן רציונלי בשטח הזמין.
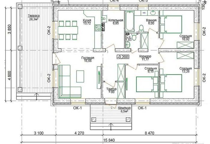
תוכנית זו מדגישה את הניואנסים הראויים לתשומת לב:
- בתנאי אקלים ביתיים, מוסך מבודד סגור (1) הוא חלק חובה בבניין מגורים בקטגוריה זו. עדיף לעשות את זה בצורה של הרחבה, ולא במרתף או במרתף. זה מפשט את יצירת ההגנה מפני חדירת ריחות לא נעימים וכימיקלים מסוכנים לאזור המגורים.
- טמבור (2) מותקן גם בהתחשב באקלים הקשה. זה מונע אובדן אוויר מחומם יקר. כאן הם מתקינים ארון אחסון בגדים ונעליים, מקומות ל ייבוש דברים.
- החלל המשותף של המטבח / סלון / חדר אוכל (3) הוא טכניקה אדריכלית אופיינית לפרויקטים של בתים חד קומתיים. זה מאפשר לך לשלב כמה אזורים פונקציונליים בנפח אחד. בנוסף לחיסכון במקום למחיצות, מתקבל מקום פנוי גדול.
- בפרויקט זה מזווה ממוקם ליד המטבח (4).
- לבילוי, ברביקיו, משחקי ילדים, פתוח גדול מרפסת (5) עם שקע נפרד (6).
- גרם מדרגות זה (7) מוביל אל עֲלִיַת גַג... שם, על פי הפרויקט, אתה יכול להציב חדרי שינה, חדר עבודה. את החדרים המתאימים יהיה עליכם להעביר לקומה הראשונה אם תעשה גג "קר".
- יהיה צורך בחדר נפרד (8) דוד דלק מוצק... קוֹמפָּקטִי גַז ו חַשׁמַלִי אנלוגים ניתן להתקין בארון של ריהוט למטבח.
- ניתן להגדיל את גודל חדר הרחצה עקב חדר האחסון.
דוגמה זו מראה עד כמה חשוב שלב התכנון. כדי לפשט את המשימה, יש צורך לערוך מראש רשימת קריטריונים חובה. לְהַגדִיר מספר חדרי שינה, חדרי ילדים, חדרי מגורים ושירותים נפרדים אחרים. רוחב המעברים מקל על התנועה.
בצורה זו, לא רק הפרויקט של בית בן 100 מ"ר. גברת עֲלִיַת גַגאלא גם את פריסת הרהיטים.בעזרת כלי תוכנה כאלה, אתה יכול להזיז ריהוט בודד, לשנות אלמנטים דקורטיביים, להתנסות בצבעים שונים.
ניתן לסובב אובייקט כזה על גבי מסך מחשב, להתקרב ולהתרחק ולצפות בו מצדדים שונים ומלמעלה. בלחיצה אחת על עכבר המחשב, הם מחליפים חלונות ודלתות, מוצלים קישוט חזית ו סוג חיפוי הגג.

החומרים הנתונים נוחים יותר בהשוואה לשרטוטים של פרויקטים של בתים חד קומתיים, אשר נוצרים בהתאם לנורמות הסטנדרטיות
אך בסופו של דבר יש צורך להכין תיעוד המובן עבור המבצעים. בנוסף לחלק הבנייה והגימור הכללי, יהיה צורך בתרשימים של רשתות חשמל, גז ורשתות הנדסיות אחרות. התוכניות מציינות את נקודות החיבור למכשירים טכניים. לחומרים הנלווים מתווספים רשימות חומרים, אלמנטים מבניים מפעליים, קוביות חלונות ודלתות ומוצרים אחרים. הם נדרשים כדי למצוא את הרכישות הדרושות ברשתות השיווק.
מאמר קשור:
התוכנית של בית בן קומה אחת. פרויקטים של בתים בגדלים שונים עם מרתף, מוסך ועליית גג, כיצד לפתח נכון פרויקט של רשתות הנדסיות בבית, ייעוץ שימושי ממומחים - תמצאו בפרסום.
באילו חומרים ניתן להשתמש כדי ליצור בית פרטי בן קומה אחת
בקבוצת כותרות המשנה הבאה מצויינים תכונות מוכרות. למד היטב את כל המידע לבחירה נכונה של פרויקטים של בתים חד קומתיים. שימו לב שחלק מהרכיבים המבניים עשויים מחומרים שונים.
פרויקטים של בתים מבר: נוחות וידידותיות לסביבה
שלא כמו בולי עץ, אלמנטים מעץ בצומת צמודים לשטח גדול יותר. זה משפר את ביצועי הבידוד מבלי להגדיל את עובי הקיר. חלקים כאלה נוצרים במפעל, כך שההרכבה לא מלווה בקשיים מיותרים. מוצרים איכותיים מיובשים בצורה אופטימלית, מוגנים על ידי הספגות מפני ריקבון ותופעות שליליות אחרות. היצרנים מספקים שרטוטים מפורטים כדי לפשט את ההרכבה. חלק מהמוכרים מציעים בתים עם עבודות התקנה מקצועיות.
| חוֹמֶר | מוליכות תרמית יבשה, W / m ° C | עובי דופן מומלץ לתנאי מזג אוויר אופייניים לאזור מוסקבה, ס"מ |
|---|---|---|
| קרן (אורן) | 0,09-0,11 | 27-28 |
| גושי קצף (בטון סודה בצפיפות של 500 ק"ג למ"ק) | 0,12-0,14 | 36-38 |
| גושי קצף (בטון סודה עם צפיפות של 400 ק"ג למ"ק) | 0,1-0,11 | 33-34 |
| לבנים (קרמיקה בצפיפות של 1300 ק"ג למ"ק) | 0,4-0,43 | 120-125 |

בחוץ ניתן להשתמש בצבע. במידת הצורך, התקן שכבה נוספת של בידוד תרמי עם מרווח אוורור עד לקיר. בפרויקטים של בתים חד קומתיים הם משתמשים חומרי קירוי קלים... ככלל, מבנה קל מותקן על זול בסיס רצועה... כדי להאיץ את התהליך, אתה יכול להשתמש בלוקים מבטון מזוין רגיל.
פיטונצידים טבעיים הכלולים בשרף העץ מרווים את האווירה בניחוחות נעימים וחומרים שימושיים. המבנה המיוחד של החומר יוצר מיקרו-אוורור של המקום. זה מפצה על הידוק יתר של חסימות חלונות ודלתות מודרניות.
הערה! בעת הצבת אלמנטים מבניים בודדים, יש לזכור את ההתנגדות הנמוכה של החומר לטמפרטורות גבוהות.יש להקפיד על תקנות בידוד סטנדרטיות בעת העברת צינורות גז שפכים דרך רצפות. ציוד מגן מיוחד משמש לחיווט בטוח.
מאמר קשור:
פרויקטים של בתים מבר למגורי קבע. בפרסום שלנו תמצאו את היתרונות והחסרונות של בתי עץ, דוגמאות לפרויקטים, תמונות ופריסות, המלצות מומחים.
פרויקטים של בתים מגושי קצף: מאפייני בידוד משופרים
מוצרים מ גושי קצף ליצור בסביבת מפעל. יצרנים אחראיים שומרים על אחידות המידות, על אחידות המבנה, על חוזק ועל פרמטרים צרכניים אחרים בכל משלוח.
מבנים בעלי צורות מורכבות מוקמים במהירות ובמדויק מ"קוביות "גדולות. מותר לבצע פעולות עבודה לבד, דבר שימושי לבניית בית בעצמך. עלייה קלה במשקל בהשוואה לעץ הופכת את השימוש בבסיס חזק יותר.
חָשׁוּב! החוזק של גושי קצף סטנדרטיים מספיק לבניינים בני 2 קומות. עם עליית גובה, המבנה מתחזק בעזרת מסגרת כוח מבטון מזוין (פלדה).
זה לא דליק, ולכן אין מגבלות בטיחות המפורטות לעיל. מאפייני בידוד משופרים עם חישוב נכון של פרויקטים של בתים חד קומתיים מאפשרים לכם לא להתקין שכבות נוספות של בידוד.
פרויקטים של בית לבנים: אמינות ורב-גוניות
כאמור לעיל, מוליכות תרמית לבנה סטנדרטית הגרוע ביותר בהשוואה לאפשרויות אחרות. יש צורך להגדיל את עובי הקירות, להתקין בידוד נוסף בחוץ, לבחור סוג בסיס חזק מספיק. החוזק מוגבר, אך פרמטר זה אינו יתרון משמעותי לבניינים חד קומתיים.
גודלם הקטן של המוצרים מקל על ההנחה. הם גם מרמזים על האפשרות ליצור פתחי חלונות מעוגלים, קירות מעוקלים ואלמנטים מורכבים אחרים.
חָשׁוּב! ההשקעה במבנה כזה תהיה משמעותית. עם זאת, אנו יכולים לסמוך בבטחה על חיי שירות ארוכים ללא תיקון.
פרויקטים של בתים על מסגרת מתכת ועץ: התקנה מהירה
יתרון נוסף של פרויקט כזה של בית חד קומתי הוא המשקל הנמוך שלו, שמפחית את העומס על הקרן. להתקנה מדויקת, השתמשו בערכת ריקים, רישומי הרכבה.
פרויקט כזה של בית בן קומה אחת של 100 מ"ר. יש לבדוק עם תשומת לב מיוחדת. שינויים מבניים שלאחר מכן במהלך הבנייה יהיו קשים מדי או בלתי אפשריים לחלוטין.
מאמר קשור:
פרויקטים של בתי מסגרת. במאמר נשקול בפירוט מה היתרון של מבנים אלה, סוגי טכנולוגיות, מחירי בנייה ממוצעים, פרויקטים מקוריים, טיפים שימושיים ועוד ועוד.
דוגמאות לבתים חד קומתיים עד 100 מ"ר. מ ': תמונות של פריסות, תכונות הפרויקט
כאן מותקן התנור בבלוק קבוצת הכניסה כדי להקל על התחזוקה. ארונות בגדים מובנים (חדרי הלבשה) הם חלקים ממבני בניין. כמה חדרי אמבטיה מונעים טרדות במהלך ביקורי האורחים. מספרם נבחר תוך התחשבות בצרכים האמיתיים של תושבי הקבע.
בנוסף לחומרים כאלה, היזמים מספקים פריסה אלקטרונית. ניתן לעבד את הקובץ המתאים באמצעות תוכנה מיוחדת, או עורך גרפי טיפוסי.
יתרונות וחסרונות של פרויקטים של בית עד 100 מ"ר עם עליית גג
השטח הפנוי מתחת לגג יכול לשמש ליצירת חדרי מגורים ושירותים.
החץ מסמן את הגובה, המגדיר את החלל הפנוי מתחת לרמפה. אם הם קטנים מדי, התקן תוספת מחיצות דקורטיביות.
עלינו לחזק את הרצפה הבין-רצפתית, את הבסיס. כדי להבהיר את גובה המימון, יש צורך לקחת בחשבון גם את העבודה והעלויות הבאות:
- שיפור פרמטרי הבידוד של הגג, הקירות;
- התקנת מדרגות, חלונות, דלתות;
- בְּנִיָה מחיצות פנים;
- הרחבת אספקת חום ומערכות אחרות;
- מודרניזציה של דודי וציוד טכני עזר;
- עבודות גימור פנים.
מאמר קשור:
בית עם עליית גג: פרויקטים, תמונות. מבני עליית גג הם רעיון מעשי ואטרקטיבי מאוד לחלקה פרטית. פרויקטים, תמונות של חללי פנים מוצלחים והמלצות של בונים מנוסים נמצאים בחומר שלנו.
באיזה סגנון תוכלו ליצור חזית של קוטג 'בן קומה אחת: תמונה עם הערות
בעזרת חומר זה מוסרים פגמים ואי סדרים. השילוב עם אריחים מספק הגנה נוספת לבניין במקומות קשים (מַסָד, מִרפֶּסֶת וקבוצת כניסה, חיבור צינור לגג).
המלצות לעבודה עם פרויקט: מה עדיף, הזמנה או פיתרון מוכן
חקר שוק יוודא שיש מגוון הצעות נושאיות. פרויקטים סטנדרטיים של בתים חד קומתיים עד 100 מ"ר מבוססים על עֵץ, לבנים, חומרים אחרים. ישנן אפשרויות עם מוסך, עליית גג, ללא תוספות אלה. ככלל, תוכלו לבצע שינויים משמעותיים בצבע, בטכנולוגיה הפנימית וב- קישוט חיצוני... הלינה נקבעת תוך התחשבות בדרישות האישיות שקעי חשמל ו מנורות, התאם את מספר רדיאטורי החימום ו רוחב פתחי הדלתות... לעתים רחוקות מאוד, באמת יש צורך בהזמנה אישית.
יתרונות משמעותיים של ערכת תיעוד מוכנה:
- מחיר נמוך;
- איכות גבוהה, מוכחת במהלך הפעולה;
- עמידה בתקנים הרלוונטיים, מה שמפשט את פעילויות הרישום;
- היעדר פגמים קלים שבוטלו במהלך היישום המעשי של פתרונות הנדסיים.

עלות תכנון בית פרטי בן קומה אחת: סקירה של שירותים מיוחדים וטיפים שימושיים נוספים
אתרים מתמחים מציעים מבחר נוח של אפשרויות בהתאם לקריטריונים שצוינו:
עלות פרויקט מוגמר לבית בן קומה אחת היא עד 100 מ"ר. מ 'הוא מ 18,500 ל 32,000 רובל. תכונות וחלק מהשינויים משולמים בנפרד:
| שֵׁרוּת | טווח מחירים, שפשוף. |
|---|---|
| דרכון אדריכלי | 3400-4800 |
| התאמת הקרן תוך התחשבות בפרמטרים הגיאולוגיים של חלקת הקרקע | 9400-14000 |
| הכנת כתב חומרים | 5400-8800 |
| חישוב עלות בניית בית חד קומתי עד 100 מ"ר. M | 6500-12800 |
| העתק של תיעוד הפרויקט | 2000-4500 |
| עיצוב אישי (לכל מ"ר 1) | 250-500 |
| עיצוב הגנה מפני ברקים | 3200-5600 |
כדי לתקשר עם המומחים של לשכת האדריכלות בתנאים שווים, השתמשו בחומרי המאמר ובמידע נוסף באתר במתחם. הגש את דעתך על פתרונות אדריכליים. שאל שאלות נוספות בנושא בתגובות.
























































