צילום הפריסה של בית בן קומה אחת 10 עד 10: סודות הרציונליזציה האפקטיבית של האזור
בית כפרי נוח ואמין הוא חלומם של רבים מתושבי העיר. פריסות צילום שונות בית בקומה אחת 10 עד 10 יעזרו לכם לבחור בית פונקציונלי, מתוכנן ונוח, שיהיה נעים לחיות ולהירגע בו.
תוכן המאמר
יתרונות ותכונות של בית בן קומה אחת 10 עד 10
בניין עם פריסה שטח של 10 על 10 נחשב לאופציה הפופולרית ביותר. לבניין כזה היתרונות הבאים:
- אזור כזה מתאים לשהייה נוחה של משפחה של מספר אנשים;
- לבניית בניין בן קומה אחת, יסוד אינו חזק כמו בתים עם מספר רב של קומות, מה שיחסוך כסף;
- תמונות של פריסת בית בן קומה אחת 10 עד 10 מראות כי אין מדרגות המהוות סכנה לילדים קטנים;
- בתקופות חורף, החדר מחומם מהר מאוד, בעוד שאובדן חום לא גדול כמו בבניין בן מספר קומות;
- בחירה באפשרויות עיצוב שונות.
כדי להפוך את שהותכם לנוחה, עליכם לבצע את הפריסה הנכונה של החדרים. צריכה להיות הגדרה של אזורי עבודה ומנוחה.
מידע מועיל! מתי עיצוב בתים ישנם גורמים רבים שיש לקחת בחשבון באתר. זה המיקום ביחס לתקשורת, לגבולות עם השכנים והמרחק הנכון מבארות ומאגרים. ורד הרוח נלקח בחשבון גם בעת תכנון מבנה גג.
דרכים להרחבת מרחב המחיה
על ידי תוכנית הבית בין 10 ל -10 קומה אחת, עליכם לשקול את האפשרויות להגדיל את השטח הניתן לשימוש.ישנן מספר דרכים להרחיב ולייעל את החלל:
- בקומת המרתף תוכלו להצטייד בסדנה, בלוק שירות מרווח או חדר כושר;
- תוך כדי התקנה גג משופע אתה יכול לצייד מקומות למנגל או לנוח;
- עיצוב נחשב גם לפיתרון פופולרי טרסות או מרפסות;
- בְּ- סידור עליית הגג אתה יכול להקצות מקום נעים לאזור העבודה או חדר ילדים.
ישנן אפשרויות חסכוניות רבות להרחבה ושימוש רציונלי באזור.
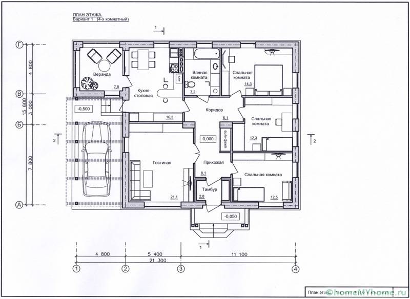
רכיבי התוכנית של בית חד קומתי 10 על 10
תמונות פריסה מציגות את הפרויקט של בית בן 10 על 10 חד קומתי, הכולל ניואנסים רבים. זה מסמן את המיקום של חלונות, דלתות וגדלי חדרים ו חדרי שירות.
כמו כן, בשלב יצירת הפרויקט, מתבצע חישוב היסוד, מבני הגג, הרצפות והקירות. התוכנית עוברת מחשבה חיווט חשמלי עם חיבור שקעים, מנורות ו מתגים.

במקרים מסוימים עדיף להפקיד את התכנון בידי מומחים שיבצעו נכון את החישובים. אתה יכול לשרטט את התוכנית המקדימה בעצמך
העיצוב צריך לקחת בחשבון צנרת, קווי אוורור, כמו גם חימום וביוב. בהתבסס על הפרויקט מבצעים חישובים של חומרי הגימור והבנייה הדרושים.
הפרויקט כולל תיאורים של שלבי הבנייה מהנחת התשתית ועד סידור מבנה הגג. התוכנית מביאה בחשבון את הנקודות החשובות הבאות:
- הקמת יסוד... אפשרות בחירה: בלוק, ערימה, סרט;
- התקנת קירות;
- התקנת חלונות ודלתות;
- התקנת מחיצות בין חדרים;
- סידור קווי תקשורת;
- עבודות גמר מחוץ לבית ובתוך הבית;
- סידור הגג.

מאמר קשור:
פרויקטים של בתים חד קומתיים עם שלושה חדרי שינה. אנו אגיד לך כיצד לבצע כראוי פריסה עם שלושה חדרי שינה בפרסום מיוחד של הפורטל שלנו.
חדרים: תמונה של מתווה בית בן קומה אחת 10 עד 10
הפריסה של בניין עם קומה אחת מספקת אינדיקציה של כל חדרי המגורים וחדרי השירות. פרויקט משפחתי סטנדרטי כולל מטבח, סלון, מסדרון, חדר שינה, חדר ילדים, חדר אמבטיה עם שירותים. אתה יכול גם ליצור פריסה ארגונומית של בית בן 10 על 12 חד קומתי, תמונות מאפשרות לך לראות את הפתרונות המעניינים ביותר. אפשרות הפריסה תלויה בהעדפות ובצרכים של כל משפחה. התכנון מתחשב בהנחות הבאות:
- כל המשפחה מתכנסת בסלון, ולכן מוקצה לו שטח גדול;
- מספר חדרי השינה תלוי בהרכב המשפחה;
- ניתן לשלב מטבח וחדר אוכל, אפילו 10 ריבועים יכולים להכיל פינת בישול וערכת אוכל;
- המתקנים הסניטריים הדרושים - חדר אמבטיה;
- המזווה פונקציונלי, הוא מאחסן את הציוד הדרוש;
- חדר הלבשה ניתן למקם בארונות מרווחים;
- חדר הדודים תלוי בסוג החימום, במקרים מסוימים אין צורך בכך.
הניואנסים של פריסת חדרי השינה וחדרי הילדים
באזורים מסוימים נדרשת גישה מיוחדת. אלה חדרי מנוחה או חדרי ילדים. בעת תכנון הנחות כאלה יש לקחת בחשבון את התכונות הבאות:
- חדרי שינה צריכים להיות ממוקמים בחלקים מרוחקים של הבית, כך שאם אפשר, אין חדרים רועשים בקרבת מקום. לדוגמא, סלון או מטבח;
- חלונות חדר שינה או חדר ילדים צריכים להיות פונים לצד השמש או למזרח;
- שטח הנחות לא צריך להיות פחות מ -10 מטרים רבועים;
- משתלה לשני ילדים צריך להיות 12-24 מטרים רבועים;
מיטה לחדר הילדים
- הנחות כאלה אינן צריכות לעבור דרך;
- גובה התקרה המומלץ הוא לפחות 2.5 מטר;
- סידור רהיטים יש לתכנן בשלב התכנון כדי לחשב במדויק את מידות המיטות והארונות.
על ידי תכנון מראש תוכלו לחשוב על המיקום הנוח של כל החדרים במרחב לשהייה נוחה לכל המשפחה. הפריסה של בית בן 8 על 10 חד קומתי, אשר ניתן לראות בתצלום, מתבצעת גם היא תוך התחשבות בכללים אלה.
המלצות לארגון יעיל של החלל
המלצות המעצבים המנוסים יעזרו ליצור מערך דיור יעיל:
- דחיית המסדרון תעזור לחסוך מקום שמיש. במקרה זה, החדר הזה מוציא במרפסת סגורה או בארון בגדים מרווח - חדר הלבשה ממוקם ליד הדלת;
- שילוב המטבח, הסלון וחדר האוכל לחדר אחד ירחיב את החלל על ידי הסרת מחיצות;
- אחת הדרכים לחסוך מטרים שימושיים היא לארגן חדר רחצה משותף, במקרה זה, אתה יכול להשתמש בצנרת פינתית, שתסייע בפינוי שטח פנוי;
- כדאי להשתמש באופן פעיל במדפים - נישות, ארונות תלויים שבהם אתה יכול למקם דברים. במקרה זה, אינך יכול להשתמש בארונות מגושמים וקלמרים מסיביים;
- מזווה מאובזר בנוסף, המשולב עם חדר הלבשה. במקום זה תוכלו לאחסן דברים שאינם עונתיים, מלאי וכלי בנייה.

בעת יצירת מתווה פונקציונלי ונוח, עליך להציב נכון חדרים משותפים. בתצלום הפריסה של בית בן 10 על 10 חד קומתי, תוכלו לראות פתרונות מעניינים שניתן להשתמש בהם. אם לוקחים בחשבון את העצות של אנשי המקצוע ואת סודות התכנון, תוכלו ליצור בית נוח לכל בני המשפחה.
וידאו: פריסה מוכשרת של הבית















































