תוכניות לבתים דו קומתיים: מאפיינים ודוגמאות לפתרונות מעניינים
לעומת בניינים חד קומתיים לשתי קומות יתרונות וחסרונות משלהם. בבחירת הפיתרון הנכון לחלקה האישית שלך, כדאי ללמוד את התוכניות האופייניות של בתים דו קומתיים בגודל הנדרש, כמו גם את מאפייני החומרים בהם ניתן להשתמש בבנייתם. זה יאפשר לך לבחור בחירה מושכלת, תוך התחשבות בדרישות למבנה העתידי ולמקום הקמתו.
תוכן המאמר
- 1 היקף ותכונות הייחודיות של בתים דו קומתיים
- 2 יתרונות של בתים דו קומתיים
- 3 חסרונות של בתים דו קומתיים
- 4 הקשיים העיקריים בתכנון בתים דו קומתיים
- 5 חומרים לייצור בתים דו קומתיים
- 6 כללי תכנון רצפת הבית
- 7 תכונות של תוכניות לבתים דו קומתיים עם עליית גג
- 8 תכונות של פרויקטים של בתים דו קומתיים עם מוסך
- 9 תכונות של בית דו קומתי עם מרפסת מקורה
- 10 סקירה וציורים של פרויקטים של בתים דו קומתיים
- 11 עלות הקמת בית סוהר דו קומתי - פרויקט, בנייה
- 12 פרויקטים ביתיים: תמונות של פתרונות מעניינים
- 13 וידאו: מתווה הבית 6x6, קומה 2 2 חדרים
היקף ותכונות הייחודיות של בתים דו קומתיים
לעתים קרובות קשה להחליט על תצורת הבית העתידי. אם שטח הקרקע קטן יחסית, בנייה דיור בקומה אחת שטח גדול הופך לבלתי אפשרי או לא הגיוני. במקרה זה, מלבד הדיור עצמו, יהיה קשה לבנות משהו אחר.
תשומת הלב! בניית בית בן שתי קומות מוצדקת לחלוטין אם נדרש שטח דיור גדול.
לאחר שנתנו עדיפות בניין בן שתי קומות, על מגרש קטן ניתן יהיה להקים מבני בית (עצי הסקה, מוסך), מתקני בילוי (ביתן, מֶרחָץ) או הקצה עבורם את הרמה הראשונה, והצב את חדרי המגורים על השנייה.
אם שטח האתר גדול, גם פרויקטים דו קומתיים ראויים לתשומת לב. במיוחד אם המשפחה גדולה, או שמתוכננת לקבל מספר רב של אורחים. במקרה זה, בנוסף לחדר השינה לכל בן משפחה, ניתן יהיה לספק מספר חדרי שינה לאורחים.
תשומת הלב! פרויקטים של בתים דו קומתיים קטנים רלוונטיים לתושבי קיץ או למשפחות המורכבות מכמה אנשים.
יתרונות של בתים דו קומתיים
לבניינים דו קומתיים בחלקות אישיות מספר יתרונות. הם מרשים:
- ניהול כלכלי של אזור הקוטג ';
- יישם פתרונות תכנון שונים, השגת אחדות תכנון הבניינים והשטח הסמוך לבית. תוכנית הגינון מפותחת תוך התחשבות בעיצוב הסגנוני שנבחר ובמיקום הבניין;
- השתמש בפתרונות לא סטנדרטיים בעת פיתוח תוכנית לפריסה של הנחות פנימיות וקישוט חזית הבית... מותר להשתמש במרפסות יפות, לייצור מעקות שניתן להשתמש בהם בחומרים שונים, כולל אבן, עץ, מתכת;
- מספקים תצפית טובה על הסביבה.
חסרונות של בתים דו קומתיים
הם מסרבים לבנות בית בן שתי קומות בגלל עלויות בניה גבוהות. לבניית בניין דו קומתי יידרשו יותר כספים מאשר עבור סיפור אחד... עלויות מזיגת התשתית עולות משמעותית. הבסיס יצטרך לעמוד בעומס גדול יותר מאשר במקרה בניית בניין בן קומה אחת... לרוב, העדפה ניתנת לבסיס הרצועה שבנייתו מלווה בעלויות כספיות משמעותיות.
חסרון נוסף של בניינים דו קומתיים הוא הצורך ליצור מבנה גרם מדרגות. זה לא רק גורם לעליית עלויות הבנייה ולסיבוך של טכנולוגיית הבנייה, אלא גם יכול לגרום לפציעה במהלך הפעולה שלאחר מכן. כדי להעלות את רמת הבטיחות של בית בן שתי קומות, עליכם להפקיד את פיתוח תיעוד הפרויקט בידי אנשי מקצוע. הם יקבעו את הצורה הגיאומטרית האופטימלית של גרם המדרגות ויבחרו את החומרים הנכונים.
הקשיים העיקריים בתכנון בתים דו קומתיים
פיתוח פרויקטים לבתים פרטיים בשתי קומות מלווה בקשיים מסוימים:
- נדרש חיזוק נוסף של רצפות בין רצפות. אחרת, זה יהיה מסוכן להיות בתוך הבניין;
- יש צורך לתכנן מערכות תקשורת מסועפות ומורכבות. נוכחות המפלס השני כוללת הנחת תוספת אינסטלציה וביוב. כדי ליצור תנאים נוחים, יהיה צורך להתקין משאבת זרימה, שכן אחרת נושא החום לא יעבור דרך הצינורות;
- לפנינו מחקר מדוקדק של פריסת החדרים בנוכחות קשישים וילדים קטנים במשפחה. הם מוצאים חדרים בקומת הקרקע כדי להפחית את הסיכון לפציעה.
חומרים לייצור בתים דו קומתיים
עלות בניית בניין בן שתי קומות תלויה בסוג החומר בו משתמשים. קירות הקוטג'ים המודרניים בנויים לרוב מ:
איזה חומר יעדיף תלוי בהעדפות הבעלים העתידיים וביכולות הפיננסיות הקיימות. אנו מציעים לך להכיר את התכונות של החומרים הפופולריים ביותר מראש בכדי לייצג במדויק את התכונות של כל אחד מהם.
עץ
כפי שמראים תמונות הפרויקטים של בתים וקוטג'ים, עץ הוא חומר מסורתי המבוקש בבניית דיור בפרברים. יש לו מספר יתרונות:
- מהימנות;
- נוכחות;
- חוֹם. בנייני עץ שומרים על חום היטב ומתחממים במהירות;
- משקל נמוך, המאפשר שימוש בבסיס קל. לרוב, העדפה ניתנת ל בסיס חגורהעם זאת, מותר להשתמש בפלטה מוצקה או יסוד ערימה וחגירה;
- ידידותיות לסביבה. להיות בתוך בית דו קומתי מעץ, אתה לא יכול לפחד מההשפעה של גורמים שליליים.
מאפייני החומר המשמש תלויים במידה רבה בטכנולוגיה שתשמש בבניית המבנה.
טכנולוגיית מסגרת
לאוהבי הסגנון הקלאסי בעת אימון תוכנית של בית דו קומתי 8 על 8 מטר, כדאי לשים לב ל טכנולוגיית wireframe... בהתאם לתכונות הרכבת לוח הפאנל, זה יכול להיות מכמה סוגים:
- קנדימציע את השימוש לוחות SIP או פלטפורמה;
- גֶרמָנִיָת, המורכב מהרכבת המפעל של לוחות פאנל;
- מסגרת מסגרת, המורכב מהרכבת המבנה ישירות במקום הפעולה העתידי.
לבניית מסגרת הקוטג 'משתמשים בקורה של חלקים שונים. כל האלמנטים של מבנה המסגרת מחוברים זה לזה בצורה קשיחה באמצעות ברגי פלדה, פלטות ומחברים אחרים. מבחוץ המסגרת עטופה בפלטות בעלות עמידות בפני אש גבוהה ועמידות בפני לחות.
מאמר קשור:
פרויקטים של בתי מסגרת. במאמר זה נשקול בפירוט מה היתרון של מבנים אלה, סוגי טכנולוגיות, מחירי בנייה ממוצעים, פרויקטים מקוריים, טיפים שימושיים ועוד ועוד.
מחסום עשוי עץ ובולי עץ
לאחר שעובד על פריסת הבית בן שתי הקומות, עליכם להחליט על מאפייני החומר שישמש לבניית הקירות. בחירה זו תשפיע על סוג אביזרי הפנים הבאים ובעלות העבודה הכוללת.
הבחירה יכולה להיעשות לטובת:
- עץ מסיבי חלק. זו האופציה המשתלמת ביותר. לייצורו נעשה שימוש בבולי עץ מוצק, ולכן החומר המוגמר מכיל אחוז משמעותי של לחות. כתוצאה מכך, לאחר שקיפלתם את המסגרת, תצטרכו להמתין לפחות שנה עד שהמבנה יתכווץ לחלוטין. קיימת גם סבירות גבוהה להיווצרות חריצים מפוצצים, אשר נרתמים ומכסים בעיטור;
- עץ פרופיליעם מנעולים מיוחדים: הקרנות ושקעים מיוחדים. החסר המסומן מקלים על הקמת הקיר. הודות לתכנון מחושב היטב, הסיכון לפערים מפוצצים לאחר התכווצות המבנה מצטמצם משמעותית;
- עץ למינציה מודבק, לייצורם משמשים לוחות מיובשים מראש. זה מונע עיוות של החומר במהלך תהליך הייבוש, ולכן עבודה פנימית יכולה להתחיל כמעט מיד לאחר התקנת המסגרת.
גודל העץ בכל מקרה נבחר בנפרד. עיבוד התוכנית של בית בן שתי קומות בגודל 6 על 6 מטר, לרוב החומר נבחר 100 על 150 מ"מ. עם זאת, אם היכולות הפיננסיות מאפשרות, בעת פיתוח תוכנית למבנה עתידי, כדאי לבחון מיד את האפשרות להשתמש בסרגל בגודל 150 על 200 מ"מ או 200 על 200 מ"מ.
חובבי הסגנון הרוסי בוחרים לעיתים קרובות בולי עץ במקום בר. יתר על כן, ככל שהחומר המשמש עבה יותר, כך הקוטג 'המוגמר יהיה אטרקטיבי יותר. היתרונות של בנייני בולי עץ כוללים:
- חיי שירות ארוכים;
- חוזק מספיק;
- יכולת לסרב לבידוד בעת שימוש בבולי עץ עבים;
- יצירת תנאים נוחים בתוך הבית בכל עת של השנה;
- יכולת לבטל הסכמה עיצוב פנים.
מאמר קשור:
פרויקטים של בתים מבר למגורי קבע. פריסות מעניינות ויתרונות של עץ מודבק ומסומן בפרסום נפרד של הפורטל שלנו.
לְבֵנָה
לבנים כחומר בניין יש מספר יתרונות:
- נוחות של הנחת;
- היכולת ליצור קירות בעיצובים שונים עם מבחר אפשרויות בנייה;
- עֲמִידוּת. מבנה לבנים יכול להימשך לפחות 100 שנה;
- כוח;
- ידידותיות לסביבה;
- מהימנות;
- בידוד רעש הולם;
- יעילות אנרגטית גבוהה;
- חסינות לאש;
- התנגדות לכפור;
- אטרקטיביות בשימוש עם חומר דקורטיבי מתאים.
טכנולוגיית בניית הקירות היא פשוטה, אך דורשת כישורים מספקים. בנוסף, כל העבודות חייבות להתבצע בהתאם בקפדנות לתיעוד הפרויקט המפותח. אנו מציעים לך להכיר את התצלום של פרויקטים של בתים לבנים פרטיים.
תכונות השימוש בבטון סודה ובטון מוקצף
בניינים מ גושי גז פופולרי למדי בגלל היתרונות של חומר זה:
- טוֹב מאפייני בידוד תרמי... תלוי במיקום הבניין העתידי, במספר מקרים תוכלו לסרב לבודד את הקירות;
- קלות עיבוד. בלוקי גז נחתכים בקלות לגודל מסור ידני;
- זמן בנייה קצר בשל הפרמטרים הגיאומטריים הגדולים של הבלוקים;
- ביצועי בידוד רעש טובים;
- זול;
- בטיחות סביבתית;
- חדירות אדים, המפחיתה את הסבירות לרטיבות.
תשומת הלב! לבטון סודה רמת חוזק דחיסה גבוהה, אך נמוכה עד לשבר, ולכן, כאשר מקימים מבנה בן שתי קומות, יש לחזק את הקומה הראשונה במוטות פלדה.
חסרונות נוספים הם:
- יכולת גבוהה לספוג לחות, ולכן הקירות צריכים להיות מטויחים או מכוסים בשכבת צבע עמיד למים;
- המורכבות של עבודות הגמר בשל נקבוביות החומר המוגברת;
- פוטנציאל לפיצוח במקומות מלחיצים כגון מיקומי התקנה דלת אוֹ פתיחת חלון;
- שבירות, הדרישות המוגברות לתנאי התחבורה.
שלא כמו בטון מוגז, בטון קצף יכול לשמש אך ורק לבניית פנימי מחיצות בתוך הבית, המותקנים בהתאם לתוכנית המפותחת. לא ניתן להשתמש בו לבניית מבנים נושאי עומס.
מסגרת מתכת קלה
בסיס המתכת של הבניין כולל מוטות אנכיים, קורות, פנקסים אופקיים ואלמנטים אחרים המותקפים יחד כדי ליצור מבנה חזק ואמין. השימוש בבידוד מאפשר להגביר את היעילות האנרגטית של הבניין הנבנה. כדי לא לכלול תהליכי קורוזיה, פרופיל המתכת המשמש מצופה בתרכובות מיוחדות נגד קורוזיה או מגולוון חם.
לבנייני מסגרת מתכת מספר יתרונות:
- זמן בנייה קצר (ניתן לבנות תוך 3-9 שבועות, תלוי במורכבות המבנה הנבנה);
- היכולת לחשב במדויק את הבסיס, שכן משקל הבניין ידוע מראש;
- ייצור מדויק של כל האלמנטים של המסגרת;
- משקל נמוך של המבנה, מה שמקל על תהליך ההובלה וההרכבה שלאחר מכן;
- אין פסולת ופסולת באתר הבנייה, מכיוון שאתה יכול לסרב להשתמש בתערובות בנייה ומרגמות;
- אפשרות לבנייה בכל ימות השנה;
- היכולת לפתח תוכנית לבית עם טווחים גדולים ללא תמיכה נוספת או כל פריסה;
- ידידותיות סביבתית ובטיחות אש.
תשומת הלב! מסגרת המתכת הקלה יותר יקרה יותר.
כללי תכנון רצפת הבית
בעת פיתוח מתווה של בתים וקוטג'ים עם שתי קומות, נלקחים בחשבון הצרכים של כל בני המשפחה. זה מאפשר לא רק להפוך את הבניין לנוח למגורים, אלא לקחת בחשבון את העומס התפעולי על הרצפות והבסיס. בנוסף לתפיסה הכללית, התוכנית של כל קומה עובדת.
תשומת הלב! יש לקבוע מראש את מיקום מכשירי החימום, במיוחד אם מתוכנן תנור או אח.
מתווה נכון של הקומה הראשונה
בעת פיתוח פרויקט לבית קטן, תשומת לב מיוחדת מוקדשת לפריסה הנכונה. ככלל, בקומת הקרקע ישנם חדרים למטרות שונות, חלקם זהים לכל הבניינים. לרוב יש להם:
- הסלון בו יתקבלו האורחים;
- מִטְבָּח;
- חדר רחצה לאורחים;
- מִסדְרוֹן או אולם;
- חדר דוודים או חדר דוודים.
עֵצָה! חדר הטמבור בכניסה לבית לא יאפשר לאוויר קר מהרחוב להיכנס לחדרים, ולכן יהיה הרבה יותר קל לשמור על טמפרטורה נוחה.
בנוסף לחדרים המפורטים, אם יש מקום פנוי בקומת הקרקע, תוכלו לספק:
- קבינט;
- חדר אוכל;
- חדר אורחים.
פרויקטים של קוטג'ים ובתים שהוצבו ללא עלות מעידים על האפשרות לכלול את הקומה הראשונה במוסך בתוכנית. מבחינתו, יש לספק כניסה נפרדת ואפשרות מעבר בתוך הבית.יש להימנע ממסדרונות צרים וארוכים כדי שהתוכנית תצליח. ניתן להשיג זאת על ידי שילוב של מספר חדרים. יוֹדֵעַ קְרוֹא וּכְתוֹב יעוד לעזור להפריד חדר אחד מחדר אחר.
מתווה נכון של הקומה השנייה
בפרויקטים של בתים קלאסיים, הקומה השנייה היא אזור בילוי לכל המשפחה. נהוג להציב כאן:
- חדרי שינה;
- חדר הלבשה;
- חדרי אמבטיה מצוידים באמבטיה או מקלחת;
- חדרי ילדים.
אם שטח הבית מאפשר זאת, בקומה השנייה תוכלו לסמן חדר שישמש לחופשות משפחתיות. זהו מעין אנלוגי של הסלון, המיועד אך ורק לאנשים החיים בבית.
עֵצָה! אם יש מוסך בבית, יש להניח מעליו חדר הלבשה או מחסן. אזור זה אינו מתאים לחדר שינה או לחדר ילדים.
כללים לשילוב מספר חדרים
אם שטח הבית קטן, תוכלו לשלב חדרים בודדים על ידי הסרת חדרים מחיצות... כגון פריסת סטודיו מאפשר לך למקסם שטח פנוי. לרוב, בקומת הקרקע, המטבח, הסלון והאולם משולבים לשלמות אחת, תוך הקצאת חובה של האזורים המתאימים. אירוח באי מסופק למטבח. סט שלם עם דלפק בר עם אפשרות זו הוא חובה. צורתו תלויה בצורת החדר. הנפוץ ביותר הוא מבנים משולשים, חצי עיגולים, בצורת U, אולם אם תרצה, תוכל ליצור מערכת שרירותית על פי סקיצה אישית.
שילוב של מספר חדרים מאפשר לך לנטוש מסדרונות. מכל מקום בחלל המשולב, ניתן יהיה להיכנס למשרד או לשירותים. אם שטח השטח גדול מספיק, יש לנטוש את הרעיון לשלב כמה הנחות בקומת הקרקע.במקרה זה, יהיה זה נכון להתקין מחיצות פנימיות, בהתבסס על מטרת החדר.
עֵצָה! גרם מדרגות יכול לשמש כמחיצה טבעית.
בקומה השנייה כדאי להימנע גם מהיווצרות מסדרונות. לרוב, "עקבים" קטנים מאורגנים עם מקום פנוי שממוקם מול גרם המדרגות ומשמש כניסה לחדרים. לפעמים חדר שינה משולב עם כמה חדרים קטנים המשמשים כ חדרי הלבשה.
תכונות של תוכניות לבתים דו קומתיים עם עליית גג
חושב על בנייה בתי עליית גגעליך להחליט מיד לאיזו מטרה יבנה מבנה העל הזה. כדי לקבל את ההחלטה הסופית לגבי הצורך בפיתוח פרויקט כזה, כדאי לדעת מראש את כל היתרונות והחסרונות של הבנייה. עֲלִיַת גַג... היתרונות כוללים:
- מראה ייצוגי. גג גמלונים עם שבירה ושיפועים המיוצרים בזוויות מסוימות יכול להוסיף אטרקטיביות;
- היכולת ליצור פנים מקוריות, עם הבחירה הנכונה של צורת עליית הגג.
החסרונות של בית כזה כוללים:
- דרישות מוגברות לאיכות האוורור והבידוד התרמי. אם הטכנולוגיה לביצוע עבודות מופרת, במהלך ההפעלה הקירות והגג יקפאו, עיבוי יופיע;
- קושי בתאורה טבעית. התקנת חלונות אנכיים לא תספק תאורה מספקת. תידרש התקנת חלונות מיוחדים, מה שיעלה את עלות הבנייה;
- נוכחות של "אזור מת". עם אותו שטח כולל של הקומות הראשונות ועליית הגג, זו האחרונה יש שטח פחות שימושי בגלל נוכחות של קיר משופע. לא ניתן להתקין רהיטים סטנדרטיים באזור זה.
למרות החסרונות המפורטים, תוכניות כאלה פופולריות למדי. אנו מציעים לכם להכיר את הפרויקטים והתמונות של בתים עם עליית גג שכבר הוקמו. הם יעזרו לקבוע את ההיתכנות של בניית בית בן שתי קומות מתכנית כזו באתר שלך.
מאמר קשור:
בית עם עליית גג: פרויקטים, תמונות. מבני עליית גג הם רעיון מעשי ואטרקטיבי מאוד לחלקה פרטית. פרויקטים, תמונות של חללי פנים מוצלחים והמלצות של בונים מנוסים נמצאים בחומר שלנו.
תכונות של פרויקטים של בתים דו קומתיים עם מוסך
אם למשפחה יש מכונית, המוסך בחצר האחורית הופך להיות חשוב. לְסַפֵּחַ... עם שטח מוגבל של האזור המקומי, יש לנטוש את האפשרות של בניין צמוד קרקע באופן מיידי. בנוסף לריבועים למוסך עצמו, תצטרכו לספק מטרים נוספים למעבר בין הבית למוסך.
פרויקטים של בתים דו קומתיים עם מוסך עוזרים לעשות שימוש סביר בשטח הפנוי. הפתרונות שמציעים המעצבים יאפשרו להציב לא מכונית אחת, אלא שתיים או יותר תחת קורת גג אחת. ניתן להקצות את החלל מעל המוסך לאחד מהמקומות, או מִרפֶּסֶת.
תכונות של בית דו קומתי עם מרפסת מקורה
אם אין רצון להתקין באתר ביתןכדאי לבחון את האפשרות להקים בנייני מגורים עם חלל פתוח מרפסת... כאן תוכלו לאסוף חברות גדולות לשתות תה או סתם לשוחח.
המידות של הרחבה כזו ועיצוב שלה צריכים להיות תואמים למידות הבית ולכיוון הסגנוני שנבחר. זה נחשב אפילו בשלב של פיתוח תוכנית למבנה העתידי. במקרה זה, הבניין המוגמר יהיה בעל מראה ייצוגי.
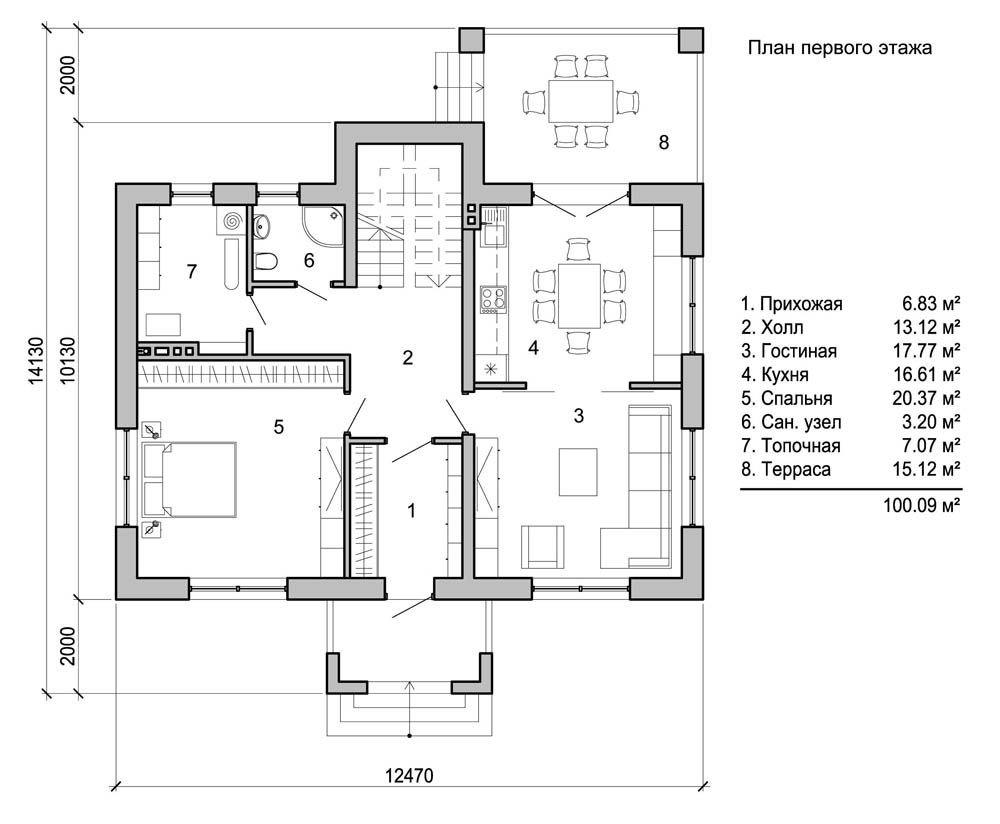
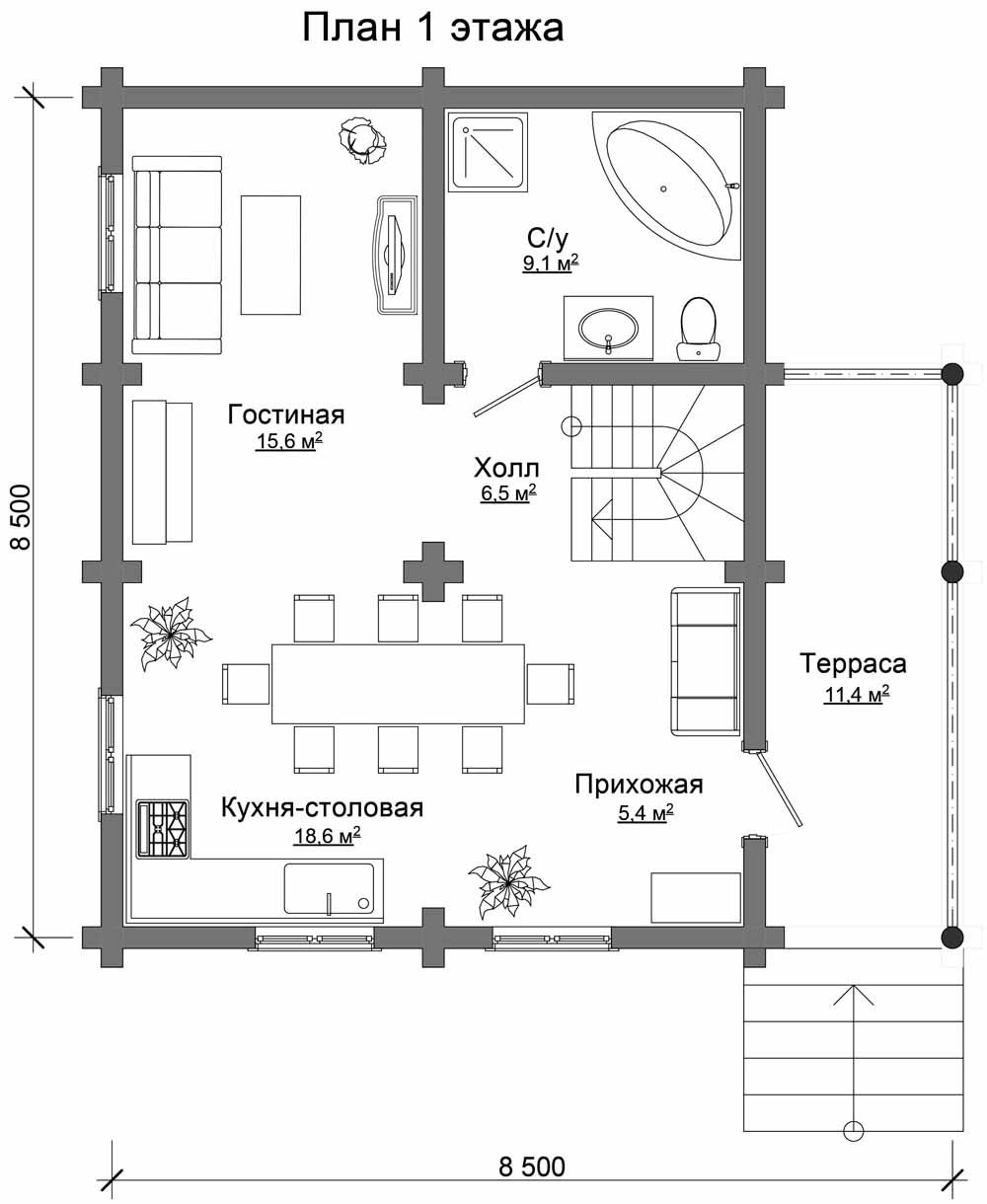
סקירה וציורים של פרויקטים של בתים דו קומתיים
לא תמיד ניתן לקבוע את תכונות העיצוב של דיור עתידי בפעם הראשונה.נכון לעכשיו, תוכלו למצוא שרטוטים לפרויקטים של בתים וקוטג'ים בחינם. הם יכולים לשמש כרעיון ליישום מאוחר יותר.
עֵצָה! לומדים את הפרויקטים האופייניים של בתים דו קומתיים בקטלוג, כדאי לשים לב לגודל הבניין.
מתווה הבית 9 על 9 מ ': אפשרויות אפשריות
בעת הקמת מבנים עם ממדים כוללים דומים, יש להקפיד על טכנולוגיית הבנייה. המשקל המרשים מציב דרישות מוגברות לבסיס. על הבסיס להיות מסוגל לעמוד בעומס המופעל.הפריסה של בית 9 על 9 מעוצבת תוך התחשבות בשוויון הקירות. חדרי השינה בקומה השנייה הם בעלי שטח שווה אם מדרגת המדרגות ממוקמת בצד השני.
כאשר מפתחים את הפריסה של בית דו קומתי 9 על 9 מטרים, יש לשים לב לכל קומה. לאחר מכן, תוכלו להמשיך לעיצוב החזית.
התוכנית של בית דו קומתי 10 על 10 מ ': פיתרון טיפוסי
אם שטח האתר מאפשר זאת, הפרויקט של בית בן שתי קומות בגודל 10 על 10 מטר יהיה הבחירה הטובה ביותר. אזור זה יספיק לפיתוח פיתרון מתאים ובחירת הפריסה האופטימלית. התוכנית של בית בן שתי קומות בגודל 10 על 10 מ 'מאפשרת לכם להגדיל את ריבוע החדרים הבודדים.
פרויקט של בית דו קומתי 7 על 7 מ '
קשה להקים מבנים עם ממדים גדולים באתר קטן. במקרה זה, מומלץ לבחון את האפשרות לבנות בית עם שטח קטן. עם שטח תפוס קטן של החלקה האישית, ניתן לספק את כל הנחות העיקריות: מטבח, חדרי שינה, סלון.
פרויקט טיפוסי של בית בן שתי קומות בגודל 7 על 7 מ 'מאפשר לכם להיות בעלים של בית נוח ללא השקעות כספיות משמעותיות. עם זאת, אין לחסוך בחומרים המשמשים.
עֵצָה! עדיף להפקיד את מתווה הבית 7 על 7 מ 'לאנשי מקצוע.
מתווה הבית 6 על 8 מ ': פיתרון מעניין
צורתו המלבנית של הבית מציבה דרישות מסוימות לפריסת בית בגודל 6 על 8 מ '. בקומת הקרקע יש מטבח עם סלון, ובקומה השנייה ישנם חדרי שינה.
אם הפרמטרים של האתר אינם מאפשרים הצבת בניין דו קומתי בגודל 6 × 8 מ ', כדאי לבחון את הפרויקט של בית 8 על 6 מ'.
מתווה הבית 6 × 10 מ '
דוגמה נוספת לפריסה מלבנית היא פרויקט של בית בגודל 6 על 10 מ '. הוא כולל הצבה של חדרים מכוונים לאורחים בקומה הראשונה, וחדרי שינה לאנשים שגרים בבית בקומה השנייה. יש מספיק מקום לספק חדר הלבשה ואפילו חדר כושר קטן.
מתווה הבית 9 על 6 מ ': פתרונות סטנדרטיים
הפריסה האופיינית לבית של 9 על 6 מ 'מאפשרת סידור רציונלי של כל החדרים המרכזיים. במקרה זה, המשרד יכול להיות ממוקם לא רק בקומה הראשונה, אלא גם בשנייה.
בעבודה על פרויקט של בית בגודל 9 על 6 מטרים, עליכם להוסיף אינדיבידואליות לבית. במיוחד אם למשפחה יש ילדים קטנים.
מתווה בית דו קומתי 12 על 12 מ '
השטח הגדול של הבית מאפשר לכם לספק מוסך. בבית דו קומתי 12 על 12 מ ', אתה יכול לתכנן מוסך בגודל 6 על 6 מ'.
עלות הקמת בית סוהר דו קומתי - פרויקט, בנייה
אין צורך לבצע את כל עבודות הבנייה בעצמך. אפשר להזמין בניית סוהר. פרויקטים של בתים דו קומתיים עם תוכנית ותצלום יאפשרו לכם להעריך את התוצאה הסופית. אנו מציעים לך להכיר את המחירים הממוצעים עבור שירותים כאלה:
פרויקטים ביתיים: תמונות של פתרונות מעניינים
אנו מציעים לך להכיר את התמונה של פרויקטים ביתיים המיישמים פתרונות מעניינים.



























































































