בניית בתים מלוחות SIP - פרויקטים והוראות שלב אחר שלב בעת ביצוע עבודות במו ידיכם
בשנים האחרונות הופיעו מספר טכנולוגיות חדשות בתחום בניית דיור פרטנית, המאפשרות לצמצם את הזמן הדרוש לעבודות בנייה והתקנה ולהפחית את עלותן המשוערת. אחד מסוגים אלה הוא בניית בתים מלוחות SIP, אשר יתרונותיהם וחסרונותיהם, כמו גם כיצד לבצע את העבודה במו ידיכם, יידונו במאמר זה במגזין המקוון homebase.decorexpro.com/iw/.
תוכן המאמר
- 1 לוחות SIP לבניית בית - מה זה
- 2 בתים עשויים לוחות SIP - יתרונות וחסרונות
- 3 סיווג פאנל SIP
- 4 פרויקטים של בתים מלוחות SIP
- 5 מה ההבדל בין בתים עשויים לוחות SIP לאזורי הדרום והצפון
- 6 בניית בית בעיצוב DIY מפאנלים של SIP
- 7 האם ניתן לעשות זאת בעצמך לוחות SIP בבית
- 8 סקירת מחירים לבניית בית מלוחות SIP "turnkey"
- 9 ביקורות של בעלי בתים מלוחות SIP
לוחות SIP לבניית בית - מה זה
לוח SIP (SIP) הוא מבנה בניין מוכן לשימוש, שהוא מוצר המורכב משתי שכבות של חומרי יריעה, שביניהם מונח בידוד.
הערה! לוחות SIP מיוצרים במפעל ומגיעים לאתר הבנייה בצורה מוגמרת בהתאם לשרטוטים של אובייקט הבנייה הנבנה ותוכנית המשימה לפיתוחם.
כחומרי גיליון המשמשים למסגור לוחות SIP, משמשים הדברים הבאים:
הערה! מבנים ומבנים שהוקמו באמצעות לוחות SIP הם אובייקטים מסוג מסגרת. לוחות SIP מבצעים את הפונקציה של מבנה הבניין הסוגר והתומך, ועץ מכויל או עץ מנוסר אחר משמש לחיבורם.
לוחות SIP יכולים לשמש רק כמבנים סגורים, במקרה זה, המסגרת העשויה עֵץ או עץ אחר, כמו גם מבני מתכת קלה (MTK, LTSK). חומרים כגון צמר מינרלי ופוליאוריטן, פוליסטירן ופוליסטירן מורחב משמשים כבידוד בייצור מוצרים כאלה.
הערה! כאשר מייצרים אותם במפעל, מודבדים את הבידוד לאלמנטים הסוגרים בעזרת דבק מיוחד ובלחץ גבוה, שעבורם משתמשים בציוד מיוחד (press) המספק את דרכי הייצור הנדרשות.
בתים עשויים לוחות SIP - יתרונות וחסרונות
טכנולוגיית בניה המשתמשת בלוחות SIP בארצנו מכונה "קנדית", מכיוון שמדינה זו נחשבת לאב הקדמון של בניית דיור מסוג זה.

ייצור כל האלמנטים המבניים של בית במפעל מאפשר לצמצם את הזמן הדרוש להשלמת העבודות באתר בנייה, הדומה להרכבתו של בונה לגו על פי תכנית מורכבת.
יש להתייחס ליתרונות השימוש בלוחות SIP בבניית דיור פרטנית כמדדים כגון:
- המשקל הקל של המבנים מאפשר לך להפחית את העלויות והזמן להקמת הקרן.
- ביצועים גבוהים בבידוד חום ורעשים.
- המועדים הצמודים לעבודות ההתקנה, עקב השימוש במוצרים מוגמרים המיוצרים במפעל בהתאם לתיעוד הפרויקט.
- היכולת לבצע עבודה בכל עת של השנה ובכל תנאי מזג אוויר.
- עמידות להשפעות ביולוגיות (עובש, פטריות וכו ').
- קלות התקנה עם מספר מצומצם של ציוד בנייה.
האינדיקטורים הבאים יכולים להיחשב לחסרונות של לוחות SIP:
- דליקות וידידותיות לסביבה - תלוי בסוג החומרים המשמשים לייצור מוצרים.
- אפשרות לנזק ממכרסמים.
- הצורך ביישום זהיר של בידוד ואיטום בצומת של לוחות בודדים על מנת לא לכלוך בליה והקפאה של אלמנטים מבניים.
מאמר קשור:
סקירה זו מציגה את כל האמת לגבי השימוש בחומרים כגון לוחות SIP... מה זה ולמה הם צברו פופולריות, עצות והמלצות מומחים כאלה.
סיווג פאנל SIP
בקשר להופעתן של טכנולוגיות חדשות ובהתאם לחומרים חדשים, החלו היצרנים לייצר לוחות SIP השונים בסוג השימוש, אשר השפיעו על עיצובם. ליישומים שונים (בנייה תעשייתית או אזרחית) וסוגים של מבני בניין (קיר, רצפה, חֲלוּקָה וכו ') קיימים שינויים שונים במוצר. זה חל על סוג הבידוד המשמש והחומר המשמש למסגרת המוצרים.
הערה! עבור סוגים שונים של שימוש, עובי לוחות ה- SIP יכול להיות שונה, אשר נקבע בשלב פיתוח תיעוד הפרויקט ומיקומם.
הממדים של לוחות SIP ותצורתם נקבעים בשלב פיתוח תיעוד הפרויקט, והבסיסיים הם כדלקמן:
- אורך - 2500/2800 מ"מ;
- רוחב - 625/1250 מ"מ;
- עובי - 110/120/170/200/220/270 מ"מ.
הערה! מוצרים בעובי של עד 120 מ"מ משמשים לבניית מחיצות ומבנים חד קומתיים ובעובי גדול יותר בבניית דיור דו קומתי ובמידת הצורך לספק בידוד תרמי נדרש.
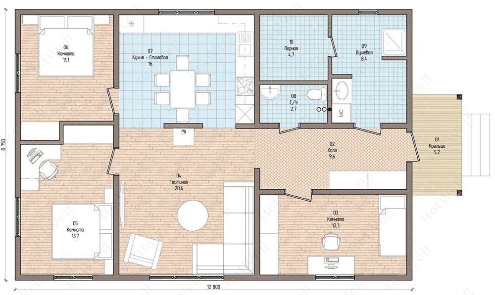
פרויקטים של בתים מלוחות SIP
באשר לסוגים אחרים של בניית דיור מסגרות, טכנולוגיית הבנייה באמצעות לוחות SIP כוללת ייצור של בנייני מגורים בגובה של לא יותר משתי קומות. נכון לעכשיו, פרויקטים רבים פותחו עבור אחד- ו בתים דו קומתיים לבנייה פרטנית באמצעות טכנולוגיה זו. בחלק זה של המאמר אנו מציגים כמה מהם.
בתים חד קומתיים
בשל עלות הבנייה הנמוכה יחסית ומהירות עבודות ההתקנה, טכנולוגיית SIP צוברת מספר הולך וגדל של משתמשים פוטנציאליים.
כמעט כל אזורי ארצנו עוסקים בפיתוח תיעוד תכנון לבניית דיור פרטנית של בנייני SIP, כך שתמיד יש אפשרות למצוא פרויקט הקשור לאזור ולמיקום ספציפיים, או לקשר בין פתרונות סטנדרטיים.
שטח הבית של קומה אחת יכול להיות שונה לחלוטין; הוא מוסדר רק על ידי גודל מגרש המוקצה לבנייה.
מאמר קשור:
פרויקטים של בתי מסגרות, תמונות ומחירים. מדוע טכנולוגיית המסגרות כה פופולרית? כמה שווה בית כזה? קרא עוד בפרסום נפרד בפורטל שלנו.
בתים דו קומתיים
בקטגוריית בתים דו קומתיים יש גם די הרבה פתרונות אופייניים ואישיים.
מגוון אפשרויות מאפשר לכם לבחור פרויקט של האזור והפריסה הרצויים.
הקישוט החיצוני של בית עשוי לוחות SIP יכול להיות שונה, מבטנה לחיפויים וחומרי גימור אחרים.
בתים עשויים לוחות SIP עם עליית גג
בשביל אוהבים בתים עם עליית גג עיצוב זה נמצא גם בארסנל המעצבים.
מתווה הבית, בעל עליית הגג בהרכבו, הוא הפופולרי ביותר בקרב מפתחים מקומיים.
מה ההבדל בין בתים עשויים לוחות SIP לאזורי הדרום והצפון
מאפיין מובהק של בתים העשויים מלוחות SIP לאזורים הדרומיים והצפוניים של ארצנו הוא העובי שלהם, הקובע את המאפיינים התרמיים של מוצר אינדיבידואלי וגם של אובייקט הבנייה שנבנה בכללותו. כפי שכבר נכתב לעיל, עובי לוחות ה- SIP משתנה בין 110 ל -270 מ"מ, אך תלוי במיקום האובייקט הנבנה, ניתן לשנותו לכיוון זה או אחר.
בבניית בתים המשתמשים בטכנולוגיה זו, במיוחד באזורים הצפוניים של ארצנו, מוקדשת תשומת לב מיוחדת למקומות שבהם הפאנלים הבודדים מחוברים זה לזה על מנת להבטיח את האפשרות של דליפת חום דרך מקומות אלה של מבני בניין.
בניית בית בעיצוב DIY מפאנלים של SIP
על מנת להוזיל את עלות בניית הבית שתכנונו כולל שימוש בלוחות SIP ניתן לבצע עבודות התקנה בעבודת יד.
במקרה זה, על מנת להימנע מטעויות ובעיות במהלך המשך הפעולה, יש צורך:
- להזמין בית מבני לוחות SIP בארגון המעורר אמון, הן באיכות המוצרים המיוצרים והן בהבטחת התנאים המפורטים בחוזה האספקה;

- יש לבחור פרויקט בית על פי צורכי פיתוח עכשוויים ואפשריים;
- בהתבסס על הפרויקט שנבחר, ובהתאם לידיעת המידות הכלליות שלו ותצורתו, ניתן לבצע את התקנת הקרן במקביל לייצור ערכת הבית אצל היצרן.

את הבסיס לבתי המסגרות ניתן לייצר באמצעות ערימות בורג, מסוג רצועה או בצורה של לוח מונוליטי, כ"בסיס צף "
חָשׁוּב! סוג היסוד שיש לבנות תלוי בקטגוריית האדמה באתר הבנייה ובעומק הביוב.
לאחר שהחלטנו על סוג היסוד ולאחר שהכנתם אותו, תוכלו להרכיב את הבית לאחר שקיבלתם ערכת בית מהיצרן עם התיעוד הנלווה.

ניתן לתאר את כל העבודות על הרכבת בית מלוחות SIP באופן הבא:
הערה! האפשרויות לקישוט הפנים וחזית הבניין תלויות בהעדפות האישיות של המשתמש וביכולותיו הכלכליות.
מאמר קשור:
בידוד לקירות הבית בחוץ לחיפוי. כיצד לבחור בידוד איכותי ואילו סוגים קיימים קרא עוד בפרסום נפרד של הפורטל שלנו.
האם ניתן לעשות זאת בעצמך לוחות SIP בבית
אם יש לך זמן וחשק פנוי, ניתן לייצר לוחות SIP בעבודת יד, אולם יש לציין מיד כי מוצרים כאלה יהיו בעלי מאפיינים שונים במקצת מאלו המיוצרים במפעל.
הערה! כאשר מייצרים אותם בתנאי מחזור הייצור, הדבקים מודבקים על ציוד טכנולוגי המספק לחץ עודף משמעותי.
לייצור תוצרת בית תצטרך, בנוסף ליריעות OSB ובידוד, גם דבק המבטיח את חיבורם (Macroplast UR 7229 (7228), Kleiberit, AveniR, TOP-UR (15-40)), וכן מכבש או משאבת ואקום. בנוסף, לייצור עשה זאת בעצמך תזדקק לשולחן הרכבה ולחותך תרמי, המיועד לחיתוך לוחות (בידוד) בהתאם למידות שצוינו.
סקירת מחירים לבניית בית מלוחות SIP "turnkey"
עלות בניית בית מלוחות SIP תלויה במדדים כגון:
- שטח אתר הבנייה ומספר הקומות;
- אזור עבודות ההתקנה והריחוק מיישובים גדולים;
- זמינות של תשתיות תחבורה;
- סוג החומרים המשמשים לייצור לוחות SIP.
נכון לעכשיו, עלות הקמתם של מתקני סוהר כאלה, למעט גימור ושירותי חשמל, נכון לרבעון השלישי של 2018, מוצגת בטבלה הבאה.
| אזור RF | עלות (נכון לאוגוסט 2018), רובל / מ"ר שטח כולל |
|---|---|
| אזור מוסקבה ומוסקבה | 9300 |
| אזור יקטרינבורג וסברדלובסק | 9500 |
| אזור ירוסלבל ויארוסלב | 10000 |
| טריטוריית קרסנודאר וקרסנודר | 10000 |
| ארכנגלסק ואזור ארכנגלסק | 8000 |
ביקורות של בעלי בתים מלוחות SIP
הודות לנוכחות האינטרנט, לאדם מודרני תמיד יש את ההזדמנות למצוא סקירה על מוצר או מוצר מסוים. זה חל במלואו על מבני בניין, כמו גם על טכנולוגיות - במקרה שלנו, על בתים שנבנו באמצעות לוחות SIP. הנה כמה ביקורות של משתמשים אמיתיים שבחנו את טכנולוגיית הבנייה הזו על עצמם:
ביקורות של בעלי בתים אמיתיים מלוחות SIP: וידאו












































