מדוד שבע פעמים: בחירת פרויקט בית העצים הטוב ביותר
אם אתה רוצה להפחית את עלויות הבנייה ולקחת בחשבון מראש את כל הניואנסים של שימוש בדיור במהלך ההפעלה, שים לב למאמר זה. בפרסום היום של מערכת המערכת homebase.decorexpro.com/iw/, נספר כיצד צריך לשרטט את הפרויקטים של בתים מיומן. במאמר זה נציג בפניכם את הרעיון מהו פרויקט בית בודד, מה ההבדלים בין אפשרויות בנייה בקיץ לאפשרויות בנייה בכל ימות השנה, מהו רצף עבודות הבנייה והסקירה ולמה עליכם לשים לב בעת עריכת אומדן ותכנית בנייה.
תוכן המאמר
- 1 יתרונות, חסרונות, תכונות של בתי עץ מודרניים
- 2 סוגי פרויקטים של בתים מעץ עצים מעוגל, סקירה כללית של ההצעות הנוכחיות עם מחירים
- 3 תכונות של פיתוח פרויקטים של בית עץ מעץ עץ מעוגל
- 4 ההבדלים בין פרויקטים של בנייני עץ בקיץ מבתי עץ לבני מגורים קבועים
- 5 בניית בית מיומן מכויל או כריתה ידנית - היתרונות והחסרונות של טכנולוגיות שונות
- 6 פרויקטים של בתים מעץ עץ מעוגל עם תמונות והערות שימושיות
- 7 גיבוש מחיר הפרויקט ובניית בית עץ עץ, בית עץ עץ סוהר
- 8 בחירת הפרויקט הטוב ביותר לבית מתוך יומן - מסקנות ומידע נוסף
- 9 סרטון: תיאור יישום פרויקט הבית מיומן
יתרונות, חסרונות, תכונות של בתי עץ מודרניים
ללא הגזמה, ניתן לקרוא לחומרי בניין אלה ייחודיים. לכל יומן יש דפוס חתך ספציפי. בנוסף למראה הבלעדי, ישנם כמה יתרונות חשובים שיש לציין:
- ניקיון אקולוגי;
- התקנה מהירה;
- קלות הטיפול בחומרים;
- תכונות בידוד תרמי מעולות;
- משקל סביר שאינו מגדיל יתר על המידה את העומס על הקרקע והיסוד;
- בבית עץ, מיקרו-אוורור טבעי מקל על שמירת תנאי הטמפרטורה;
- פיטונצידים בריאים המשפרים את הרכב האוויר בחדרים.
יש לרשום חסרונות לניתוח אובייקטיבי:
- מוצרי עץ נפגעים משינויים בלחות ובטמפרטורה.
- עליהם להיות מוגנים מפני חרקים נרקבים ומזיקים.
- החומר דליק, ולכן נדרשים אמצעי בטיחות אש מיוחדים.
- יש לקחת בחשבון את עוצמתו המוגבלת בעת יצירת המסגרת המבנית של הבניין במהלך הפעולה.
- חיי השירות האופייניים של מבני עץ נמוכים מזו של אנלוגים עשויים בֵּטוֹן, לבנים.
הממדים של מוצרי העץ משתנים משמעותית ככל שהם מתייבשים. בית העץ נותר לעיתים למשך מספר חודשים לאחר סיום ההרכבה. יתר על כן, בעת התקנת גושי חלונות ודלתות משתמשים בפערים טכנולוגיים עם מילוי רך. תכונות אלה מגדילות את העלות הכוללת.

לפעמים התרגול מפריך הנחות תיאורטיות. בתים נורבגיים אלה נותרו שלמים במשך מאות שנים ללא שימוש בטיפולי מגן מודרניים.
מאמר קשור:
קורות עץ הן הפיתרון הטוב ביותר לביתכם. יתרונות וחסרונות של החומר, הזנים והמחירים בפרסום נפרד של הפורטל שלנו.
סוגי פרויקטים של בתים מעץ עצים מעוגל, סקירה כללית של ההצעות הנוכחיות עם מחירים
עלות תיעוד הפרויקט תלויה בגורמים רבים. סט רישומים סטנדרטי ניתן לרכוש בזול יותר. ביצוע התאמות קשור לעבודת המומחים ולעלויות הנוספות המתאימות. היקרים ביותר הם פרויקטים של בתי עץ, שנוצרו על פי משימה טכנית ייחודית.
פרויקט סקיצות בית
קבוצות מסמכים אלה מכילות אינדיקטורים טכניים וכלכליים כלליים. שרטוט של בניין עם מידות יאפשר לכם לבחור מיקום בתחומי חלקת הקרקע.
בנוסף לתצפיות מכל עבר, ניתן להזמין סקיצה תלת מימדית של המבנה וחללי הפנים. חומרים כאלה נוצרים בצורה תלת מימדית עם אפשרות להדמיה מנקודות שונות. עלות עיצוב טיוטה של בית עץ יומן היא 80-140 רובל. למ"ר מהשטח הכולל.
פרויקט בית אישי
לצורך בנייה, אישור היתרים רשמיים, רישום ממלכתי של נכס, יש צורך להכין סט תיעוד מלא. הוא מכיל ציורים עם קטעים, תיאור יחידות מורכבות, חישובים הנדסיים.
פותח בנפרד אספקת מים, מערכות הנדסיות אחרות. במידת הצורך, בצעו קשירה בשטח, הכינו פרויקטים עיצוב נוף, בניינים נוספים. עלות חבילת התיעוד העיקרית היא 140-250 רובל. למ"ר.
פרויקט בית טיפוסי
ערכה מוכנה היא לא רק זולה יותר מהכנה אישית של חבילת תיעוד. במקרה זה, אנו מדברים על פיתרון שהוכח בפועל. תוכלו להתחיל מיד את שלב הבנייה, לרכוש חומרים, לחפש צוות בנייה. אם תרצה, לשכת האדריכלות תבצע שינויים קטנים בעלות מינימלית. מותרים תיקונים שאינם משפיעים על שלמות המבנים נושאי העומס. במגוון רחב של הצעות סטנדרטיות קל למצוא אפשרות עם פרמטרים מתאימים.
מאמר קשור:
מהי כרכרת נשק: יתרונות וחסרונות, מאפיינים עיקריים, בחירת פרויקט לבניית בית ואמבטיה מכרכרת נשק, תכונות של טכנולוגיה נורבגית וטיפים שימושיים - בפרסום שלנו.
תכונות של פיתוח פרויקטים של בית עץ מעץ עץ מעוגל
כל העבודות חייבות להתחיל בפיתוח תוכנית קומה של המקום. במקרה זה, אל תחסוך מקום. חדרים נפרדים מועילים לאירוח אורחים, תחביבים של מארחים, חדרי אחסון וחדרי הלבשה.מקום לנוח עליו מרפסת ליצור בעיצובים שונים לשימוש בקיץ / כל השנה.
הכן רשימת צרכים לכל מערכת הנדסית. כדי לחשב את אספקת המים, למשל, אתה צריך לא רק את מספר המשתמשים. יהיה עליך לשקול את תדירות הליכי ההיגיינה, העדפות אישיות אחרות ועומסי שיא.
חקור את האזור בנפרד. בדוק את הנוחות של הכבישים המהירים והולכי הרגל. מיטות, עצי פרי, באר ובית צריכים להיות רחוקים מספיק מבור הספיגה. הכן את תוצאות הסקרים הגיאולוגיים. הם יעזרו לך לבחור נכון קרן... ברמה גבוהה של מי תהום, מתאר מיוחד תכנית ניקוז.
מאמר קשור:
פרויקטים של בתי מסגרות, תמונות ומחירים. מדוע טכנולוגיית המסגרות כה פופולרית? כמה שווה בית כזה? קרא עוד בפרסום נפרד בפורטל שלנו.
ההבדלים בין פרויקטים של בנייני עץ בקיץ מבתי עץ לבני מגורים קבועים
אם צפויה פעולה עונתית, תוכלו להוזיל עלויות בכמה אזורים. אין צורך במערכת חימום מלאה. לחימום בזמן הצמד קר, זה מספיק להשתמש בתנור מאוורר. יש להתייחס לביצועי בידוד באופן דומה. גושי החלונות הפשוטים ביותר, קבוצות כניסה ללא אולם כניסה, מתאימים למדי. במצבים מסוימים, אספקת מים נייחת אינה מותקנת. המשאבה לאספקת נוזלים מהבאר לבית מחוברת על פי תוכנית זמנית.
הפרויקט של בית מגורים קבוע נוצר ללא החריגים המפורטים לעיל. עבור אזור מוסקבה, מומחים ממליצים להשתמש בולי עץ בקוטר של 250-270 מ"מ לפחות. עובי הקיר מעץ מלא חייב להיות לפחות 200 מ"מ.
לפעמים הם מותקנים בחלקה החיצוני של לוח פוליסטירן מוקצף (50-100 מ"מ). זה מקטין את המוליכות התרמית הכוללת. אך יחד עם זאת חילופי האוויר הטבעיים נחסמים. ביצועי בידוד מקובלים יתקבלו גם ללא שכבה נוספת. עם זאת, יש צורך להשתמש בחלונות עם זיגוג כפול מרובה חדרים, דלתות מודרניות עם קווי מתאר אטמים מרובים. פרוזדור יהיה שימושי, שימנע חדירת אוויר קר לחדר בחורף.
מאמר קשור:
פרויקטים של בתים מבר למגורי קבע פופולריים במיוחד. היתרונות והחסרונות של בתים מבר, זנים, פריסות, פרויקטים של בניינים חד קומתיים ושתי קומות - בפרסום שלנו.
בניית בית מיומן מכויל או כריתה ידנית - היתרונות והחסרונות של טכנולוגיות שונות
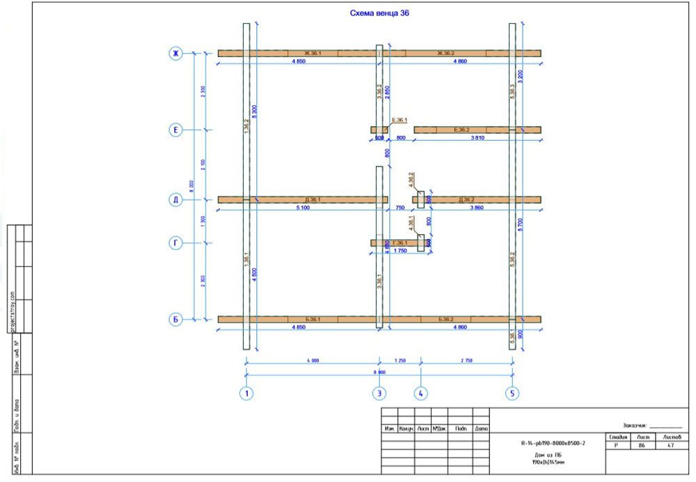
בעת יצירת מוצרים סטנדרטיים בשיטת מפעל, קוטר זהה מסופק לכל אורך העבודה. טכנולוגיה זו מלווה בצריכה מוגברת של חומרי גלם, מה שמשפיע יותר ויותר על העלות. מצד שני, חלקים שטוחים קלים יותר להתקנה. האסיפה אינה דורשת כישורים גבוהים של המבצעים.
חסרון משמעותי הוא הפחתת הכוח הכללי, מכיוון שהחלק החזק של תא המטען נגזז. תזוזת הליבה לאורכה מעוררת דפורמציות חזקות.
הסרת שכבות פני השטח מעוררת נזקים פטרייתיים וביולוגיים אחרים. לחות חודרת לחומרים כאלה. במחיר סביר קשה למצוא בולי עץ מעוגלים עבים בקוטר של יותר מ -300 מ"מ.
טכנולוגיה זו שומרת על שכבות הגנה טבעיות. במקרה זה, אמבטיות ומבנים קטנים יחסית אחרים מורכבים ללא דיבלים. קל למצוא עבודות עבודה בקוטר של יותר מ -400 מ"מ במחיר סביר.
החיסרון העיקרי הוא התלות הגדולה במיומנות של צוות המומחים. שירותיהם של בעלי מלאכה מיומנים מאוד יקרים.
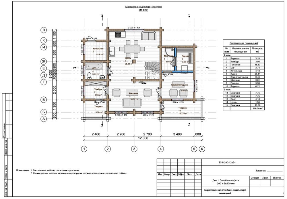
פרויקטים של בתים מעץ עץ מעוגל עם תמונות והערות שימושיות
הדוגמאות הבאות מדגישות פרטים שכדאי לשים לב אליהם. זכור את הפונקציונליות כשאתה חוקר בתים יפים. שינויים נכונים בפרויקט המוגמר יעזרו לקחת בחשבון את משאלותיהם המדויקות של המשתמשים העתידיים. כמה יצרנים מתמחים מציעים מבחר של:
- תא ידני;
- יומן מעוגל;
- קורות צדודית / מודבקות.
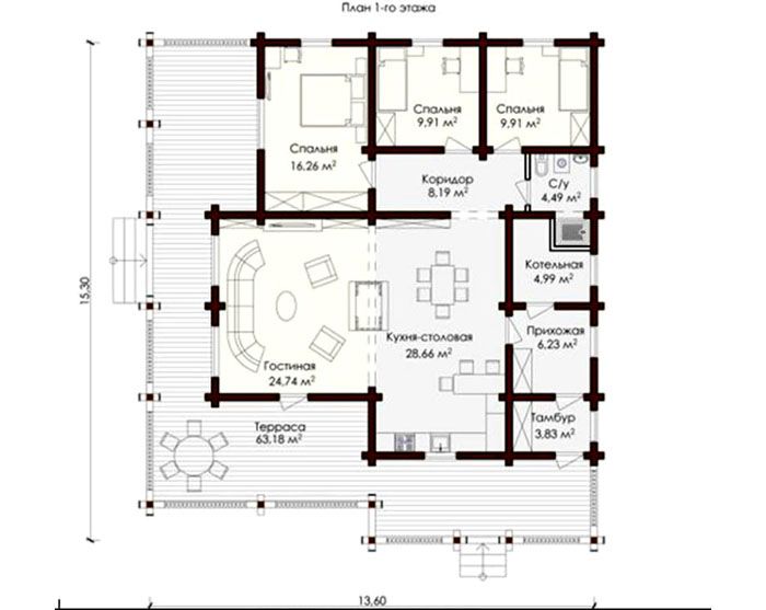
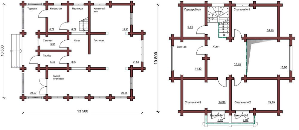
פרויקטים של בית למגורי קבע
בבניינים חד קומתיים אין מעברים לרמות שונות, לכן ניתנת הפעלה נוחה. הדרישות לגודל האדמה הולכות וגדלות. שטח הקירות החיצוניים גדל, ולכן יש צורך בבידוד תרמי איכותי. העומס על הקרן מצטמצם.
| קְבוּצָה | אפשרויות | הערכים |
|---|---|---|
| אינדיקטורים טכניים | מספר הקומות | 1 |
| מספר חדרי שינה | 3 | |
| שטח כולל, מ"ר | 210 | |
| מאפייני עיצוב | קרן | ערימה-גרילאז '. |
| קירות | הם מותקנים באמצעות מחברים עמידים מגולוונים. נעשה שימוש בבידוד בין הכתרים. | |
| גג | מסגרת מסבך עשויה לוחות. בידוד סיבים - 20 ס"מ. אריחי מתכת, מרזב ומערכת החזקת שלג. | |
| מחיר (נכון ליוני 2018), רובל, | פּרוֹיֶקט | 32000 |
| בניית סוהר | 3600000 |

תכניות קומה. הסרה מחוץ למעגל המגורים מפשט את בידוד החדרים הטכניים. כניסה נפרדת לחדר הדוודים נוצרת בהתאם לתקנות הנוכחיות
| קְבוּצָה | אפשרויות | הערכים |
|---|---|---|
| אינדיקטורים טכניים | מספר הקומות | 2 |
| מספר חדרי שינה | 3 | |
| שטח כולל, מ"ר | 269 | |
| מאפייני עיצוב | קרן | גריל על ערימות. מתאים לקרקעות רכות. |
| קירות | הם יכולים להיות עשויים בר, בולי עץ מעוגלים עם בידוד בין הכתרים. | |
| גג | קורות עץ. אריחי מתכת. בידוד צמר מינרלי עם קיטור ואיטום. | |
| מחיר (נכון ליוני 2018), רובל, | פּרוֹיֶקט | 36000 |
| בניית סוהר | 5600000 |
| קְבוּצָה | אפשרויות | הערכים |
|---|---|---|
| אינדיקטורים טכניים | מספר הקומות | 2 |
| שטח כולל, מ"ר | 212 | |
| מאפייני עיצוב | קרן | בתוספת תשלום. בורג - 275,000 רובל; קלטת - 480,000 רובל; לוח - 960,000 רובל. |
| קירות | בולי עץ מעוגל. גובה הקירות 290 ס"מ. | |
| גג | בגרסה הבסיסית - לבד תחת קירוי. התקנת אריחי מתכת - 570,000 רובל. | |
| מחיר (נכון ליוני 2018), רובל, | פּרוֹיֶקט | 21000 |
| בניית סוהר | 2280000 |
עם חלק זה של המבנה, אתה יכול לפצות בקלות על שטח לא אחיד. עם גובה מספיק, ניתן להכין בו חדרי שירות. אלמנט זה מונע חדירת לחות לאלמנטים מעץ.
בתים כפריים בקיץ מעץ עץ עם תמונה בתוך הבית
במבנים כאלה ניתן להפחית את עובי הקירות. העיקר הוא להבטיח את יציבות המבנה.
| קְבוּצָה | אפשרויות | הערכים |
|---|---|---|
| אינדיקטורים טכניים | מספר הקומות | 1 |
| מספר חדרי שינה | 1 | |
| שטח כולל, מ"ר | 46 | |
| מאפייני עיצוב | קרן | הברג ערימות עם גריל. |
| גג | אריחים רכים. | |
| מחיר (נכון ליוני 2018), רובל, | פּרוֹיֶקט | 17600 |
מאמר קשור:
פרויקטים של בתים כפריים עבור 6 דונם. דוגמאות צילום לבתי כפר יפהפיים וקומפקטיים עם המלצות לבחירת מתווה בפרסום נפרד של הפורטל שלנו.
פרויקטים של אמבטיות מעץ עץ
ניתן להתקין בניינים כאלה על בסיס מוכן תוך 1-2 ימים. מיקרו-אוורור טבעי מתאים היטב למטרה פונקציונאלית זו.
| קְבוּצָה | אפשרויות | הערכים |
|---|---|---|
| אינדיקטורים טכניים | מספר הקומות | 1 |
| שטח כולל, מ"ר | 18 | |
| מאפייני עיצוב | קרן | בתוספת תשלום. בורג - 70,000 רובל; קלטת - 160,000 רובל; לוח - 270,000 רובל. |
| קירות | בולי עץ מעוגלים עם דחיסת יוטה. | |
| גג | שלבקת חוגרת גמישה. | |
| מחיר (נכון ליוני 2018), רובל, | פּרוֹיֶקט | 4000 |
| בניית סוהר | 360000 |
| קְבוּצָה | אפשרויות | הערכים |
|---|---|---|
| אינדיקטורים טכניים | מספר הקומות | 1 |
| שטח כולל, מ"ר | 50 | |
| מאפייני עיצוב | קרן | בתוספת תשלום. בורג - 136,000 רובל; קלטת - 230,000 רובל; לוח - 480,000 רובל. |
| קירות | בולי עץ מעוגלים בקוטר 200 מ"מ. | |
| גג | שלבקת חוגרת גמישה עם בידוד, קיטור ואיטום. | |
| מחיר (נכון ליוני 2018), רובל, | פּרוֹיֶקט | 5200 |
| בניית סוהר | 518000 |
מאמר קשור:
פרויקטים של סאונה עם חדר מנוחה וטרסה. בפרסום נפרד תוכלו ללמוד על פריסות המוצלחות ביותר של אמבטיות עם הרחבה בצורה של מרפסת או טרסה.
גיבוש מחיר הפרויקט ובניית בית עץ עץ, בית עץ עץ סוהר
ברור שעלות הבסיס היא המינימום שעליו יהיה להתבסס בעת התחלת חישוב ההוצאות. הוצאות נוספות יעלו בהכרח במהלך העבודה. השימוש באריחי קרמיקה, למשל, מעלה לא רק את עלות החומרים. עלינו לחזק את הבסיס תוך התחשבות בעליית המשקל.
צילום בית עץ יומן נותן רק מושג כללי על הפרמטרים האסתטיים. תוכלו ללמוד בצורה מדויקת יותר את הפרויקט באמצעות מודל מחשב. גימור נוסף מגדיל את העלויות. השימוש בעץ טבעי מאפשר לך למזער עבודה זו. עליכם ללמוד היטב את רשתות ההנדסה הפנימיות והחיצוניות, לקחת בחשבון את תכונות ההתקנה בבניינים העשויים מחומרים דליקים. השקעות ביחידות חלונות ודלתות איכותיות משתלמות באמצעות הפחתת עלויות התפעול.
בחירת הפרויקט הטוב ביותר לבית מתוך יומן - מסקנות ומידע נוסף
זה נוח להזמין פרויקט של בית מיומן מלא עם בנייה סוהרת. בגרסה זו, הקבלן אחראי לא רק על תיעוד התכנון. החוזה קובע את תנאי הבנייה, הערבויות הרשמיות, הסנקציות בגין אי מילוי ההתחייבויות שהונחו. למידע נוסף ראו הערות ההודעה. השאירו כאן הערות משלכם לגבי פרויקטים, טכנולוגיות מעניינות.












































