כיצד מחשבים את שטח החדר: ייעוץ מקצועי וכללים בסיסיים
תיקונים בכל חדר יש צורך בהשקעות כספיות משמעותיות. אתה יכול להפחית את העלויות שלך על ידי רכישת כמות החומר האופטימלית. לשם כך, עליך לדעת בדיוק את הממדים והתכונות של חדר מסוים. זה ימנע את המצב כאשר לאחר סיום העבודה נותרה כמות מסוימת של טפט או לרבד, שקשה להשתמש בו בעיצוב חדר אחר. לא כולם יודעים לחשב את שטח החדר אם צורתו שונה מזו הנכונה. מגזר, חצי עיגול או טרפז יכולים ליצור קשיים בחישוב עבור אלה שסיימו את בית הספר מזמן או שלטו בצורה גרועה במסלול המתמטיקה. עם זאת, כזכור את הנוסחאות הבסיסיות, לא יהיה קשה להתמודד עם המשימה.
תוכן המאמר
כיצד מחשבים מ"ר: ניואנסים שבהחלט עליכם להכיר
לרוב, כאשר מציין את ריבוע האריזה של חומר בניין מסוים, היצרן נותן מטרים רבועים. מערכת ה- SI אומצה במדינות רבות. איך מחשבים מטר מרובע? אתה יכול לצייר ריבוע עם צד של מטר. במקרה זה, המשטח המתואר על ידי ריבוע זה יהיה שווה למטר מרובע. מרבית מכשירי המדידה מאפשרים לך להשיג תוצאות מדידה באופן מיידי במטר רבוע.
בנוסף למטר רבוע, תוכלו להשתמש ביחידות מדידה אחרות. בעזרת מחשבון מקוון, חישוב מטרים רבועים פשוט מאוד.עם זאת, אם תרצה, התרגום יכול להתבצע באופן עצמאי, על ידי הכפלת הערך הקיים במקדם המתאים, תוכל למצוא את הערך הרצוי. ראשית עליך להגדיר באמצעות יחידת מדידה חדשה. אם זה:
- רגליים. אנו משתמשים במקדם של 0.093. יחס זה אופייני ליחידות מרובעות. לאחר חישוב הערכים הליניאריים ברגליים וקבלת הערך ברגליים, הכפל את הריבוע ב- 0.093 כדי לקבל את הערך בריבוע החדש לידי ביטוי במטר רבוע. אם החישוב נעשה כהלכה, הביטוי המספרי לאזור אמור לרדת. אם מוטלות דרישות מוגברות לדיוק החישובים, עדיף להשתמש ב- 0.092903 במקום במקדם של 0.093;
- חצרות. המקדם הוא 0.84. המרת גרעינים למ"ר מתבצעת על פי האלגוריתם שתואר לעיל. לחישובים מדויקים יותר, ניתן להשתמש במקדם התיקון 0.83613;
- דונמים. בעת חישוב ריבוע החדר, לעתים רחוקות משתמשים ביחידות כאלה, שכן דונם אחד שווה ל -4050 מ"ר. עם זאת, במידת הצורך, ניתן לבצע את התרגום באמצעות גורם תיקון של 4050 (4046.9 לחישוב מדויק יותר).
יחידות אחרות אפשריות גם כן. בתרגום האזור חשוב לזכור שאנחנו מדברים על ריבועים, ולכן לא משתמשים ביחס הממדים הליניאריים, אלא באזורים. די קל למצוא את גורם התיקון במקרה זה. אם ידוע שהמטר ויחידת המדידה הרצויה קשורים כמקדם K, אז מקדם התיקון יהיה שווה מספרית ל- K².
הערה! באמצעות מחשבונים מקוונים ניתן להמיר מטרים רבועים בקלות לכל יחידת מדידה אחרת בשבריר שנייה, תוך הימנעות מחישובים מורכבים.
כיצד לחשב את השטח: זכרו את הנוסחאות הבסיסיות
רבים מעוניינים כיצד לגלות את השטח של חדר מסוים, תוך שהם יודעים את הממדים הליניאריים שלו. במבט ראשון, החישוב עשוי להיראות זמן רב מדי. אנשים רבים מעדיפים להיעזר במומחים, מתוך אמונה שבמקרה זה ניתן יהיה להימנע מטעויות. אם אינך רוצה לשלם כסף עבור עבודה שתוכל לבצע בעצמך בקלות, עליך לזכור את הנוסחאות הבסיסיות לחישוב השטח. בעזרתם ניתן יהיה לחשב את הרבע של כל חדר.
כל אחד יכול לענות בקלות כיצד לחשב את השטח של משטח מלבני או מרובע. משולש, עגול או בצורת קטע יכול לגרום לקשיים מסוימים. לאחר שעדכן את הידע שלך, אתה יכול מיד להתחיל לחשב את שטח החדר בצורה פשוטה.
לדעת את סדר החישוב הפשוטים, קל להבין כיצד לחשב את השטח של משטח מורכב. אפילו את הנתון המסובך ביותר ניתן לחלק להרבה פשוטים ואז לאחר ביצוע החישוב של כל אחד מהם, מצא את הערך הכולל.
כיצד לחשב את שטח המשולש: באמצעות נוסחאות מוכחות
חדר משולש הוא נדיר. עם זאת, אם לחדר יש פריסה לא סטנדרטית, הוא מחולק נפשית לדמויות פשוטות, אחת מהן עשויה להיות משולש. כיצד מחושב שטח המשולש? פשוט מספיק. ניתן לבצע את כל החישובים באופן עצמאי או באמצעות מחשבון מקוון.
כדי לחשב את שטח המשולש לבד, עדיף להשתמש בנוסחה הבאה:
S = 1/2 × H × Aאיפה
א - צד;
ה האם הגובה נמשך לגובה זה. שווה מספרית לאורך הניצב שנפל מהזווית שמול הצד הנתון.
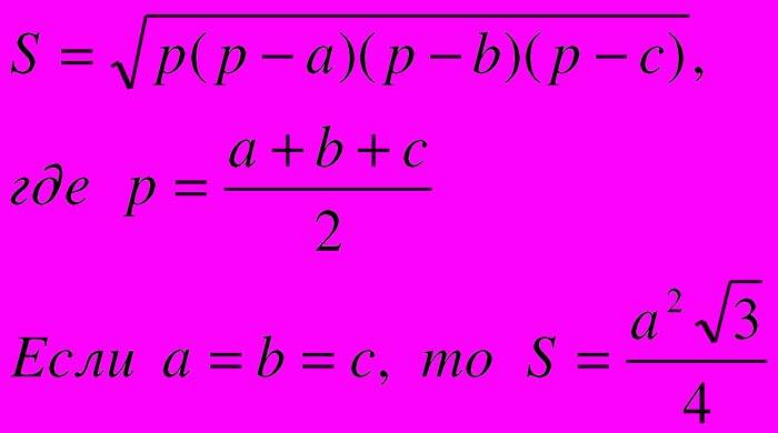
החישוב באמצעות נוסחה זו הוא די פשוט. עם זאת, אם מתבצעת שגיאה בתהליך ביצוע מדידות, למשל בשל מדידה שגויה של הגובה, הערך המתקבל עשוי להיות שונה באופן משמעותי מהערך האמיתי. כדי להימנע מכך, ניתן להשתמש בנוסחת הרון המורכבת יותר, המאפשרת למצוא את ריבוע המשולש באורכי שלושת צלעותיו: A, B ו- C.
כדי לחשב, אתה צריך למצוא חצי מידה p, שווה מבחינה מספרית ל- ½ (A + B + C)... שטח המשולש במקרה זה יהיה שווה לשורש הריבועי של המוצר p × (p - A) × (p - B) × (p - C).
מחשבונים מקוונים מציעים להשתמש בכמה שיטות חישוב בו זמנית עבור:
- היסוד והיסוד הנמשך אליו;
- הנוסחה של אנפה;
- אורכי הצדדים הסמוכים והזווית ביניהם.
מחשבון לחישוב שטח חדר משולש
כיצד למצוא את השטח של המלבן: קח בחשבון את הניואנסים ותכונות החישוב
רוב החדרים הסטנדרטיים הם מלבניים בדיוק. במיוחד בבניינים רבי קומות. כדי לחשב את שטח המלבן בעל הצורה הגיאומטרית הנכונה, עליך לדעת את אורך A ורוחב B של החדר. בואו ונכפיל אותם יחד:
S = A × B
הפרמטר הנדרש יבוא לידי ביטוי ביחידות הריבועיות המתאימות.
לדעת כיצד לחשב את השטח של המלבן, אתה יכול לבדוק את התוצאה שלך באמצעות מחשבון. במקרה זה ניתן למצוא את הערך הרצוי בדרכים שונות באמצעות:
- גובה ואורך הבסיס;
- שני צדדים וזווית ביניהם;
- שתי אלכסונים וזווית ביניהם.
כל שלוש השיטות יתנו את אותו הערך, בתנאי שהמידות נלקחו כהלכה. תמיד ניתן להשתמש במחשבון מקוון לבדיקת הערך שהתקבל. לרוב, באמצעות מחשבון מקוון לחישוב שטח המלבן, נכנסים אורך ורוחב הצדדים ואז נבחרות יחידות המדידה. לאחר לחיצה על כפתור "חישוב" תוכלו לראות את הערך הרצוי.
כדי שתוכל להשתמש בנוסחאות אלה ובמלבן, עליך לבדוק את תקינות המלבן. עבור דמות כזו, הצדדים הנגדי והאלכסונים חייבים להיות שווים, והסמוכים חייבים להצטלב בזווית ישרה. אם מתברר שהצדדים הנגדיים שווים, והסמוכים אלה מצטלבים בזווית של 85 מעלות, אז לא מדברים על מלבן, אלא על מקבילית. הליך החישוב במקרה זה יהיה שונה במקצת.
תשומת הלב! אל תסמוך על בונים. מדוד את אורכי כל הצדדים, הפינות והאלכסונים כדי לוודא שהחישובים נכונים.
אם לאחר מדידת האלכסונים מתקבלים ערכים שונים, הרי שלחדר יש צורה של מקבילית, ולא מלבן. כדי לחשב את הרבעון, עליך למדוד בנוסף את גובה הדמות הנמשכת לצד הגדול יותר. לזה:
- סמן נקודה בצד הגדול יותר. אתה יכול להשתמש בנקודת הצומת של הצדדים הסמוכים;
- אנו מורידים את הניצב. עליו לחצות את הצד הנגדי;
- אנו מודדים את ערך הגובה H;
- אנו מחשבים את שטח החדר על ידי הכפלת H באורך הצד הארוך יותר A.
מחשבון לחישוב שטח חדר מרובע
כיצד לחשב את השטח של טרפז: הנוסחה תעזור
לפני שתמשיך בחישובים, עליך לזכור איזה מרובע נקרא טרפז. זוהי דמות בה שני צדדים מנוגדים מקבילים זה לזה (בסיסים), ושני הצדדים האחרים ממוקמים באופן שרירותי. הזוויות בין הבסיס לדפנות עשויות להיות שוות או לא.
כדי לחשב את השטח של טרפז, נדרשים הפרמטרים הבאים;
- אורך הבסיסים A ו- B;
- גובה הטרפז H הוא המרחק בין הבסיסים. כדי למצוא את הערך, מדוד את אורך הקו בניצב לשני הבסיסים.
תשומת הלב! על ידי מדידת גובה המרובע בנקודות שונות, תוכלו לוודא שהבסיסים מקבילים.
אם אנו מדברים על אופן חישוב השטח של טרפז, עליכם להשתמש בנוסחה הבאה:
S = 1/2 (A + B) × H
רצף החישוב אינו תלוי ביחס בין אורכי הבסיסים או בערך הגובה. הנוסחה חלה על נתונים שווים ועל נתונים רגילים. באמצעות מחשבון מקוון תוכלו לקבל את ריבוע הרצפה באורכי הבסיסים והדפנות. עם זאת, במקרה זה, עליכם גם לוודא שהחדר טרפז.
כיצד לחשב את שטח המעגל: נוסחה בסיסית
האולם העגול יכול להפוך לקישוט אמיתי של בית פרטי או מבנה ציבורי. חשוב להבין כיצד ניתן לחשב את שטח המעגל. כדי למצוא את הערך הרצוי, עליך לדעת את הרדיוס r או קוטר d של המעגל. פרמטר זה ניתן למצוא על ידי ציור קו במרכז המעגל. קוטרו יהיה שווה לערך המצוי, ורדיוסו יהיה חצי.
בעת חישוב שטח המעגל, חשוב לשקול באיזה גודל יהיה עליכם להשתמש. אם אנחנו מדברים על הרדיוס, אז שטח המעגל יהיה שווה ל:
S = π × r²
בעת שימוש בקוטר:
S = π × D² / 4
אנו מחשבים את שטח המגזר והמגזר
חדרים עגולים הם נדירים. אבל עם פינות מעוגלות בחדר מסוים ניתן להיתקל לעתים קרובות למדי. כדי לחשב את ריבוע החדר, עליך להשתמש בנוסחאות לשטח של מגזר מעגל. יש רק שניים מהם. איזה מהם עדיף יהיה תלוי בנתוני הקלט הזמינים.
במקרה הראשון, כדי לחשב את הפרמטר הרצוי, עליך לדעת את אורך הקשת lהתוחם את המגזר ואת רדיוס המעגל ר... אזור המגזר במקרה זה יהיה שווה ל:
S = 1/2 × l × r
בהתחשב בקו המעוקל, יכול להיות קשה למצוא את הערך המדויק של הקשת. במקרה זה, עליך להשתמש בערך הזווית αנוצר על ידי הרדיוסים שקשרו את המגזר. השטח יהיה שווה ל:
S = π × r² × α / 360
בהתאם לנוסחה זו, שטח חצי העיגול יהיה שווה ל- S = ½ × π × r², ורבע מעגל ¼ × π × r².
לפעמים ייתכן שיהיה צורך לחשב את השטח של קטע מעגל. לשם כך, תחילה מצא את ריבוע המגזר, שממנו נגרע שטח המשולש.
לדעת את רדיוס המעגל ואת הזווית בין רדיוס המגזר, אתה יכול למצוא את שטח הקטע כדלקמן:
S = r² / 2 × (π × α / 180 ° - sin (α))
תשומת הלב! בעת ביצוע חישובים יש להחליף את ערך הזווית במעלות.
אם חישוב השטח של מגזר ופלח גורם לקשיים מסוימים, כדאי להשתמש במחשבון מקוון.בעת הזנת הנתונים הראשוניים, עליך לשים לב במיוחד ליחידת הזווית. אם ברצונך להזין ערך ברדיאנים, יש לחלק את המעלות ב- p.
כיצד לחשב את שטח החדר: ייעוץ והמלצות מעשיות יעזרו
לפני שתמשיך בחישוב, עליך להתכונן. נדרש:
- רוּלֶטָה;
- עִפָּרוֹן;
- עיתון. עדיף להשתמש במחברת או במחברת, שבהם, לפי הצורך, יוכנסו כל המדידות והחישובים;
- כיכר. רצוי להחזיק מוצר עם אורך צד גדול במלאי, מכיוון שבמקרה זה איכות המדידה תהיה גבוהה יותר;
- סרגל. אין צורך לרכוש מכשיר מדידה במיוחד. לשם כך, רמה ארוכה היא מושלמת, איתה תוכלו לשלוט גם בסטייה מהאנכי והאופקי.
רולטה יכולה להיות:
- מֵכָנִי. מד זול שכל אחד יכול להתמודד איתו. כדי לקבל מדידות מדויקות, עדיף למדוד עם שני אנשים. שגיאת המדידה היא סטנדרטית. יחידת המידה היא המילימטר;
- אֶלֶקטרוֹנִי. אלומת אור משמשת בתהליך המדידה. לרוב קרן לייזר. על ידי כיוון הקורה לנקודה ספציפית, תוכלו לקבל את המרחק בינה לבין מיקומכם. יחידת המידה היא מילימטרים או סנטימטרים. דגמים מסוימים מאפשרים לך לקבל מיד את הריבוע של החדר ללא חישובים נוספים. אדם אחד יכול להתמודד עם המדידה. מכשירים אלקטרוניים מאפשרים קבלת ערכים מדויקים של הערך הנמדד בפרק זמן קצר.
עצה שימושית! יש למדוד את אותו פרמטר לפחות שלוש פעמים בנקודות שונות. השתמש בממוצע החשבוני בחישובים הבאים.
כדי לחשב את שטח הרצפה, עליך להחליט מאילו צורות גיאומטריות פשוטות הוא מורכב. אם אנחנו מדברים על חדר סטנדרטי בבית פאנלים, אז ככל הנראה הרצפה תהיה מלבנית. מבנים כאלה בנויים מאלמנטים סטנדרטיים שצורתם וגודלם סטנדרטיים.
בבנייני דירות לבנים צורת הרצפה יכולה להיות שונה. יש לחלק את המשטח בצורה מותנית לצורות פשוטות, למצוא את השטח לכל אחד ואז להוסיף את הערכים שהתקבלו.
כדי לא להתבלבל בהמשך כשמתרגמים את השטח המחושב מיחידת מדידה אחת לאחרת, כדאי לדעת מראש כיצד מחשבים את המ"ר של החדר. לשם כך, מספיק להמיר באופן מיידי את כל הממדים הליניאריים שנמדדו למטר. לדוגמא, אם אורך של צד אחד של 500 ס"מ הוא 5 מ ', כלומר להמיר סנטימטרים למטר, יש לחלק את הערך הרלוונטי ב 100.
ניתן להשיג את השטח של רצפה מלבנית על ידי הכפלת אורך החדר ברוחבו. אם תצורת החדר שונה מהתקן: יש נישות מלבניות, הליך החישוב יהיה תלוי במיקומן:
- מחוץ לחצרים. מצב זה נוצר אם למשל מסירים את הקיר בין החדר למרפסת. ניתן לחשב את השטח הכולל על ידי חלוקה נפשית של החדר לשני מלבנים עם שטח S1 ו- S על ידי מדידת הצדדים של כל אחד מהם, ניתן לחשב את ריבוע הדמויות. השטח הכולל יהיה שווה ל:
S = S1 + S2
- בתוך בית. חישוב הריבוע של כל ריבוע דומה לאפשרות הראשונה. כדי למצוא את הערך הכולל מהגדול יותר, חיסר את הערך הקטן יותר, כלומר:
S = S1 ס2
- בפנים ובחוץ. אפשרות זו נדירה. כדי לבצע את החישוב, יש לחלק את החדר למספר מלבנים. יש להוסיף את הריבוע של אלה שמוסיפים שטח, ולהפחית את אלה שמצטמצמים.
כיצד לחשב את שטח הקירות: המלצותינו יעזרו לכם
הקירות בחדר הם בדרך כלל מלבניים. לפעמים יש טרפז, למשל עליית גג של בית פרטי... רבים מנסים לנהל ביעילות את כל הנפח הזמין, והצורה הטרפזית האופיינית מעניקה לחדר קסם מיוחד. כדי לחשב את כל ריבוע הקירות בבת אחת, יש להכפיל את גובה הקיר H בהיקף החדר p.
למי שלא יודע לחשב את היקף החדר, כדאי לזכור:
- אנו מודדים את אורכי כל הקירות בחדר: A, B, C, D;
- אנו מוסיפים את הערכים שהושגו יחד: p = A + B + C + D.
עם זאת, שטח הקירות הכולל יהיה שווה ל: S = H × p = H × (A + B + C + D).
תשומת הלב! בעת קביעת ערך הגובה, אין למדוד על הקיר. אם יש עקמומיות, הערכים המתקבלים לא יהיו מדויקים.
כשמחושבים את ריבוע הקירות, חשוב לזכור שלא כל השטח מועיל. מהערך המתקבל של השטח הכולל, כדאי להפחית את השטח הכולל של כל הפתחים הזמינים: קירות ודלתות. לדלתות, לפעמים משתמשים באותו חומר כמו בקירות. במקרה זה אין צורך להפחית את ריבוע הפתח. עם זאת, זה נדיר מאוד.
כדי לקבוע את הריבוע של פתח הדלת או החלון, יש לבצע מדידות בצדדים החיצוניים של הקופסה או המסגרת. החישוב מתבצע תוך התחשבות בתצורת החלון או הדלת. אם יש לו צורה מורכבת, אז אנחנו מתחלקים לצורות פשוטות, למשל, מלבן וחצי עיגול
בעת שימוש במחשבון, חישוב שטח קירות החדר פשוט מאוד. העיקר הוא למדוד ולהזין נכון את הערכים בתאים המתאימים, תוך בחירת יחידת המידה הרצויה.
וידאו: כיצד מחשבים את שטח הקירות










































