מטבח קיץ בארץ. פרויקטים, תמונות, רעיונות והמלצות
IN לא נוח לבשל בבית ביום חם: הוא חם ומחניק. אבל בדיוק בזמן הזה המארחת מבלה יותר זמן על הכיריים, כי בנוסף לבישול הרגיל, היא גם תגלגל שימורי אוכל. בנייה קלה, מטבח קיץ בארץ יעזור להקל על המשימה ולהפוך את החובה להנאה. פרויקטים, תמונות ורעיונות עיצוב שונים לפינה נעימה זו יסייעו לאומן הבית להגשים את חלומו בעצמו.
תוכן המאמר
כיצד לתכנן מבנה
לא קשה לבנות חדר אוכל זמני לבד, העיקר להתקרב באופן סביר למיקומו באתר ולבחירת חומרי הבניין.
הכנת פרויקט
השלב הראשון הוא לימוד תכנית האתר וקביעת המיקום למיקום האופטימלי של הבניין. על אתר זה לעמוד בדרישות הבאות:
- להיות קרוב לבית הראשי כדי שתוכל להביא מנות ואוכל;
- בעלי מסלולי גישה נוחים כך שאין מכשולים למעבר מבית לבניין;
- מומלץ לדאוג לקרבת האתר לתקשורת העיקרית: מים, ביוב וחשמל.
מידע מועיל! האפשרות האידיאלית תהיה נוכחות של מאגר טבעי או מלאכותי ליד הבניין.
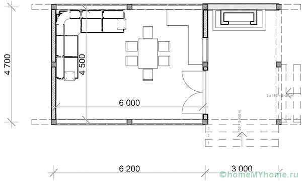
לאחר שהחלטתם על אתר הבנייה, עליכם למדוד את שטחו. גודל המבנה הזמני הוא נושא נפרד. אם זה יישא בנוסף לפונקציה של חדר אוכל, יהיה עליכם לספק מקום נוסף להתקנת שולחן ולהצבת כסאות או ספסלים. נוכחות בתנור אוכל או על האש גם מכתיב את הצורך להוסיף מטרים רבועים כדי להפריד בין הסדנה החמה לקבוצת האוכל.
גם עם היעדר כישורים אמנותיים מוחלטים, קל לצייר תוכנית למטבח העתידי באמצעות סרגל ונייר משובץ. כדי לשנות את המידה, עליכם לתאר את כל האובייקטים העיקריים שימוקמו בבניין: כיור, משטחי עבודה, כיריים או תנור, שולחן. אם למארחת יש עוזרים, עדיף שהחדר יהיה מאורך כך שיהיה נוח לכמה שפים לעבוד בו זמנית.
לינה עבור שולחן אוכל חייב להיות נוח, כיסאות צריכים מספיק מקום כדי לחזור אחורה.
עצה שימושית! אם אזור האתר אינו מאפשר הצבת מטבח זמני עם חדר אוכל, תוכלו לנטוש את הרעיון הזה ולהעביר את קבוצת האוכל ל מרפסת או ב ביתן.
מטבח קיץ פתוח או סגור בארץ? פרויקטים, תמונות, יתרונות וחסרונות
בניין קל יכול להיות עם או בלי קירות, בעל גג או להיות ממוקם באוויר הפתוח - הכל תלוי ברצונות ובדמיון של הבעלים.
חָשׁוּב!עדיף לסרב לאפשרות של מטבח באוויר הפתוח בתנאי קווי הרוחב הרוסיים. שמש חמה, גשם וברד יכולים להביא להפתעות לא נעימות.
בעיקרון אין צורך בקירות חדר האוכל הכפרי. המשימה העיקרית שלה היא לאפשר בישול בחוץ, ולכן זה מספיק חוּפָּה ותומך. זה עניין אחר אם הבניין ישמש בתקופת הסתיו-חורף. במקרה זה, יש לספק קירות וזגגות להגנה מפני מזג אוויר גרוע וקור. יתרונות בניין פתוח:
- גישה לאוויר הצח;
- קלות תנועה;
- היכולת לבשל אוכל לא רק על נייח, אלא גם על גריל נייד;
- עלויות בנייה נמוכות.
ישנם גם חסרונות:
- אי נוחות של בישול ואכילה במזג אוויר סוער ובתקופות קרירות ביום;
- זמינות מקום אחסון לכלים ומוצרים לבעלי חיים מקומיים ובר.
בניין סגור
יתרונות:
- היכולת להשתמש במטבח בכל מזג אוויר;
- באזור סגור ניתן להניח ציוד רגיש ללחות אטמוספרית.
מינוסים:
- יהיה חם כמעט במטבח עונתי סגור כמו בבית;
- התקנת מנגל וכיריים תדרוש ארגון מכסה מנוע מיוחד;
- עלות בניית מטבח כזה תהיה גבוהה בהרבה.
מטבח קיץ פתוח בארץ: פרויקטים, תמונות, חומרים
אפשרות חדר האוכל הפתוחה יכולה להיות זמנית או קבועה. המבנה הזמני הוא נייד יותר, ניתן להכניס אותו למקום חדש מדי שנה ולהסירו לחורף חדר שירות... כמו כן יהיה צורך לפרק את כל הציוד בכל פעם ולחפש מקום לאחסן אותו.
מטבחי קיץ פנימיים וחיצוניים בארץ: פרויקטים, תמונות - כל החומרים הללו נותנים סיבה להפשיל שרוולים. בבניין כזה ניתן לארח באופן חופשי תנור רוסי, פלטה או קלחת.
אתה יכול לבחור מגוון רחב של חומרי בניין לפרויקט כזה:
- עץ מסורתי - זה מספיק לקנות קורה עבור מתלים ושלד חוּפָּה מטבח קיץ בארץ (פרויקטים, תמונות של מבנים כאלה לא קשה למצוא);
- עמודים מ לבנה דקורטיבית הם ייראו מוצקים ויאפשרו ליצור קירות ניידים להגנה מפני הרוח, למשל תריסי גלילה;
- מתלים מאבן טבעית נראים יוצאי דופן, במיוחד אם יש הרבה ירק סביב הבניין ויש צמחים מטפסים;
- אלמנטים פתוחים מזויפים הם יקרים, אך ישמחו את העין לאורך זמן.
דוגמאות למבנים סגורים
לְבֵנָהזכוכית ועץ הם החומרים הפופולאריים ביותר לבניית מטבחי קיץ מקורים בארץ. פרויקטים, תמונות של מבנים דומים שיצרו אנשי מקצוע וחובבים עומדים לרשות כולם. לבנים בשילוב עם חלונות פנורמייםשניתן לפתוח לרווחה - פיתרון מעשי ועמיד. מבנה כזה יגן באופן אמין מפני מזג אוויר גרוע. ניתן להפעיל אותו כל השנה.
הערה! אתה יכול להעריך היטב את היתרונות של קוטג 'סגור עם ברביקיו או כיריים בחופשות השנה החדשה. נוף נהדר של גן מכוסה שלג ואש במנגל - מה יכול להיות טוב יותר לערב חג המולד?
מאמר קשור:
ביתנים עם ברביקיו ותנור. הכל על האפשרויות למכשיר הכיריים או המנגל ביתן ותכונות השימוש בפרסום מיוחד של הפורטל שלנו.
בנייני בולי עץ זכו בשיאי ביקוש בעשור האחרון. חדר האוכל הקיצי בסגנון סלאבי, עם כיריים וריהוט תואם, יהווה מקום מועדף למסיבות עם חברים קרובים.
רשימת חומרי הבנייה לפרויקטים כאלה רחבה מאוד: דִיקְט ו לוחות OSB, בטנה, גושי קצף או גושי גז, אבן. תמונות ופרויקטים של מטבחים סגורים בארץ מראים את דמיונם של בעלי מלאכה ביתיים. הם מציעים להשתמש בחומר פסולת מאולתר - מיכלי זכוכית, בקבוקי פלסטיק ואפילו עצים להסקה.
וידאו: רעיונות לצילום למטבחי קיץ
בנייה שלב אחר שלב של מטבח קיץ בארץ במו ידיכם
- הכנת ציור. אתה יכול לעשות את זה בעצמך או לקחת אחד מוכן.
- הכנת האתר. האתר נקי מפסולת וצמחייה, נעשים סימונים.
- סידור הקרן. היסודות לבניין הקיץ חייבים להתאים לפרויקט. למבנה פתוח מספיק לכסות אותו בחול, לחזק אותו ברשת מתכת ולמלא את האתר בבטון בשכבה של 10 סנטימטרים. לפני שופכים את הבסיס, מוצבים עמודי החופה. חדר אוכל סגור עשוי לבנים או אבן דורש סימניה בסיס רצועה רדוד... תחת בניית סרגל או יומן שהם מתקינים בסיס עמודים.
- התקנת המסגרת. לחדר אוכל פתוח או מבנים מסוג מסגרת תידרש התקנת תומכים אנכיים. מיקומם תלוי בפרויקט. העיקר שהעמודים אמינים מספיק ויכולים לעמוד במשקל הגג ועומס הרוח.
- בניית קירות. בגרסאות של חדרי אוכל סגורים, הקירות מונחים מחומרים שונים. ללא ניסיון, עדיף לא להתמודד עם לבנים בעצמך. הנחת עץ ובולי עץ דורשת פחות מיומנויות בנייה, אך יש לה גם מאפיינים משלה. אם הבניין העונתי נקנה כמוצר מוגמר מהיצרן, תוכלו לנסות להרכיב אותו בעצמכם. אפילו אדון טירון ישתלט בקירות המסגרת.
- גג. גג חדר האוכל בקיץ יכול להיות עשוי קרטון גלי, צפחה או אריחים רכים... האפשרות האחרונה עדיפה. גג כזה לא מתחמם כמו גג מתכת ומשקלו פחות מצפחה מסורתית.
- תנור נייח ידרוש בסיס יציב. הבנייה עשויה לבנים עקשן.כדי להימנע מאש בשוגג, החלל סביב המנגל מונח באריחי קרמיקה. בַּרדָס לתנור, עדיף להזמין מהמאסטר. הוא יגיד לך באיזה גובה צריך להתקין את הצינור כדי להשיג מתיחה טובה.
פרויקטי צילום של מטבח קיץ בארץ עם גריל ברביקיו:
- סידור שטח העבודה. כדי שבניין קיץ יהיה נוח, עליו להיות הכל, ממש כמו במטבח אמיתי. תזדקק לכיור ומשטח עבודה נוח לעיבוד מזון, מגירות לאחסון כלים.
- אביזרים ועיצוב חלל. כל מטבח הוא כרטיס ביקור של המארחת. עבור בניין קיץ, כל פנטזיות וניסויים מותרים.
טיפים למטבח עונתי
על מנת שבניין עונתי יהפוך למקום מועדף לעבור לא רק את המארחת, אלא גם את כל בני הבית, חשוב להקפיד על ההמלצות הבאות:
- כאשר קובעים מקום לחדר אוכל בקיץ, חשוב למקומו הרחק מהבית, הקומפוסט ו שירותים בחצר;
- עדיף להתקין את המבנה מתחת לעצים, שייתן צל וכיוון לכיוון צפון, כך שהשמש הבוהקת לא תזרח דרך החלונות;
- בבנייה קלה, משימת שטיפת הכלים תקל מאוד על ידי קטן דוד מים חשמלי;
- רְהִיטִים עדיף לבחור פלסטיק (קל לכבס ולא מושך חרקים);
- רצפות הבניין מכוסות בדרך כלל בלינוליאום או אריחים, דבר שמפשט מאוד את הניקיון.
איזה סוג של בניין מטבח קיץ לבחור?
מטבח עשה זאת בעצמך בארץ שאת דוגמאות הצילום ניתן היה לראות בסקירה זו - סיבה להשראה. לא קשה לבחור לעצמך פורמט כלשהו. מבנה סגור או פתוח עם ברביקיו או קלחת יהווה גם מקום לבישול וגם פינה מועדפת בגן לחברים ובני משפחה. תוכלו לבנות את חדר האוכל בעצמכם או להזמין אומנים מקצועיים. במקרה הראשון, תוכלו לחסוך הרבה, בשני, תוכלו להגיע לתוצאה מובטחת.
וידאו: מטבח קיץ בצורת ביתן עם ברביקיו ומתקני ברביקיו













































