קורות עץ הן הפיתרון הטוב ביותר לבית המיועד למגורי קבע
לאחרונה, הם מעדיפים לבנות בנייני מגורים בחומרים טבעיים. קורות עץ הן הפיתרון הטוב ביותר לבית בכל הנוגע לידידותיות סביבתית. בהקשר זה נבנים ממנו מספר רב של חפצי בנייה בודדים.
תוכן המאמר
נקודות חיוביות ושליליות
מיד לפני שתחליט על בחירת החומר לבניית בית, אתה בהחלט צריך להכיר את היתרונות והחסרונות העיקריים שלו. לאחר היחס בין גורמים חיוביים ושליליים, ניתן להסיק מסקנות מסוימות.
רשימת ההטבות
רשימת התכונות החיוביות נרחבת למדי:
- נָמוּך רמת מוליכות תרמית מאפשר לבנות מבנים חמים בעובי דופן קטן יחסית;
- בשל המקור הטבעי של החומר, נוצר מיקרו אקלים נעים בתוך המבנים המוגמרים במהלך הפעולה;
- האלמנטים קלים לעיבוד, ולכן אין קשיים נוספים במהלך הבנייה;
- הטכנולוגיה של הנחת העץ עצמה היא די פשוטה, שבזכותה מפתחים יכולים לבצע עבודות בעצמם.
כמה חסרונות
אמנם עץ הוא הפיתרון הטוב ביותר לבית, אך יש לו גם חסרונות. העיקרי הוא הצטמקות הבניין. בגלל זה, הגמר הסופי מותר רק זמן מה לאחר הבנייה. בדרך כלל תקופת ההמתנה היא לפחות 6 חודשים.
עץ הוא חומר דליק ורגיש ביולוגית ולכן דורש עיבוד נוסף.ציפוי עם תרכובות מגן מאריך את חיי הבניין.
סוגי החומרים העיקריים
האופציה המשתלמת ביותר נחשבת לקורה קצוות קונבנציונאלית, שיש לה אפילו קצוות זהים בארבעה צדדים. המשטח שלה, ככלל, אינו משייף, ולכן לאחר העבודה נדרש גימור נוסף של מבנים. עם זאת, מומלץ להניח שכבת בידוד תרמי מתחת לחיפוי החזית.
אפשרות מקובלת לחלוטין מנקודת מבט של כלכלה היא קרן צדודית, שהיא מוצר עם גיאומטריה מדויקת ומנעולים מיוחדים בצורת חריצים ורכסים. מכיוון שדפנותיו משייפות לחלוטין, אין צורך להוציא כסף על כך קישוט חזית.
מחירים לרכישת עץ צדודית:
| גודל חתך, ס"מ | המידות הכוללות של החומר, ס"מ | נפח חומרי הגלם בחלק אחד, m³ | מספר החסר, יח '/ מ' | עלות, שפשוף / מ"ק |
|---|---|---|---|---|
| 10x15 | 9.2x14.2 | 0,09 | 11,1 | 7300 |
| 15x15 | 14.2x14.2 | 0,135 | 7,4 | 7300 |
| 15x20 | 14.2x19.2 | 0,18 | 5,5 | 7300 |
| 10x20 | 9.2x19.2 | 0,12 | 8,4 | 7300 |
| 20x20 | 19.2x19.2 | 0,24 | 4,16 | 7300 |
| חיתוך קערות על חומר | ||||
| 10x15 | 9.2x14.2 | 0,09 | 11,1 | 9300 |
| 15x15 | 14.2x14.2 | 0,135 | 7,4 | 9300 |
| 15x20 | 14.2x19.2 | 0,18 | 5,5 | 9300 |
| 10x20 | 9.2x19.2 | 0,12 | 8,4 | 9300 |
| 20x20 | 19.2x19.2 | 0,24 | 4,16 | 9300 |
ניתן לקרוא חומר מתקדם יותר מבחינה טכנולוגית מודבק עץ למינציה, מכיוון שהוא מרמז על הדבקה אורכית של פיסות עץ בודדות (למלות) באמצעות מכונות אוטומטיות. לאחר שהקומפוזיציה המיושמת התקשתה, היצירה עוברת מונחתת ומתוקנת. טכנולוגיית ייצור זו מפחיתה הצטמקות למינימום.
עצה שימושית! לאנשים שמעריכים את הטוהר האקולוגי ואת המושך האסתטי של העץ מומלץ לרכוש מוצרים צדודית לבנייה מכיוון שהם אינם מכילים חומרים נוספים ואינם דורשים גימור.
| פרמטרים ממדים של היצירה, ס"מ | נפח חומרי הגלם בחלק אחד, m³ | מספר החסר, יח '/ מ' | עלות, שפשוף / מ"ק |
|---|---|---|---|
| 10x10 | 0,06 | 16,6 | 6000 |
| 10x15 | 0,09 | 11,1 | 6000 |
| 10x20 | 0,12 | 8,5 | 6000 |
| 15x15 | 0,135 | 7,4 | 6100 |
| 15x20 | 0,18 | 5,5 | 6100 |
| 20x20 | 0,24 | 4,16 | 6100 |
כמה פרויקטים של בתים מבר: מחירים ותמונות
יתר על כן, מוצע לשקול נתונים מסוימים מתיעוד התכנון הסטנדרטי לבניינים בגדלים הפופולריים ביותר. בעיקרון, באמצעות חומר זה, מוקמים חפצים בינוניים. מומלץ לבנות מבנים גדולים של לבנים.
מאמר קשור:
פרויקטים של בתים מבר למגורי קבע. פריסות מעניינות ויתרונות של עץ מודבק ומסומן בפרסום נפרד של הפורטל שלנו.
פרויקטים מעניינים של בתים חד קומתיים מבר עם מחירים
אחת האפשרויות הנפוצות ביותר היא בניין מגורים בגודל 6x8 מ 'עם מידות כאלה, כל הנחות העיקריות יכולות להיות ממוקמות בהצלחה למדי. מכשיר בעליית הגג בקומה העליונה מאפשר לך להרחיב משמעותית את שטח המגורים. למגורי קבע, הממדים די מתאימים.
המבטיחים ביותר במקרה זה הם בתים העשויים עץ פורניר למינציה. הפרויקטים ומחיריהם מגוונים מאוד. אם תרצו, תוכלו לבחור בבניין לא עם גמלון, אלא עם גג mansardלהרחיב את החלל למעלה. עם זאת, עלות אובייקט עולה עם מורכבות מבנה הגג.
האפשרות השנייה הפופולארית ביותר היא בית בגודל 6x6 מ '. בעת הקמתו ניתן לחסוך בחומרים, אך עדיין יש מספיק מקום לשהייה נוחה. אלה יכולים להיות בתים העשויים מעץ פרופילי. גם המחירים והעיצובים שלהם יכולים להשתנות באופן משמעותי.
עם מימדים כאלה, אין זה סביר שניתן יהיה להתנסות בפריסה. לא נותרו כל כך הרבה אפשרויות כמו במקרה של מבנים גדולים. עם זאת, עדיין ניתן להשיג מיקום נוח של המקום.
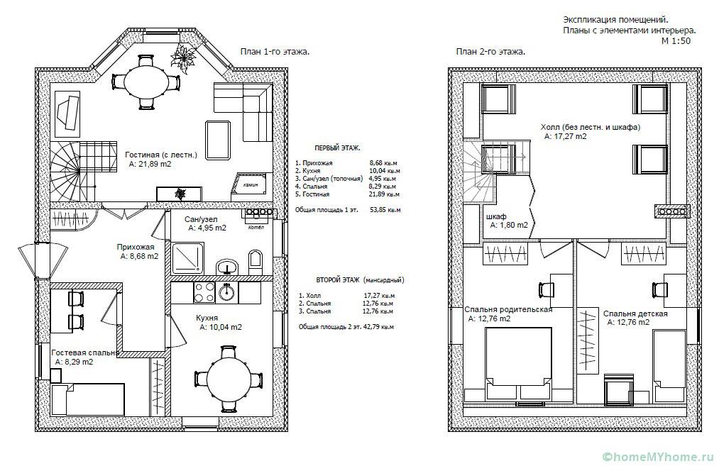
דוגמאות לפריסות של בתי עץ
המחירים המשוערים לבניינים מוגמרים מעץ צדדי מוצגים בטבלה:
| מידות במטרים | שטח מגורים במ"ר | עלות ממוצעת ברובלים |
|---|---|---|
| 6x6 | 50,4 | 500-550 אלף |
| 7x7 | 68,6 | 750-800 אלפים. |
| 6x9 | 75,6 | 800-850 אלפים. |
| 7x9 | 88,2 | 850-900 אלפים. |
| 9x8 | 100,4 | 950-1000 אלפים. |
אנו מציעים לשקול את מחירי הבתים המפוארים העשויים מעץ למינציה מודבק, שעלותם גבוהה מעט יותר מאשר במקרה של מקבילים.
| שֵׁם | טווח טמפרטורות הפעלה | משקל טנק, ק"ג | עלות ממוצעת, שפשוף |
|---|---|---|---|
| TechnoNICOL מס '24 | -5 ° С ... + 80 ° С | 20 | 1240 |
| טכנוניקול מס '27 | -5 מעלות צלזיוס ... + 80 מעלות צלזיוס | 22 | 1300 |
| TechnoNICOL מס '21 | -35 מעלות צלזיוס ... + 110 מעלות צלזיוס | 20 | 1950 |
| רשת MGH-G | -40 מעלות צלזיוס ... + 100 מעלות צלזיוס | 18 | 960 |
| רשת MGH-G | -40 מעלות צלזיוס ... + 100 מעלות צלזיוס | 45 | 2500 |
| AquaMast | -10 מעלות צלזיוס ... + 40 מעלות צלזיוס | 18 | 1160 |
| AquaMast | -10 מעלות צלזיוס ... + 40 מעלות צלזיוס | 10 | 830 |
| AquaMast | -10 מעלות צלזיוס ... + 40 מעלות צלזיוס | 3 | 230 |
תמונות שונות ורישומים בחינם של פרויקט בית מבר עם חלון מפרץ
עם השימוש בעץ התאפשר הקמת חפצים בעלי תצורה מורכבת וממדים מרשימים. לראות תמונות בחינם ציורי פרויקט בית מבר עם חלון מפרץ, למפתחים רבים יש רצון לשחזר אותם ישירות באתר שלהם.
מבנים כאלה נראים מוצקים מאוד באתר. בנוסף מופיעים כמה מטרים רבועים של שטח שמיש. כאשר מקשטים את החלל הפנימי, נפתחים לקוחות פוטנציאליים מצוינים.
בידוד תרמי נוסף של מבנים
במקרה של חישובים שגויים של עובי הקיר, יש לבודד את מבני העץ מבחוץ על ידי הנחת סוג מתאים של בידוד תרמי מתחת לציפוי הפונה. בעת ביצוע העבודה משתמשים בסוגים הבאים של חומרים:
- צמר מינרלי (על בסיס בזלת או פיברגלס);
- קצף פוליסטירן מחולל;
- בידוד פוליאסטר;
- צמר אקולוגי;
- פוליאתילן מוקצף (מחורר).
חָשׁוּב! למרות השפע של חומרי בידוד תרמי בשוק המודרני, מומחים ממליצים לבחור את אותם מוצרים חדירים לאדים. אלה כוללים, למשל, צמר מינרלים.
שיטות בסיסיות לחיבור אלמנטים
הצטרפות העץ מתבצעת עם השאר או בלעדיו. במקרה הראשון, חלק מסוים של האלמנט בולט מעבר לקיר, ואילו בשני הוא לא. בשנים האחרונות האופציה השנייה הפכה פופולארית יותר.
שיטות לשילוב רכיבים עם השאר:
- מנעול חד צדדי כולל יצירת חריץ ניצב בצד העליון;
- מנעול דו צדדי מרמז על היווצרות חתכים מיד מלמטה ומלמעלה;
- מנעול ארבע-צדדי מורכב יותר לייצור, מכיוון שהחריצים מסודרים ישירות מכל הצדדים.
אפשרויות להצטרפות לעץ ללא שאריות:
- מקצה לקצה עם חבישה;
- על קוצי שורש;
- עם מנעול זנב שמיכה;
- לתוך רצפת עץ;
- על מסמרים.
סיכום: עץ הוא הפיתרון הטוב ביותר לבית
עיון במידע שהוצג מבהיר כי קשה לדמיין בנייה פרטנית ללא קורת עץ - הפיתרון הטוב ביותר לבתים המיועדים למגורי קבע. חומרים אחרים אינם יכולים להתאים לעץ מבחינת איכויות בידוד תרמי ועלותם.
וידאו: סרגל אנכי. טכנולוגיה חדשה של בניית דיור מעץ

































