מכונות לעיבוד עץ ביתי לסדנה ביתית: ציוד איכותי ללא עלות נוספת
עם ציוד טוב, תהליכים טכנולוגיים מורכבים הופכים לזמינים. ציוד מיוחד עם כונן חשמלי מפשט מאוד את עיבוד החסר בעץ. אך הרכישה שלה קשורה להשקעות משמעותיות. כדי לפתור בהצלחה בעיה כזו, עליכם ללמוד היטב את החומרים של מאמר זה. כך תוכלו ליצור בעצמכם מכונות לעיבוד עץ פונקציונליות.
תוכן המאמר
- 1 עקרונות של אבזור סדנה ביתית, אמצעי הכנה
- 2 מכונות לעץ לבית המלאכה הביתי ומכשירים מיוחדים: הגדרות בסיסיות, טכנולוגיות ייצור
- 2.1 הכנת מחרטת עץ לסדנה ביתית
- 2.2 איך מכינים מחרטה מעץ ביתי זול במו ידיכם
- 2.3 הכנת חותכי מחרטת עץ מחומרי גרוטאות
- 2.4 רכיבים חשובים למסור עגול נייח במו ידיך
- 2.5 תיאור של מסור עגול זול ממטחנה במו ידיך
- 2.6 יתרונות ותהליך של יצירת נתב עץ הכי פשוט לסדנה הביתית
- 2.7 כדאיות יישום פרויקט מכונות כרסום עשה זאת בעצמך
- 2.8 איך מכינים חותכים משלכם למכונות לעיבוד עץ
- 2.9 שרטוטים והמלצות ליצירת מכונת עובי עשה זאת בעצמך
- 2.10 הכנת פלנר פונקציונאלי ממטוס חשמלי במו ידיך
- 2.11 טכנולוגיית עשה זאת בעצמך ליצירת מכונת השחזת עץ
- 2.12 יצירה נכונה של פלנר לעץ במו ידיך
- 3 מכונות לעיבוד עץ ביתיות איכותיות במו ידיכם: וידאו, חומרים נוספים והמלצות, מסקנות
עקרונות של אבזור סדנה ביתית, אמצעי הכנה
לפני שתמשיך ישירות עם הציוד הטכני, יש להעיר כמה הערות כלליות בחדר המתמחה המתאים:
- נוח כאשר הסדנה ממוקמת בבניין נפרד.זה מרמז על שטח מספיק, ללא דאגות מיותרות, יכולת להצטייד במאוורור ומערכות הנדסיות אחרות.
- אם החדר נמצא לְסַפֵּחַ, או קומת מרתף, עליה להיות מבודדת היטב מאזור המגורים.
- שטח בית המלאכה הסטנדרטי לא צריך להיות פחות מ 6-7 מ"ר. גובה - מספיק למעבר חופשי ולמפלס המרבי של הכלי המונף (מ -2.5 מ 'ויותר).
- מערכות אוורור, חימום, תאורה באיכות גבוהה יועילו כאן. יש לשקול כל מערכת הנדסית בנפרד כדי למנוע עלויות מופרזות במהלך ההפעלה.
- וודא שהספק החשמל מספיק אספקת חשמל ללא הפרעה כל מכונות העץ לסדנה הביתית.
הערה! אם בציוד יש רכיבים אלקטרוניים, מפסקי זרם מיוחדים יהיו שימושיים, וימנעו נזק כתוצאה מפעולות מתח, הארקת מגן. יש לוודא כי פרמטרי הרשת תואמים את המאפיינים של יחידות הכוח (220 וולט, שלב אחד; 380 וולט, שלושה שלבים).
לקבוצת ההמלצות המעשיות הבאה מוסיפים צילומי הסבר.
השימוש במקור כזה יפחית עייפות ויסייע בשמירה על ראייה טובה. רצוי להגדיר מכשיר לד... זה לא מחמם את האזור שמסביב כמו מנורת ליבון קונבנציונאלית. בניגוד לאנלוגי פריקת הגז, קשה לפגוע בו על ידי פגיעה מכנית.
מכונות לעץ לבית המלאכה הביתי ומכשירים מיוחדים: הגדרות בסיסיות, טכנולוגיות ייצור
יתר על כן, סוגים שונים של ציוד נחשבים בפירוט. אבל ראשית, עליך להעיר כמה הערות כלליות חשובות:
- כל מכונה נועדה לבצע קבוצה מוגבלת של פעולות עבודה עם עבודות עבודה בגדלים מסוימים.
- ככלל, ציוד מיוחד יותר נוח לעבודה מאשר מודלים אוניברסליים.
- מכונת עיבוד עץ יהיה קל יותר לעשות זאת בעצמך אם תערוך תחילה רשימה מדויקת של דרישות למאפייניו. כוח מוגזם הוא אופציונלי. ניתן לספק את המומנט הנדרש באמצעות תיבת הילוכים.
- כמו כן, על ידי התקנת מנגנון ההולכה המתאים, מהירות הסיבוב של פיר העבודה משתנה. לעיבוד מדויק יותר, התאמה חלקה של פרמטר זה בטווח רחב היא שימושית.
- כדי להפחית עלויות, ניתן להשתמש במנוע חשמלי של מקדחה עם מארז שבור, ובחלקי עבודה אחרים של ציוד כושל בתכנון.
- את הרכיבים המכניים והאלקטרוניים המורכבים ביותר יהיה צורך לרכוש בנפרד. עלות שכפול טכנולוגיות מסוימות בבית עולה על עלות המוצרים המוגמרים.
- אורך חיי השירות של ציוד מונע חשמלי יגדל אם הוא מוגן מפני עומסים מוגזמים. בפרט, כדאי להצטייד במערכת אוטומטית המנתקת את הכוח כאשר המנוע מתחמם יתר על המידה.
חָשׁוּב! אין להזניח נושאי בטיחות. גלגלות הכונן אפופות. יריעות פלסטיק שקופות מונחות מול כלי העבודה.
לשימוש רציונלי בשטח פנוי, מדפי קיר ותקרה שימושיים, מתלים, ווים ומחזיקים מיוחדים. מיקום ההתקנה המדויק של המתאים אביזרים לנגרות נבחרים תוך התחשבות במוזרויות של תהליכים טכנולוגיים, מיקום מכונות וספסלי עבודה.
מאמר קשור:
מכונות וכלים תוצרת בית לסדנה הביתית. הסקירה שלנו תעזור לך לבחור ולהכין מכונות ומכשירים תוצרת בית לסדנה הביתית שלך, וכן להבין את הטכנולוגיה של ייצורם.
הכנת מחרטת עץ לסדנה ביתית
הפרמטרים הטכניים של המוצרים המתאימים, יחד עם תיאורים, ניתן למצוא באינטרנט.
החלק העיקרי הוא המיטה (1). חלקים אחרים של המוצר מחוברים אליו. זה מספק לא רק את שלמות מסגרת הכוח, אלא גם יציבות טובה על פני השטח. מכונת הנגרות מיועדת לעיבוד עבודות עבודה קלות יחסית, ולכן ניתן לייצר חלק זה מעץ פרקט.
בחלק המרכזי יש תמיכה עם תמיכה לחותך יד (2). במקום זאת, ניתן להתקין בעל קיבוע לקשיח של הכלי. חומר העבודה נקבע בין ראש הראש (3) לבין חלקו האחורי (4). הוא מסתובב עם מנוע חשמלי (6). כדי לשנות את המומנט על הציר בתכנון זה, משתמשים בכונן חגורה וגלגלת (5). הקליפר והזנב נעים אופקית לאורך פיר מיוחד (7) המותקן בתוך המיטה.
חָשׁוּב! ניתן להשתמש בשרטוטים אלה לייצור מכונה עובדת. צריך רק לזכור שכל הממדים כאן הם בסנטימטרים.
פרויקט זה יכול לשמש לייצור מחרטה להעתקת עץ בעשה זאת בעצמך. יש להוסיף אותו רק עם מכשיר מיוחד, המיועד ליצירה עקבית של מוצרים זהים.
כדי לתקן את זה במקום הנכון, אתה צריך לעשות דוכן מיוחד. בדוגמה זו נעשה שימוש בדיקט 10 מ"מ, ממנו נחתך שטח של 480 × 180 מ"מ. ניתן לשנות את הממדים הנתונים תוך התחשבות בפרמטרים האמיתיים מִספָּרַיִם... החורים בדיקט נחתכים כך שברגי ההידוק והכלי יעברו דרכם. לקבלת קיבוע נוקשה לאורך קווי המתאר של הרציף, קוביות עץ קבועות באמצעות ברגים.
עיצוב זה מושך בפשטותו, בזמינות הרכיבים ובעלות סבירה. אך יש לציין כמה חסרונות:
- יהיה עליך להשתמש בשתי ידיים כדי להזיז את החותך. זה הכרחי כדי ליצור כוח מספיק ולמנוע תקילה.
- הרדיוס המינימלי שלאורכו ייווצר כיפוף החלקים מוגבל על ידי קוטר הכלי (חותך).
- כדי לעבד עבודות עבודה מסוגים שונים של עץ, נדרשת התאמה מדויקת של מהירות סיבוב הפיר, ובדוגמה זו אפשרות זו אינה ניתנת.
דוגמה זו מסבירה כי ניתן לשפר גם תכנון נבדק בזמן ומעשי לאחר לימוד מדוקדק של הציוד והתהליך הטכנולוגי.
מחרטת עץ ביתית במו ידיכם: סרטון עם הוראות והערות מאת מחבר הפרויקט
איך מכינים מחרטה מעץ ביתי זול במו ידיכם
עם הערכה הזו מיני מחרטה לא יהיה קשה לעשות עבודות עץ במו ידיך. ניתן לתקן מסגרת זו על בסיס עץ או מתכת. הפרמטרים המדויקים של ראש הראש נבחרים תוך התחשבות במידות ובמושבים של תושבות המנוע. פרמטרי ההספק של המנוע החשמלי מ מכונת כביסה ביתית... לסוג זה של ציוד נגרות, יהיה מספיק כוח בין 250-300 קילוואט אם הוא מועבר לפיר באמצעות תיבת הילוכים (גלגלת).
יש ללמוד את הדוגמה האחרונה ביתר פירוט. על ידי בחירת כלי מתאים עם כונן חשמלי, אתה יכול לקבל את הכוח הנדרש, מהירות סיבוב. הצ'אק הסטנדרטי שימושי להידוק מאובטח ומהיר של החומר. בטכנולוגיה מודרנית מסוג זה ניתנת הגנה מפני התחממות יתר, חדירת אבק למארז. כאן מותקנים מתגים איכותיים, בידוד יעיל. תמונה זו לבדה מספיקה כדי להבין כיצד להכין מחרטה בעצמך.
הכנת חותכי מחרטת עץ מחומרי גרוטאות
קבצים, מסורים, ברגים וכלים אחרים העשויים מפלדת כלים יעשו זאת. קל יותר לעבד עבודות עבודה בצורת ריבוע (בתצוגת החתך). וודא כי אין סדקים או פגמים אחרים המפחיתים חוזק. לקבלת קיבוע קשיח של חותכי דרך, המכונה חייבת להיות מצוידת בתושבת מיוחדת.
רכיבים חשובים למסור עגול נייח במו ידיך
בציוד זה, הטבלה מבצעת את הפונקציות החשובות ביותר, ולכן יש ללמוד את הפרמטרים שלה בתשומת לב מיוחדת. זה מתקין מנוע חשמלי עם מנגנוני נהיגה, אספקת חשמל ואלמנטים במעגל בקרה. זה צריך להיות מתוכנן למשקל הרכיבים והעץ המובנים. אסור לנו לשכוח שבמהלך הפעולה יתעוררו עומסים ותנודות סטטיות ודינמיות.
בעת ציון הפרמטרים של המכונה, יש לקחת בחשבון את הגורמים הבאים:
- עבור ציוד זה, כוחה של יחידת הכוח חייב להיות לפחות 0.85 קילוואט.
- בעת חישוב המבנה יש צורך לבדוק את גובה הקצה הבולט של הדיסק. זה יקבע את עומק החיתוך המרבי.
- מהירות הסיבוב המינימלית של פיר העבודה מוגבלת ל -1.5 אלף סיבובים לדקה. רצוי להגדיל אותו כך שצבע ריק העץ לא ישתנה במהלך ביצוע פעולות העבודה.

מדריך למסור עגול במו ידיך נוצר עם קצה אחיד (1). המתג (2) מותקן במרחק רב מהדיסק המסתובב בכדי להקל על כיבוי המנוע במקרה חירום
תיאור של מסור עגול זול ממטחנה במו ידיך
כמו בדוגמה הקודמת, בעת יצירת מכונה כזו תוכלו לפשט את פתרון הבעיה באמצעות כלי חשמל סטנדרטיים.
הכונן עם דיסק החיתוך מחובר לזרוע התנופה. כדי להקל על המאמצים הפיזיים, מותקן קפיץ או משקל נגד. תנועת כלי מותרת רק בכיוון האנכי לאורך הקשת. עיצוב זה הוא נייד. ניתן להתקין אותו בפנים ובחוץ על בסיס מתאים. במידת הצורך ניתן לפרק את המטחנה. הוא מאובטח באמצעות מחברי בורג על אטם עץ (גומי) משכך.

כדי ליצור מכשיר למסור עגול במו ידיך, תוכל להשתמש בציור זה. מתקנים את הפרויקט תוך התחשבות בגודל הכלי, דרישות אישיות נוספות

כאשר מצויד בלהב מתאים, מכונה זו מתאימה לחיתוך חלקי מתכת. אם היא אמורה לבצע פעולות עבודה עם עומסים כבדים, מומלץ להכין את מסגרת התמיכה ואת שולחן השולחן מאלמנטים מפלדה
מיטת מטחנות עשה זאת בעצמך: ציורים, סרטונים, אלגוריתם לייצור חלקים בודדים והרכבה:
יתרונות ותהליך של יצירת נתב עץ הכי פשוט לסדנה הביתית
ציוד זה משמש לחיתוך חריצים על פי מידות מוגדרות וקידוח מדויק בזוויות שונות. בעזרתו ניתן להסיר במהירות רבע, ליצור שקע לחומר עבודה בעל צורה מסוימת. גם ללא הסבר מפורט, ברור שהזדמנויות כאלה יועילו לבעל בית פרטי. נותר להבין כיצד מכינים מכונת כרסום ביתית לעץ. האם פיתרון כזה יהיה משתלם כלכלית, או שמא משתלם יותר לרכוש ציוד תוצרת המפעל?
ניתן לענות על השאלות שהועלו לאחר מחקר מפורט של המבנים המתאימים.
בחלק המרכזי של השולחן מותקנת יחידת כוח המסובבת את החותך. בעזרת מהדקים ומכשירים אחרים, היצירה מקובעת במצב הרצוי ומועברת לאורך מסלול קבוע מראש. מקום עבודה כזה מצויד במערכת פינוי אבק תפעולית.
כדי לא לכלול שגיאות במהלך יישום הפרויקט, שים לב לפרמטרים האישיים של האלמנטים המבניים:
- הטבלה לביצוע פעולות עבודה נוצרת בתכנון נייח. מידותיו וכושר העומס שלו ייקבעו תוך התחשבות במאפייני הדגימות המעובדות.
- מומחים ממליצים להתקין מתאי בורג בחלקים התחתונים של התומכים. בעזרתם ניתן לקבוע את המיקום האופקי המדויק של המבנה, גם על משטחים לא אחידים.
- את מסגרת הכוח ניתן להרכיב מצינורות פלדה (פרופילים מלבניים). לייצור משטחים מתאים סיבית איכותית ועבה מספיק. גיליון מתכת דק ירטט, מה שיפגע בדיוק הדיוק בעיבוד.
- אם תבחר במנוע בהספק של 500-900 וואט, יכולות החותך יספיקו רק להסרת שכבות דקות, ויצירת שקעים קטנים יחסית.
- בעת התקנת יחידת כוח של 900-1900 W, פעולות מורכבות יותר מותרות. עם זאת, ישנם קשיים מותרים בעיבוד ריקים מעץ פרקט.
- ניתן לצייד מכונות חזקות (מעל 2000 וואט) בכל סוג של חותך. ציוד כזה שייך לרמה המקצועית. הוא מיועד לפעולה רציפה ללא התחממות יתר של המנוע.
- לייצור לוח הרכבה שדרכו המנוע מחובר לראש השולחן, ניתן להשתמש ביריעת פיברגלס, מתכת.
- כדי להבטיח ראות טובה באזור העבודה, מותקן תאורה אחורית מעל השולחן.

בעזרת תחתית נוספת העשויה מדיקט עבה (סיבית, סיבית) וגלגל תנופה, הם מפחיתים את התנודות, מגבירים את דיוק עיבוד החומר.
הטבלה הבאה מספקת מידע כמה עולה נתב עץ ידני בשוק המקומי.
כדאיות יישום פרויקט מכונות כרסום עשה זאת בעצמך
השימוש בשליטה מתוכנתת מאפשר ליצור סדרות גדולות של חלקים בדיוק גבוה, לבצע עיבוד ייחודי וזהיר במיוחד. כדי להתחיל תהליך טכנולוגי חדש - פשוט טען תוכנית חדשה ולחץ על כפתור "התחל". משימה פשוטה ומורכבת תבוצע על ידי מכונת כרסום העץ באופן אוטומטי, ללא התערבות ושליטה מצד המשתמש. טכניקה זו מבטלת שגיאות מפעיל ומבטיחה את האיכות הגבוהה ביותר.
היתרונות של סוג זה של ציוד ברורים. נותר לראות האם ניתן ליצור מכונת עיבוד עץ CNC במו ידיך. תכונות של סוג זה של ציוד מצוינות להלן:
- נצטרך לספק את היכולת להזיז את החותך אופקית לכל הכיוונים. לשם כך תצטרך לא רק את העיצוב המתאים של התושבות, אלא גם מנועים חשמליים נוספים.
- מיקום מדויק של הכלי מסופק באמצעות חיישנים, מנועי צעד.
- תזדקק לתוכנה שתשלוט בתנועת החותך, תבצע פונקציות בקרה.

כדי לייצר ציוד כזה נדרש ידע טוב ומיומנויות מעשיות בתחום האלקטרוניקה, מכניקה, עיבוד מתכות ותחומים אחרים.
חָשׁוּב! אפילו עם תיאור מפורט ושרטוטים, יהיה קשה מאוד להכין במו ידיך מכונת כרסום לעץ.
איך מכינים חותכים משלכם למכונות לעיבוד עץ
כדי ליצור מוצרים שקטים, תזדקק לחסרים עשויים חזקים, עמידים בפני טמפרטורות גבוהות ופלדת כלי מתח מכנית חזקה. מקדחות פגועות, אביזרי, מוטות יעשו. ניתן ליצור את הצורה הנדרשת באמצעות דיסק יהלום המותקן במטחנה. הקצה מחודד בזווית של 7 עד 10 מעלות. חלק עובד מדי מדי יתדרדר במהירות, גם בעת עיבוד עץ רך.
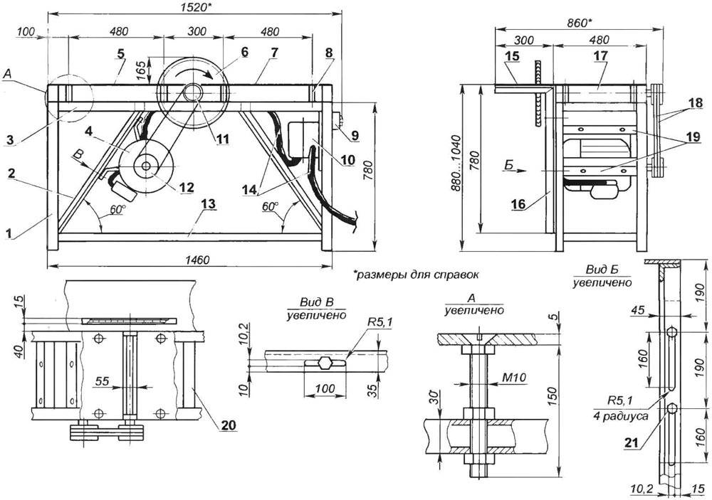
שרטוטים והמלצות ליצירת מכונת עובי עשה זאת בעצמך
רפרודוקציה איכותית של סוג זה של עיבוד דורשת מאמצים משמעותיים. לכן, מומלץ להשתמש במנוע חשמלי תלת פאזי בהספק של 5 קילוואט ומעלה במהירות רוטור מקסימלית של 4.5 אלף סל"ד.
הפיר (1) עם סכין אחד או יותר מסובב על ידי מנוע חשמלי (4), שתי גלגלות וחגורה. לצורך לחיצה והזזה של החומר, מותקנים כאן גלילים (2, 3) וכונן ידני עם מנגנון שרשרת. המבנה מורכב על מסגרת מוצקה העשויה מפינות פלדה.
אם ניקח בחשבון העדפות אישיות, לא קשה להכין רישומי מתכנן במו ידיך. לתיקון המאפיינים הטכניים, נפח העבודה העתידי, פרמטרי החסר וגודל החדר נלקחים בחשבון.
הכנת פלנר פונקציונאלי ממטוס חשמלי במו ידיך
תוכלו ליצור במהירות ובזול מכונה המבוססת על כלי מונע חשמלי סטנדרטי.
התמונה מראה שכלי החשמל מקובע מעל לחומר העבודה במסגרת מיוחדת. ספק את היכולת להזיז אותו בכיווני האורך והרוחב תוך שמירה קפדנית על הזווית ביניהם 90 °. מטוס מודרני מצויד בשקע מיוחד לחיבור שואב אבק. לכן, לא יהיו בעיות בסילוק הפסולת.
טכנולוגיית עשה זאת בעצמך ליצירת מכונת השחזת עץ
ציוד זה ממלא את תפקידיו באמצעות פירים קשיחים ולהבים גמישים עם שוחק המונח על פני השטח, מברשות וכלים מיוחדים אחרים.
לייצור מכשירי חשמל ביתיים, מומלץ לבחור פשוט יחסית עיצוב חגורת הליכה. תוכלו ליצור אותו בעצמכם לאחר קביעת האורך הנדרש, תוך התחשבות במיקום המדויק של גלילי התמיכה. האלגוריתם הבא מוחל:
- רוחב הקלטת מוגדר בין 15 ל -25 ס"מ.
- רצועות נחתכות מנייר זכוכית מתאים.
- הם מודבקים לבסיס גמיש העשוי מחומר צפוף, בקצה התחתון, ללא תפרים גדולים.
- מונע החלקה של החגורה על ידי הגדלת קוטר גלילי התמיכה בחלק המרכזי בכמה מילימטרים. התקנת שכבת גומי עליהם שימושית גם כן.
מאמר קשור:
מכונת השחזה לעץ. אילו סוגי מכונות יש, לאילו מטרות הן מיועדות וכיצד לבחור את הכלי הטוב ביותר? קרא על כך ועוד הרבה בחומר שלנו.
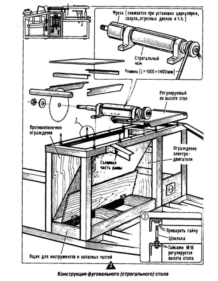
יצירה נכונה של פלנר לעץ במו ידיך
שימו לב לפרטים הבאים של עיצוב זה:
- מטוסי הדרכה מיוחדים מונעים פיזור פסולת, מפשטים את איסוף הנסורת.
- התאמות גובה השולחן מאפשרות לך לכוונן את מצב עיבוד החומר.
- המגירה המובנית שימושית לאחסון חלפים, כלי החלפה.
- במקום חותך, אתה יכול להתקין מסור עגול, דיסק חתוך, מקדחה. יצירת מפרק כזה במו ידיכם תעזור לצייד את הסדנה בציוד רב תכליתי ללא עלות נוספת.
מכונות לעיבוד עץ ביתיות איכותיות במו ידיכם: וידאו, חומרים נוספים והמלצות, מסקנות
המידע הנתון מעיד באופן משכנע כי ניתן לפתור בעצמנו בעיות מעשיות רבות במהלך הצטיידות בסדנה אישית. השימוש בפינות, מחברים ומוצרי מתכת מוגמרים אחרים מפשט את יישום הפרויקטים. במקרים מסוימים מותר להתקין כלי חשמל סטנדרטי שיבצע פונקציות בסיסיות. אך למסקנות מדויקות, בכל מקרה, ניתוח השוואתי עם ציוד דומה המוצג ברשת הקמעונאית מועיל.
יצירת מכונות עיבוד עץ שונות לסדנה ביתית מתוארת בסרטונים הבאים.
מחרטת עץ:
מסור עגול קומפקטי:
מכונת כרסום ועיבוי אוניברסלית:
ציוד שחיקה:
פלנר זול:






















































