רעיונות שהוכחו בפועל, או כיצד להכין מטחנה במו ידיך על פי רישומי ממדים
כלי ביתי הוא דבר הכרחי. אומן בית לא יכול להסתדר בלי מקדחה, מטחנה, מברג ומכשירים רבים אחרים הנחוצים לתיקון ובנייה. אך לא לכולם יש אפשרות לקנות בלי סוף מנגנונים אם הם נדרשים רק לעבודה זמנית או דחופה. יש הרבה מידע ברשת על מוצרים תוצרת בית שניתן להכין מחומר גרוטאות. כיום מערכת המערכת homebase.decorexpro.com/iw/ הכינה עבורכם את כל המידע הכי שימושי כיצד להכין מטחנה במו ידיכם. רישומי ממדים, אפשרויות לשימוש במנועים שונים ועצות מעשיות של אנשי מקצוע בחומר שלנו.
תוכן המאמר
- 1 מה זה מטחנה ובשביל מה זה מתאים
- 2 תרשים סכמטי של עיצוב המטחנות ועקרון פעולתו
- 3 דוגמה למנגנון מחושב היטב הוא מטחנה של צ'פאי
- 4 המלצות וידאו ותמונות להכנת מטחנת עשה זאת בעצמך בבית
- 4.1 מה להכין כונן למטחנה
- 4.2 האם כדאי להכין מטחנה ביתית עם מנוע מכונת כביסה
- 4.3 המלצות שלב אחר שלב כיצד להכין מטחנה ממקדחה
- 4.4 מטחנה עשה זאת בעצמך ממטחנה: רישומים וחרירים מוכנים
- 4.5 איך מכינים מטחנה ממטחנה במו ידיכם: הוראות וידאו
- 4.6 איך מכינים מטחנה במו ידיכם: רישומים עם ממדים של מחברים שונים
- 4.7 כיצד להדביק במו ידיך סרט למטחנה ודרישות מיוחדות לכך
- 4.8 איך ומה להכין גלילי עשה זאת בעצמך למטחנה
- 4.9 איך מכינים גלגלת למטחנה במו ידיכם: המלצות וידאו
- 4.10 שולחן סיבובי למטחנה
- 5 מחירי מטחנות ביתיות ומקצועיות
מה זה מטחנה ובשביל מה זה מיועד
המילה "מטחנה" היא ממוצא אנגלי והיא ממש קוראת כמו מטחנה. במונחים טכניים, מונח זה משמש להתייחס למכשיר השחזה. אז אפשר פשוט לקרוא ליחידה הזו מטחנה, אבל אז יהיה בלבול עם מטחנות ידניות שיש להן מכשיר קצת אחר. מטחנה היא יחידה נייחת עם כונן חשמלי.
לשם מה מטחנה משמשת? קודם כל, זהו מנגנון לחידוד כלי חיתוך ביתיים.עם מיומנות מסוימת, אתה יכול לחדד בצורה מושלמת סכינים למטבח או מספריים, חותכי עץ. בנוסף, בעזרת מכונה נייחת אומנים טוחנים חלקי עץ, חלקי אבן ומתכת. מטחנה תסייע ביישור קצה הזכוכית, הסיבית או ה- MDF.
מכונות מקצועיות אינן זולות - מ -30,000 רובל, ולכן השאלה כיצד להכין מטחנה ביתית במו ידיכם נדונה בחום בפורומים רבים.
תרשים סכמטי של עיצוב המטחנות ועקרון פעולתו
כפי שכבר אמרנו, עיצוב המטחנה דומה למכשיר פשוט של מטחנה ידנית. תנועת חגורת השיוף מתבצעת באמצעות גלילים, והם מסובבים על ידי מנוע חשמלי. כדי לגרום לחגורה להימתח מבלי לרדת, קיים מנגנון מתיחה שמניע את אחת הגלילים. ההבדל מיחידה ידנית הוא רק בנוכחות מכשיר שמתקן את החלק. זהו שולחן עם מנגנון מסתובב ומנעולים מאובטחים. ניתן לסובב את השולחן כדי להתמודד עם חלקים מצדדים שונים.
כדי להבטיח אמצעי בטיחות בזמן העבודה עם מנגנון הסיבוב, המטחנה מצוידת במסך אקרילי.
כל המנגנון מחובר למכונה האוניברסלית באמצעות מחברים אמינים. דגמים מתוצרת המפעל הם ללא ספק חזקים למדי ונותנים את הרושם שהם קלים לתפעול. אבל אנשי DIY מתלוננים על חוסר האמינות של מחברים סטנדרטיים ואורך הקלטת המוגזם, הדורש מנוע בעל הספק גבוה. לכן, לא רק בגלל העלות הגבוהה, אלא גם מסיבות מעשיות גרידא, רבים מחליטים להכין מטחנת חגורה במו ידיהם. עבודה זו לא כל כך קשה כפי שהיא נראית במבט ראשון, ואתה יכול גם להשתמש בחלקי חילוף משומשים ממנגנונים אחרים.
דוגמה למנגנון מחושב היטב הוא מטחנה של צ'פאי
מכונות צ'פאבסקי מסוגלות לעבד עץ, מתכת, פלסטיק, אבן. הם מוזמנים על ידי אנשים הזקוקים לשימוש מתמיד בכלי זה ובכוונון המיוחד שלו. מטחנות כאלה הן דוגמה למכשירים תוצרת בית עם ביצועים גבוהים. הנה סקירה מהירה של מודל אחד כזה:
מטחנת נוף צ'פאי
המלצות וידאו ותמונות להכנת מטחנת עשה זאת בעצמך בבית
המכשיר עבר יותר משדרוג אחד, ועכשיו ישנם "שיבוטים" רבים. לאדם שלפחות בקיא במכניקה, אפשר לחזור על אסיפה כזו עם סבלנות והתמדה. בואו נסתכל מקרוב על פרטי התהליך.
מה להכין כונן למטחנה
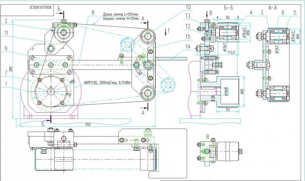
הכונן הוא החלק החשוב ביותר בכל מכונה. בחר את המנוע המתאים למכונה. המטחנה דורשת מנוע של אחת וחצי עד שלושת אלפים סל"ד בנפח 0.75 קילוואט.
ביצועי המכשיר תלויים בכוח המנוע. זה מאוד נוח אם יש אפשרות לכוונון ידני של הכונן לפיתרון בעיות שונות. כשמתחילים לייצר מטחנה פשוטה במו ידיכם, חיטטו באשפה במוסך או בסככה: כנראה יש מנועים מתאימים מיחידות ששירתו את זמנם.
האם כדאי להכין מטחנה ביתית עם מנוע מכונת כביסה
נתחיל מהנושא השנוי במחלוקת של ייצור מטחנה עשה זאת בעצמך על בסיס מנוע ממכונת כביסה. זה שנוי במחלוקת מסיבה אחת פשוטה: במהלך הפעולה נוצרים על המכשיר הרבה אבק ושבבים, חלקיקי צבע ופסולת אחרת. הם נסתמים בחורי המנוע ממכונת הכביסה, והמבנה נכשל במהירות. אבל, עם זאת, עבור כמה בעלי מלאכה, יחידות כאלה עובדות בהצלחה. דוגמה למכשיר כזה בסרטון זה:
המלצות שלב אחר שלב כיצד להכין מטחנה ממקדחה
מקדחה היא כלי חובה בכל בית. לעיתים קרובות משהו נשבר בו, מארז או עוגן, או אולי פשוט יוצא דגם חדש, עוצמתי ונוח יותר, כך הישן אוסף אבק איפשהו בארגז במוסך.
כיצד לעשות זאת בפועל - בואו ננתח את התהליך בפירוט בהוראות הצילום והווידאו:
מטחנה עשה זאת בעצמך ממטחנה: רישומים וחרירים מוכנים
מטחנת זווית, או, באופן נפוץ, מטחנה, היא בסיס כמעט מוכן ל- LSM. על בסיסה, מכונה מורכבת על פי אותו אלגוריתם כמו המכשיר הנ"ל ממקדחה. התוכנית היא כדלקמן:
התוצאה היא מטחנת מיני DIY שתחדד סכינים ומספריים. יש אפשרות לא להתחיל עם מוצרים תוצרת בית, אלא לרכוש זרבובית מפעל. הוא מחובר למטחנה בעזרת סוגר. מציאת מכשיר כזה איננה קלה, אך בעידן זה של סחר באינטרנט, דבר אינו אפשרי. גאדג'ט כזה נוח מכיוון שניתן להשתמש במטחנת עבודה מבלי להפר באופן בסיסי את העיצוב של מכשיר עובד.
איך מכינים מטחנה ממטחנה במו ידיכם: הוראות וידאו
גרסה קלה יותר לשימוש של LSHM ביתי היא מטחנה קונבנציונאלית. כמעט כל שעליך לעשות הוא לתקן את המכשיר לספסל עבודה ולהקים מערכת הפעלה וכיבוי. עוד על כך בסרטון.
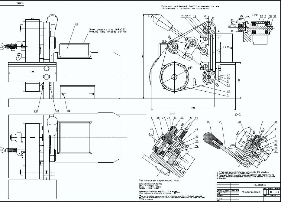
איך מכינים מטחנה במו ידיכם: רישומים עם ממדים של מחברים שונים
כל מאסטר מביא משהו משלו לעיצוב, לכן לפני שתתחיל להכין במחד ידיך מחדד ממטחנה, עיין באפשרויות האפשריות. הנה כמה ציורים למשל:
כיצד להדביק במו ידיך סרט למטחנה ודרישות מיוחדות לכך
בעת פיתוח מטחנה ביתית במו ידיך, עדיף לספק שימוש בקלטת אמרי בגודל סטנדרטי. הגדלים הסטנדרטיים הם באורכים 1830, 1600, 1230, 915 ו -610 מ"מ ורוחב של 100 ו -50 מ"מ. אז אתה לא צריך לחשוב על איך להכין קלטת למטחנה במו ידיך. קלטת, תוצרת בית או תוצרת בית, חייבת לעמוד בדרישות הבאות:
- בסיס בד אלסטי;
- יכולת גבוהה לעמוד במהירויות זוויתיות;
- עמיד בפני חבטות ושריטות;
- האפשרות להתארך מבלי לשבור את השלמות ב 10-15%;
- חימום מינימלי במהלך פעולה לטווח ארוך.
עֵצָה! אל תשתמש בקלטות שאורכן עולה על 1230 מ"מ עבור הכלי הביתי שלך, עבורן תצטרך להגדיל את ממדי המבנה, והדבר מציב דרישות נוספות למיקומו.

כשאתה מכין את הקלטת בעצמך, נסה לא ליצור יותר מתפר אחד. כל התפרים נמתחים במהלך תהליך השיוף, והקלטת נחלשת
כיצד להדביק את הקלטת בבית:
- גזור רצועה באורך והרוחב הרצויים מגליון האמריז. חותכים את שולי הסרט באלכסון.
- חבר את הקצוות והדבק אותם מראש על הצד השוחק בעזרת נייר דבק.
- תקנו את החתך בכמה טיפות דבק סופר.
- מרחו דבק על נקודת החיתוך ופיסת סרט משי, הצמידו את המשטחים זה לזה.
- עוטפים את אזור ההדבקה בנייר ולוחצים אותו למשך הלילה.
איך ומה להכין גלילי עשה זאת בעצמך למטחנה
הכלל הראשון הוא שהגלילים לא צריכים להיות כבדים מדי, אחרת המנוע לא יוכל לארכב מיד את החלקים הכבדים, ויבוא טמבל בלתי נמנע, שעלול לפגוע בחגורה. מסיבה זו, לא מומלץ לטחון גלילי פלדה כבדים. במקרה הטוב, גלגלת הפלדה צריכה להיות חלולה ובשביל זה המסובב יגבה ממך כמעט פי שניים. דרך טובה החוצה היא להשתמש בדוראלומין: הוא קל וגם קשה מספיק כדי לבצע את המשימה העומדת על הפרק. כדי למנוע מהקלטת לקפוץ מהרולר, עליך לבצע עליו חריץ קצה.
חָשׁוּב! משטח הגלילים צריך להיות מחוספס בטווח של 1.25-2.5 רא. אם המחוונים גבוהים יותר, הקלטת תישחק במהירות. על גלילים חלקים, נייר הזכוכית יסתובב.
איך מכינים גלגלת למטחנה במו ידיכם: המלצות וידאו
גלגלת למכונת רצועות יכולה להיות עשויה מגלגל אופנוע, דיקט רגיל, עץ או חומר זמין אחר. הנה דוגמה קלה להכנה לחלק דומה:
שולחן סיבובי למטחנה
ללא שולחן, המטחנה לא תוכל לעבד חלקים מורכבים. מנגנון המסתובב עם אפשרות תיקון החלק מציע יתרונות רבים ומאפשר עיבוד מדויק. מכשיר זה עשוי דוראלומין. סוגר מחובר אליו כך שהשולחן יכול להסתובב אופקית. עובי יריעת הדוראלומין הוא לפחות 1.5 ס"מ. יריעה דקה עשויה שלא לעמוד בעומס.
מחירי מטחנות ביתיות ומקצועיות
אם אין לכם הזדמנות והשראה לעבוד על מוצר תוצרת בית, תוכלו לקנות מטחנת חגורה באינטרנט או בחנות כלים בעירכם. ניתחנו את הדגמים הפופולריים ביותר של מטחנות ביתיות ומקצועיות ומזמינים אתכם להכיר את המחירים שלהם:
אם רכשתם מטחנה מקצועית או ביתית, שתפו את ההתרשמות שלכם מהעבודה עם המכשיר בתגובות. אנו נהיה אסירי תודה אם תשתף את החוויה שלך בייצור מכשיר תוצרת בית.




















































