שירותים כפריים עשה זאת בעצמך: אנו בונים באמצעות תמונות וציורים מחומרים שונים
נושא הפרסום של היום הוא שירותים כפריים עשה זאת בעצמך. תמונות וציורים יאפשרו לכם להבין נכון את מראה המבנה וגודלו. אנשים רבים חושבים שהתקנת חדר אמבטיה חיצוני היא די פשוטה. עם זאת, יש צורך להנחות על ידי כמה עקרונות ודרישות, שעורכי homebase.decorexpro.com/iw/ ידונו בהם היום.
תוכן המאמר
הדרישות העיקריות למיקום האסלה הכפרית
מבלי לקחת בחשבון כמה מהניואנסים, קשה לדמיין איזה סוג של עיצוב יתגלה כתוצאה מכך. על הבעלים להבין כי יש לעמוד בדרישות הקיימות. ראשית, הוא מאופיין בבטיחות, ושנית, לא תפר דבר בעת הבנייה.
- הדבר הראשון שיש לעשות הוא לוודא שהבניין לא יפריע לשכנים. מסכים, איש לא ישמח אם האסלה תפיח ריח לא נעים מתחת לחלונות או תכסה את הצמחייה בצל. מסכים עם אנשים, אחרת קיים סיכון גדול שתצטרך להעביר את המבנה למקום אחר.
- עיין בהנחיות למיקום האסלה. חשוב שהאקולוגיה תכובד באתר. חל איסור להתקין מבנים כאלה באזור גופי מים ואדמה פורייה.אין זה מקובל להתקין את המבנה לצד בארות ומשאבי טבע אחרים.
- צור פרויקט שיספק יכולת פינוי פסולת באמצעות מכונת ביוב. בהתאם לכך, האסלה צריכה להיות ממוקמת בסמוך לכניסה לחצר. כדי למנוע מפסולת מפורקת לעזוב את בור הספיגה, עדיף להשתמש בבורות ספיגה.
- דגש על מעבר מי תהום. אם מקורות כאלה דולפים לצד האסלה העתידית, לא ניתן לבנות את המבנה. עם הזמן זה יתחיל להתפורר. לשירותים כפריים מומלץ לבחור בסיס אטום.
- שירותים חיצוניים צריכים להיות ממוקמים במרחק של לפחות 12 מ 'מבנייני מגורים.
הדרישות הנ"ל מאפשרות להימנע מרוב הבעיות העלולות להופיע במהלך הפעולה.
צפיות שירותים בארץ, אותם תוכלו לשים במו ידיכם: אפשרויות עם תמונה
ישנן אפשרויות עיצוב רבות השונות במראה, כמו גם בחומר המשמש לבנייה. ביתנים מסווגים גם לפי סוג בנייה. יש להדגיש מספר דוגמאות פופולריות.
חדר תברואתי סטנדרטי
שירותים רגילים עם חור פסולת. הוא אינו מספק מערכות מורכבות כלשהן. בריכת שחיה נחשבת לתכונה חובה של בית כזה. הם חופרים אותו במו ידיהם או מתקינים מתחם בור ספיגה עם משאבה.
ניתן להניח מיכל מים על השירותים הללו. מאגר זה נועד לשטוף פסולת בשירותים.
שירותים נגד תגובה ושירותים אבקתיים: תכונות
שירותים נגד תגובה נחשבים לעיצוב יקר למדי. מרכיביה החובה כוללים בריכת מים לבטון. התכונה העיקרית של שירותים כאלה היא ארגון נכון של אוורור. אפשרות זו מוגדרת כמנותקת או מחוברת לאופציית הבית.
שירותים אבקתיים הם מושב אסלה מעץ עם מכסה, מעוצב כמבנה קטן. נסורת עבה משמשת כמנגנון שטיפה, המשמש לאבק פסולת ביולוגית. המכולה עם החומר מותקנת ליד האסלה. בהיעדר נסורת, אבק הפסולת מתבצע באפר עץ.
חדר תברואתי כימי
שירותים כפריים יכולים לעבוד עם הרכב כימי. באמצעות נוסחה מיוחדת, הכימיקלים מגיבים עם פסולת ביולוגית לאחר כל ביקור בשירותים. לפיכך, הריח הלא נעים נעלם במהירות. החיידקים מטפלים באופן פעיל בחיידקים, ומפחיתים את רמת הפסולת המוצקה. כתוצאה מכך נותר רק נוזל שנוח לשאוב.
בניית שירותים כימיים עשויה שלא לדרוש בור בור ספיגה גדול. לפעמים מספיק להשתמש במאגר נייח.
ארון יבש כבול למגורי קיץ
בעת סידור שירותים כפריים יבשים, אנשים רבים מעדיפים להשתמש במערכת פינוי פסולת כבול. מספר שבועות לאחר העיבוד כל הפסולת הופכת לדשן מצוין לגינה ולגן הירק.
שירותים כאלה "נשטפים" אך ורק בכבול יבש. עם זאת, התענוג הזה לא זול.
מאמר קשור:
שירותים כבול למגורי קיץ: מה עדיף? סקירה של היתרונות והחסרונות, כמו גם יצרנים פופולריים ומחירי ארונות כבול בפרסום מיוחד של הפורטל שלנו.
שירותים עם מקלחת לבקתות קיץ: בנייה משולבת
האפשרות הרלוונטית ביותר היא חדר אמבטיה משולב.זה נוח לבצע את כל הליכי ההיגיינה בו זמנית. הבניין כולו מורכב משני חדרים באותו גודל. ניתן להתאים דוד מים. לעתים קרובות יותר, מותקן מיכל מים על גג התא.
מאמר קשור:
שירותים למתן במו ידיכם. הוראות שלב אחר שלב לבניית אסלה (צריף, בית ציפור), רישומים מוכנים וכמה מניואנסים של הסידור בחומר מיוחד.
כיצד לבחור שירותים לשירותים כפריים: איזה יותר טוב
ישנם סוגים רבים של שירותים חיצוניים. יש להם משקלים, גדלים וחומרי ייצור שונים. האפשרויות הנפוצות ביותר הן:
- חרסינה וקרמיקה... ישנם דגמים מהסוג הנייח, ויש כאלה המיועדים לכריעה;
- מושבי אסלה מעץ... בדרך כלל אלה מיוצרים בצורת מדרגת עץ עם חור. הוא יכול להכיל גם מושב לשירותים נייחים;
- מגולוון... לא תמיד מקרים כאלה נוחים. הם קרים מאוד בחורף. לייצור נדרשים צינור בגודל מתאים ומושב ביתי;
- אסלה... עיצוב זה הומצא מזמן. כדי להכין אותו, עליך לחתוך חור בכרית הכיסא, או להסיר אותו לחלוטין, ולהחליף אותו במושב רך לשירותים רגילים.
האופציות הנרכשות נוחות ונוחות יותר. עם זאת, אם אינך צריך להשתמש במתקני השירותים ברחוב למגורי קיץ לעיתים קרובות מדי, שיטה תקציבית תהיה גם אידיאלית.
שירותים כפריים עם בור מים ללא ריח: תכונות בנייה
קל ליצור תנאים נוחים בשירותים ברחוב בשטח של בית פרטי. העיקר לעקוב אחר אלגוריתם שלב אחר שלב לכל שלב בבנייה.
מכשיר סספול עבור שירותים כפריים צעד אחר צעד במו ידיך
עדיף לצייד בריכת מים לשירותים בארץ במו ידיך באמצעות תכנית מוכנה. אתה יכול להדפיס אותו או לחשוב על זה בעצמך. עם זאת, ישנן גם וריאציות פשוטות של ההסדר.
הכנת הבור
יש צורך בבניית בור מים בגודל מספיק: כ-12-18 מ"ר. לאחר שהבנתם את המקום, עקבו אחר ההוראות.
נותר להוסיף עוד כמה חצץ על גבי כרית החול, ואז לשפוך את כל זה עם שכבת בטון של 15 ס"מ ולהשאיר למשך 10 ימים להתקשות.
הֶסדֵר בריכת שחיה בארץ לשירותים
בעבר שימשו לבנים לסידור קירות הבור. כיום מיכלי ספיגה מפלסטיק הם הרלוונטיים ביותר לאפשרויות שונות לשירותים בארץ.
נותר רק לבחור את הגודל המתאים (אם לא הסתמכו עליו בעת חפירת הבור) ולסדר את הניקוז.
כיצד להסיר ריחות מבור שירותים
כדי שבילוי בחוץ לא יתקלקל על ידי ריחות לא נעימים שמגיעים מהשירותים, יהיה עליכם לארגן את חיסולם. זה נעשה בדרכים הבאות:
- על ידי לוקליזציה בתוך נפח מיכל הפסולת;
- ארגון שירותים מסוג יבש בארץ ללא בור מים.
לשיטה הראשונה משתמשים לרוב בכימיקלים מיוחדים, כגון רואטק K-47, ד"ר רוביק 109, BIOFORCE ספיגה 250.
כללי האוורור
הוצאת אוויר מבור הספיגה של שירותים לגינה DIY עושה גם השפעה על הרס הריחות המתמשכים. אם המערכת מבוצעת כהלכה, תרכובות גזיות יתאדו מיד. אנו מציעים ללמוד את הטיפים והטריקים המוצגים בסרטון.
איך לבנות אסלה בארץ במו ידיך: הוראות צילום שלב אחר שלב
לאחר שהמקום מסודר, ממוקם בור מים, תוכלו להתחיל לעצב את התא עצמו.
איך בונים שירותים כפריים מסוגים שונים של חומרי בניין: המלצות כלליות
בבניית שירותים כפריים תוכלו להשתמש במגוון חומרי גלם, החל מעץ ועד קוביות בטון. אנו מביאים לידיעתך כמה סוגים של מבנים.
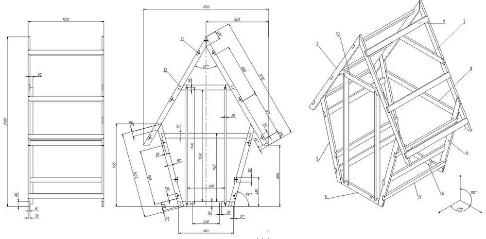
שירותים מעץ למגורי קיץ במו ידיך עם ציורים
אנשים רבים לא מבינים עד כמה העיצובים של מיון רחובות מעץ יכולים להיות מעניינים. בעזרת שרטוטים של שירותים והגדלים שנקבעו עליהם, קל ליישם את כל הדגמים בארץ במו ידיכם.
לכל גרסה של האסלה הכפרית, הציורים והממדים יהיו שונים.
איך מכינים שירותים בארץ במו ידיכם מלבנים: אפשרויות מעניינות
שלבי הבנייה במהלך בניית שירותים לבנים אינם נבדלים זה מזה כלל. אפשרות זו נראית עשירה וקל ליישום. כתוצאה מכך הקירות אינם דורשים גימור נוסף. שקול כמה סוגים של שירותים כפריים בעבודת יד בתצלום, אשר יכולים להיות שימושיים לסידור.
שירותים חיצוניים DIY מגושי בטון: וידאו
ביתן בקוטג 'קיץ יכול גם להיות בנוי מבטון או גושי בטון מוגזים... הכי אופטימלי ליצור מבנים משולבים מחומר כזה: שירותים כפריים עם מקלחת. בסרטון תוכלו לראות כיצד יש לסדר את המחיצות לאופציה המוצעת.
קוראים יקרים, אם יש לכם שאלות בנושא או שמשהו לא מסתדר במהלך הבנייה, דאגו לשאול. אל תשכח לדרג את הפרסום ולשתף את דעתך האישית.















































