ביתן עם ברביקיו: פרויקטים, תמונות, הרעיונות הטובים ביותר
לאזור הפרברי יש תכונות חובה משלו, שבלעדיה קשה לדמיין בילוי בחיק הטבע. בית מרחץ עם חדר אדים, גן נעים וכמובן ביתן עם ברביקיו. פרויקטים, תמונות של מבנים דומים ניתן למצוא במקורות זמינים. כיצד לבחור ציור, היכן למקם את הביתן, ממה לבנות אותו - בחומר זה.
תוכן המאמר
אפשרויות עיצוב, חומרים ותכונות עיצוב
לפני שתתחיל בבנייה, עליך ללמוד את האפשרויות האפשריות עבור ביתנים, לבחור מבנה אידיאלי למיקום האתר.
בניינים כאלה יכולים להיות משלושה סוגים:
- לִפְתוֹחַ;
- סָגוּר;
- חצי פתוח.
לביתן הפתוח אין קירות. בעיקרו של דבר, זהו חוּפָּה, המשמש רק בעונה החמה.
ניתן להשתמש במבנים סגורים בכל ימות השנה. הם איתנים ומוצבים, כמו שאומרים, במשך מאות שנים. בכזה ביתן אתה יכול לאזור את החלל ולהפריד בין פינת האוכל למטבח.
המבנה הפתוח למחצה הוא סוג של פשרה. לא חם בקיץ בעיצוב זה, אלא בחורף כָּנוֹן מוגן מפני רוחות עזות על ידי שלושה קירות. אם תרצה, תוכל להפוך את הקיר הרביעי לשינוי.
בחירת חומר
אפשרויות מה לבנות במו ידיך ביתן עם ברביקיו - חבורה של. יש לבחור אותם תוך התחשבות בתכונות העיצוב, בנוף האתר וביכולות שלך. אם חווית הבנייה לא גדולה במיוחד, לא כדאי לבצע פרויקטים מורכבים מדי.
באופן מסורתי, ביתנים בנויים מעץ, אבן או מתכת.
אגדת עץ
עץ הוא חומר טבעי חם, המסורתי לקווי הרוחב שלנו. העיבוד של אלמנטים מבניים יכול להיות שונה מאוד.
טבלה 1. יתרונות וחסרונות החומר
| מקצוענים | מינוסים |
|---|---|
| העץ מאפשר ליישם כל פרויקט עיצובי. | עץ הוא חומר מסוכן לאש. סידור ברביקיו בביתן כזה דורש אמצעים מיוחדים למניעת שריפה בשוגג. |
| עלות חומרים ועבודות בנייה נמוכות. שימוש בתשתית קלה. | העץ דורש תחזוקה מתמדת. יש לטפל בו נגד חרקים, לצבוע אותם או לכה באופן קבוע, כדי להבטיח שלא ייווצרו ריקבון ופטריות. |
| אין צורך להשתמש בציוד מיוחד או כלים לבנייה | |
| בנייני עץ עם טיפול הולם יחזיקו מעמד עשרות שנים |
אבן יסוד
לְבֵנָה, גוש או אבן - כל החומרים הללו מאפשרים לך לבנות מבנה מוצק שאינו חושש מהזמן או מגחמות מזג האוויר.
לוח 2. מאפייני מבני אבן
| מקצוענים | מינוסים |
|---|---|
| מבני אבן אינם מפחדים מאש. | נדרש בסיס איתן שלם |
| מבני לבנים אינם דורשים תחזוקה מתמדת. | הנחת לבנים או אבן צריכה להיעשות על ידי אנשי מקצוע. לא קל לבנות ביתן כזה במו ידיך. |
| מבנים העשויים מחומר זה יכולים להימשך עד מאה שנים. | |
| מבנים כאלה יגנו באופן אמין מפני כל מזג אוויר גרוע. |
תחרה מתכתית
ביתן מברזל מחושל הוא קישוט מפואר של האתר. אין זה סביר כי ניתן יהיה לעשות זאת במו ידיך, לשם כך עליך להיות בעל כישורים מקצועיים.
לוח 3. שימוש ספציפי במתכת
| מקצוענים | מינוסים |
|---|---|
| עיצוב בלעדי | מבנים מזויפים הם תענוג יקר |
| מתכת היא חומר עמיד, והיא תחזיק מעמד לפחות חצי מאה | מתכת דורשת תחזוקה שוטפת - צביעה, הגנה מפני חלודה. |
| פרזול עובד היטב עם חומרי בניין אחרים | תחרה מזויפת לא תגן עליך מפני רוח וגשם. אז אתה יכול להשתמש בביתן כזה רק באופן עונתי. |
| מתכת לא מפחדת מניצוצות מהברביקיו. |
עיצוב אזור ברביקיו בבית כפרי: פרויקטים, תמונות
זה לא מספיק לבחור את החומר עבור ביתן, אתה גם צריך לקשט אותו יפה ומסוגנן. ניתן לעשות זאת מבלי לבזבז כסף ומאמץ נוספים. בואו נסתכל על פתרונות מקוריים פשוטים, על התכונות הסגנוניות שלהם.
בקתה צרפתית

בעיצוב זה, הרצפות צריכות להיות עשויות אבן טבעית או עץ לא מטופל. המבנה עצמו מובחן בכוחו ובאיכותו הטובה.
מאפייני סגנון:
- סיבוב רחב גגותבולט מטר וחצי מעבר לקירות;
- גג חם בעל ארבע מדרגות;
- כרכובים נפחיים;
- פנים דיסקרטי.
כדי לשמור על הסגנון, תוכלו למקם תכונות ציד בחדר: עורות או ראשי בעלי חיים. אפשרות פחות "גברית" - קישוט עם כלי חרס, זרים וזרות. לקישוט משתמשים בצבעים טבעיים ולא בהירים מדי: חום, טרקוטה, אדום, אפור.כל הרהיטים והתפאורה עשויים עץ, השומרים על המרקם הטבעי.
הקסם של הקלאסיקות

מבנים כאלה נבדלים על ידי צורות ברורות, עיצוב לקוני. לחופות יכולות להיות ארבעה או שישה קירות וגג פשוט
מאפייני סגנון:
- השימוש בשיש ועץ בקישוט;
- צבעי פסטל בפנים.
לקישוט, אלמנטים מזויפים, משמשים כרכובים מתולתלים. מקשטים ביתן קלאסי עם פרחים בעציצים ובאגרטלים.
מניע מזרחי
המונח "סגנון מזרחי" מתאים לסוגי אדריכלות ערבית, יפנית, סינית. הכיוון היפני-סיני הסגפן מתאים יותר לנתינה.
מאפייני סגנון:
- השימוש בחומרים טבעיים, כולל במבוק ואגמון;
- גג מתולתל רב שכבתי עם זוויות כלפי מעלה;
- שימוש בצבעים רגועים בפנים.
כדי לקשט חדר כזה משתמשים בנייר אורז, מחצלות, ריהוט מיניאטורי, מנורות רצפה.
סגנון מודרני
פרויקטים דומים עבור ביתנים עם ברביקיו וברביקיו עבור קוטג'ים בקיץ משתמשים בשילוב חומרים. השימוש בפלסטיק וזכוכית, עץ וכרום מקובל.
פרובנס נעים
הסגנון האהוב ביותר על תושבי הקיץ. זה יכול לחול לא רק על ביתן, אלא על כל מבני האתר.
מאפייני סגנון:
- מרווח החדר;
- השימוש בשילובי טקסטיל מחוספס ותחרה;
- רהיטי נצרים ומזויפים;
- קישוט עם אגרטלים, פמוטים, ציורים.
הבחירה הנכונה של מנגלים ומנגלים למעון קיץ: מכשירי צילום
שלב חשוב נוסף בסידור ביתן הוא בחירת הפלטה. בואו נסתכל על מודלים, פרויקטים, תמונות. ביתן עם ברביקיו צריך להיעשות באותו סגנון, ולכן הפלטה צריכה להתאים גם לכיוון הנבחר.
אפשרויות מפעל לפלטה:
- צמידים חשמליים. יהיה עשן ולכלוך מהם, ניצוצות לא יפגעו ברצפה ולא יגרמו לשריפה. הגריל החשמלי הוא בעיצוב קומפקטי שניתן לפרק ולהרכיב מחדש במידת הצורך.
- ברזל יצוק. מכשיר עמיד ואמין. גריל כזה אינו מתעוות מהחום, כמו מקבילו מפלדה. ברזל יצוק שומר באופן מושלם על החום, ולכן הוא אינו דורש יותר מדי דלק.
- פְּלָדָה. היתרון העיקרי שלהם הוא העלות הנמוכה שלהם. בגריל כזה תוכלו לבשל כל מאכל. עם הזמן זה נשרף, אבל זה לא משנה, במחיר כזה אתה יכול לקנות חדש.
פלטות אבן הן אופציה נייחת. אתה יכול לבנות פלטה כזו מלבנים עמידות בחום לבד, ללא כישורים מיוחדים. עיצוב זה לא מפחד מהחום, הוא יחזיק מעמד כל עוד הביתן.

במתחם הברביקיו הנייח יכול להיות שולחן חיתוך, מקום לאחסון עצים להסקה. אתה יכול להוסיף לקדרה קדירה, תנור רוסי
ביתן עם ברביקיו: פרויקטים, תמונות הצבה באתר
כאשר אתה קובע מקום להציב מקום נופש, עליך לשקול את הנקודות הבאות:
- מרחק מהבית. אל תניח את הבניין רחוק מדי. יהיה עליך לשאת כלים ואוכל מהבית כדי לערוך את השולחן;
- נוכחות של מאגר באתר. לינה ליד המים אידיאלית;
- האפשרות לנהל תקשורת. זה מאוד נוח כשיש הזדמנות להוביל מים וביוב לבניין. ניתן לשטוף אוכל וכלים במקום.
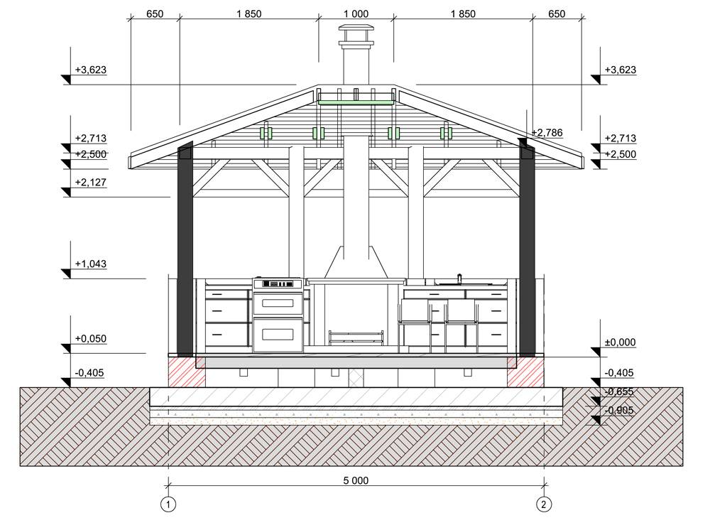
לאחר שהתמודדת עם מיקום המבנה, עליך להכין רישום מפורט. דוגמאות לציורים:
טבלה 4. מה חשוב לקחת בחשבון בעת ציור רישום
| אפשרויות | על סמך מה מחושבים |
|---|---|
| גובה פתיחת הכניסה | מחושב מהגובה הממוצע של האדם. אם יש אנשים במשפחה שגובהם מעל הממוצע, יש לקחת זאת בחשבון. |
| רוחב כניסה | בדרך כלל הוא עשוי סטנדרטי, כמטר |
| גדלי אלמנטים | האורך הסטנדרטי של עץ מנוסר ומתכת מגולגלת הוא שישה מטרים. על מנת לחסוך כסף, עליך להסתמך על אינדיקטור זה. |
| חישוב מחברים וחומרים | כל האלמנטים המבניים מחוברים עם מחברים. יש צורך לעבד היטב את כל החיבורים תוך התחשבות בעומס. |
כמה טיפים מועילים
- אם מוציאים את הגריל הנייח מהחופה, אתה יכול להגן על הבנייה מפני גשם באמצעות לכה אקרילית.
- בהנחת תיבת האש, עליך להתמקד בגודל השיפודים.
סיכום
שקלנו את האפשרויות לפרויקטים, תמונות של גזיבו עם ברביקיו. על מגרש הגן תוכלו לבנות מבנה שיהפוך לא רק למקום להכנת ברביקיו, אלא יהווה את גולת הכותרת של בעלות על בית פרברי וקנאת שכנים.
גריל נוח, דברים קטנים ונעימים בעיצוב, שפע של ירק - והמשימה בוצעה בצורה מושלמת!
וידאו: ביתן עם מתחם תנורים






































