פרויקטים של בתים מגושי קצף: בנייה איכותית ללא עלות נוספת
בניית בית אינה משימה קלה. יש צורך לגשת לפיתרון ביסודיות. כמו כל אתר בנייה עולמי, בניית בית מתחילה בפרויקט שלו. היום עורכי homebase.decorexpro.com/iw/ החליטו לעזור לכם במשימה זו ובחרו, לדעתנו, את הפרויקטים המעניינים ביותר של בתים מגושי קצף, שיאפשרו לכם לבנות את ביתכם במהירות וללא קורבנות מוסריים וכלכליים מיותרים.

לדמיין את בית החלומות שלך מראש, הדרך הקלה ביותר היא ליצור קשר עם סדנה מיוחדת, בה תוך התחשבות ברצונך, המומחים ייצרו פרויקט רב היקף.
תוכן המאמר
- 1 אילו קטעים כלולים בפרויקטים של בתים וקוטג'ים מגושי קצף
- 2 יתרונות של פרויקטים מוכנים, ביצוע שינויים פרטניים
- 3 אילו גורמים נלקחים בחשבון בתכנון האישי של בתים מגושי קצף
- 4 סקירה כללית של פרויקטים של בתים מגושי קצף עם פריסה
- 5 טכנולוגיה לבניית בית פרטי מגושי קצף
- 6 כמה עולה לבנות בתים מגושי קצף - סקירה כללית של מחירים תוך התחשבות במפרט הפרויקט
- 7 סרטון של תהליך הנחת בלוקים מבטון מוקצף
אילו קטעים כלולים בפרויקטים של בתים וקוטג'ים מגושי קצף
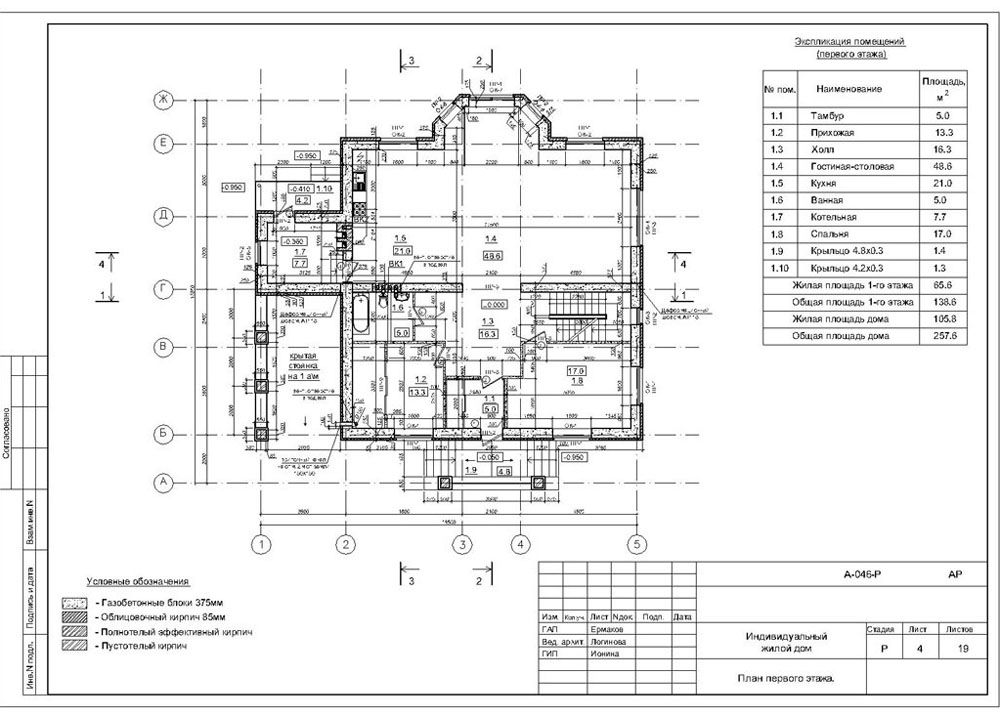
הפרויקט הוא היסוד של כל בית. התוצאה של כל העבודה תלויה במיומנות ובצורה ברורה. ובכלל, איכות ונוחות החיים לכל המשפחה. פרויקט בית שלם מ בטון קצף יעזור לחשב לא רק את נפח רכישת החומר, אלא גם את שלבי העבודה ורצף שלהם. יש לזכור כי בלעדיו לא ניתן יהיה לסדר את הבניין המוגמר בהתאם לנורמות הקיימות של חקיקה מקומית. הפרויקט הכרחי לקבלת אישורים רשמיים, ביצועים איכותיים של פעולות טכנולוגיות בודדות.
בואו ננתח את החלקים של פרויקט בית טיפוסי.החלק הראשון מפרט את הפרמטרים הכלליים האופייניים למבנה טיפוסי. ממדי השטח, מיקום קוביות הדלתות והחלונות. להלן גם:
- תוכניות לקומות בודדות;
- מבנה בחתכים;
- תצוגות מצדדים שונים.
בבלוק הבא, מה שנקרא סעיף העיצוב, תוכלו ללמוד עוד על החלקים הבודדים של המבנה: קרן, חפיפות, מעליות מדרגות, גג. להלן החומרים, רכיבים בודדים. חלק זה מכיל נוסחאות וחישוב הכוח המבני של ביתך.
בגוש ההנדסי מוצגים תיאורי המערכות:
הבלוק הבא משקף: קיבולת מעוקבת, מוליכות תרמית של קירות, אינדיקטורים טכניים ותפעוליים אחרים. שיטות ופתרונות טכנולוגיים מורכבים ולא סטנדרטיים מתוארים בנפרד. תואר היוצרים של היזמים מצוין, עותקים של הרישיונות מצורפים.
לשם הבהרה, רישומים "יבשים" מלווים בגרפיקה חזותית. הצילומים בדוגמה מדגימים הצעות ליצירת שבילים, סידור אזורי בילוי.
יתרונות של פרויקטים מוכנים, ביצוע שינויים פרטניים
במאגרי מידע ממוחשבים ישנם מאות פרויקטים מוכנים של בתים מגושי קצף. לכן, תוכלו למצוא במהירות את האפשרות הנכונה. שימו לב ליתרונות הפתרון הזה:
- מחיר סביר;
- חישוב מדויק של מבנים לעומסים;
- מאפיינים צרכניים שהוכחו בפועל;
- אין בעיות בתהליך הבנייה, כמו גם בעת רישום זכויות הקניין.
הרשימה הבאה מציגה את השינויים שנעשים לבקשת הלקוח בפרויקטים של בתים מגושי קצף:
- מידות מתאר המבנה;
- גבהים לתקרה;
- זווית שיפוע גג;
- חומרים לבידוד, גימור חיצוני ופנימי של הרצפה, הקירות, התקרה;
- ממדים חַלוֹן/ פתחי דלתות.
מחיצות שאינן מתפקדות כמסגרת נושאת עומס מועברות גם כן. תיקונים מוסמכים אינם יכולים להפר את חוקי הבנייה. מחיר הפרויקטים המוגמרים של בתים חד קומתיים ובתים אחרים העשויים מגושי קצף הוא הרבה יותר זול בהשוואה להכנת חבילת מסמכים מלאה מאפס. כפי שמוצג לעיל, שינויים מהירים ודרמטיים מקובלים. הם מכסים מגוון רחב של צרכים פוטנציאליים. על פי מטלה טכנית פרטנית, הם יוצרים בניינים בלעדיים, פותרים בעיות הנדסיות ייחודיות.
אילו גורמים נלקחים בחשבון בתכנון האישי של בתים מגושי קצף
חומרי בניין בקטגוריה זו נוצרים מתערובת בניין על בסיס בטון... באמצעות טכנולוגיות שונות, הם מספקים מבנה נקבובי. צורות או ניסור חלקים גדולים משמשים ליצירת בלוקים עם המידות הרצויות. היתרונות של מוצרים כאלה בהשוואה לחומרים מסורתיים ברורים:
- חוזק גבוה;
- שמירה על תקינות בטווח טמפרטורות רחב;
- קל;
- מאפייני בידוד חום ורעש מעולים;
- ניקיון אקולוגי;
- זול;
- תאימות טובה לשימוש בשילוב עם חומרי גימור ובנייה שונים.
ממדים גדולים מזרזים את תהליך הבנייה. מתאים להתאמת גודל מסור ידני או כלי חשמל מתאים. החסרונות המפורטים להלן ניתנים בהתחשב בפרטים המקומיים:
- גושי קצף נחותים מכוחם למוצרים דומים העשויים מבטון רגיל.
- לוקח 20-30 יום להיות מוכן לשימוש בלחות נמוכה ובטמפרטורה גבוהה מספיק. מפיקים שאינם אחראים מספיק מפרים כלל זה.
- כדי להשיג פיזור אחיד של הנקבוביות, יש צורך ליישם תהליכים טכנולוגיים איכותיים.
- תהליך ההתכווצות הטבעי עלול לגרום לעיוותים של עד 1-3 מ 'לכל מטר רץ של הבניין. במצבים מסוימים, עליך להשהות עד 2.5-3 חודשים לפני שמורחים ציפוי דקורטיבי.
האיור מסביר את הפשטות של הטכניקות האישיות. מומלץ לבחור בחירה מדוקדקת של היצרן כדי למנוע בעיות במהלך הפעולה. הבדיקה הפשוטה ביותר של אחידות המבנה יכולה להיעשות באופן ויזואלי על ידי פיצול בלוק הבדיקה. נקבוביות איכותיות בגודל אחיד. אם הגוון בהיר מדי, יתכן שכמות המלט אינה נכונה. הצפיפות מוגדרת על ידי שקילת המוצר בגדלים סטנדרטיים.
מאמר קשור:
בסקירה זו נספר לכם בכנות גדלים ומחירים של גושי קצף, המאפיינים הטכניים שלהם ומבצעים ניתוח השוואתי מפורט עם בטון סודה.
פעילות סייסמית ותכונות גיאולוגיות של האזור
בבניית בית פרטי מגושי קצף מומחים לוקחים בחשבון את יכולת העומס בשילוב עם מאפייני הבידוד. לחלוקה לקבוצות, השתמש בצפיפות (ק"ג / מ"ק):
- הטווח 200-600 מתאים ליצירת שכבות של חום והגנה מפני רעש.
- עם ערכים של 600 עד 1000, ניתן להשתמש במוצרים במקומות עם עומס מוגבל (מחיצות פנים).
- מוצרים עם צפיפות גבוהה יותר משמשים בקירות מוצקים ומבנים נושאים.

יציבות הבניינים מוערכת כמכלול. משקל כולל חיוני. להלן דוגמה לבניין בן שתי קומות.
| חומרים | משקל, t | |||
|---|---|---|---|---|
| קירות קונטור | קירות ומחיצות פנימיים | סך הכל | השפעה אופקית (סייסמית) | |
| לְבֵנָה | 92,5 | 85 | 177,5 | 71 |
| בטון קצף | 45 | 42,5 | 87,5 | 35 |
הבדיקות שבוצעו בשנת 2010 (TsNIISK על שם V. A. Kucherenko) הוכיחו את האפשרות להשתמש בגושי קצף בצפיפות של 500 ק"ג / מ"ק (בטון B3.5) להנחת קירות נושאים באזורים המועדים לרעידות אדמה. כמובן שצריך חישוב תכנון מדויק.
הירידה במשקל מרמזת על הפחתה מקבילה בדרישת היסוד. בקרקעות יציבות, מספיק להשתמש במקרים הרגילים מבנה חגורה עם העמקה מתחת לרמת ההקפאה. היציבות הטובה ביותר תסופק על ידי בסיס מונוליטי (לוח). אך במקרה זה, כמות הבטון, החיזוק והעלות הכוללת עולה משמעותית.
תנאי אקלים והצורך בחיסכון באנרגיה
ההתנגדות התרמית של הקירות החיצוניים חושבה עבור אזורים בודדים, המספקת הגנה טובה מפני טמפרטורות חיצוניות נמוכות. יחד עם זאת, זה מקל על שמירת תנאים נוחים בקיץ. הנתונים המדויקים ניתנים ב- SNiP "הגנה תרמית על מבנים".
ניתן לבצע את החישוב באמצעות הנוסחה:
T = C × Kאיפה
- ט האם עובי הקיר החיצוני;
- מ - עמידות תרמית סמלית לאזור ספציפי;
- ל - מקדם מוליכות תרמית של גוש קצף של מותג מסוים.
ואז נותר רק לבחור מוצר סטנדרטי מתאים עם שוליים קטנים, שיעזור לפצות על תנאי אקלים קיצוניים. הנתונים בטבלה יהיו שימושיים לניתוח השוואתי של חומרי בניין שונים. שימו לב לטור עם מוליכות תרמית.זה מדגים בבירור איך אתה יכול לחסוך כסף משמעותי במהלך המבצע בעת בחירת פרויקט בית מבלוקים קצף.
| חומרי בנייה | מוליכות תרמית, W / m × ° C | צפיפות, ק"ג / מ"ק | חדירות קיטור, מ"ג / מ"ה × אבא |
|---|---|---|---|
| גושי קצף | 0,11-0,45 | 300-1200 | 0,25-0,11 |
| מוצרי בטון מזוין | 1,8 | 2400 | 0,03 |
| המגהץ בטון חרס מורחב | 0,8 | 1800 | 0,09 |
| מוט אורן (מדידות לאורך התבואה) | 0,29 | 500 | 0,35 |
| לבני חרס עם חללים | 0,5-0,6 | 1200-1600 | 0,17-0,14 |
| לבני סיליקט | 0,8 | 1800 | 0,11 |
| חומרי בידוד סיבים (צמר זכוכית וכו ') | 0,05-0,06 | 50-120 | 0,5-0,3 |
| לוחות קצף פוליאוריטן | 0,04-0,05 | 40-80 | 0,05 |
| סיבית, סיבית | 0,07-0,13 | 200-600 | 0,24-0,13 |
| קיר גבס | 0,19-0,38 | 800-1200 | 0,075 |
| חלקי פלדה | 58 | 7800 | - |
הערה! השורה האחרונה מדגימה עד כמה חשוב להתקין נכון את אלמנטים מבני המתכת. החלטות מוטעות יוצרות "גשרים קרים", אשר משפילים משמעותית את פרמטרי היעילות האנרגטית של הבניין.
תקציב, העדפות לקוחות פרטניות, גיבוש דרישות מאוחדות
האלגוריתם המופיע להלן יסייע לגיבוש הדרישות לפרויקט מתאים של בית בלוק קצף ללא שגיאות:
- בחן את הארץ. נתונים גיאולוגיים יסייעו בקביעת מאפייני היסוד. מה שחשוב הוא מיקום הבניין ביחס לכניסה, נקודות קרדינליות.
- שקול היטב את התוכנית הכללית עם בניינים אחרים כדי לבחור את השטח / מספר הקומות המתאים לבניין הראשי.
- כאשר מגדירים עם מאפיינים כלליים, שקול את הצורך בהנחות, תוך התחשבות בפרק זמן מספיק ארוך (15-20 שנה).
צורות ארכיטקטוניות מורכבות, תכנון מיוחד, חלונות מפרץ, מרפסות ותוספות אחרות מעלים את עלות הפרויקט. העלויות גדלות עם שיפור פרמטרי הבידוד. עם זאת, עלינו לזכור כי השקעות כאלה, יחד עם שימוש בחומרים איכותיים, ישתלמו פעמים רבות בעתיד. לכן, החישוב הכלכלי הנכון מתבצע לתקופה של עד 30 שנה ומעלה, תוך התחשבות בעלויות השוטפות. פרויקטים מוגמרים של בתים מגושי קצף עוברים שיפוץ זול בטכניקות הבאות:
- רישומי שיקוף יאפשרו לכם לשנות את מיקום החדרים ביחס לחלקי העולם לפי הצורך.
- זה מספיק רק כדי לשנות את מקום העגינה של המבנים החיצוניים (מרפסת, מוסך, גן חורף).
- על ידי העברת הפתחים לחזית ניתן להתקרב את הבניין לגבול חלקת הקרקע.
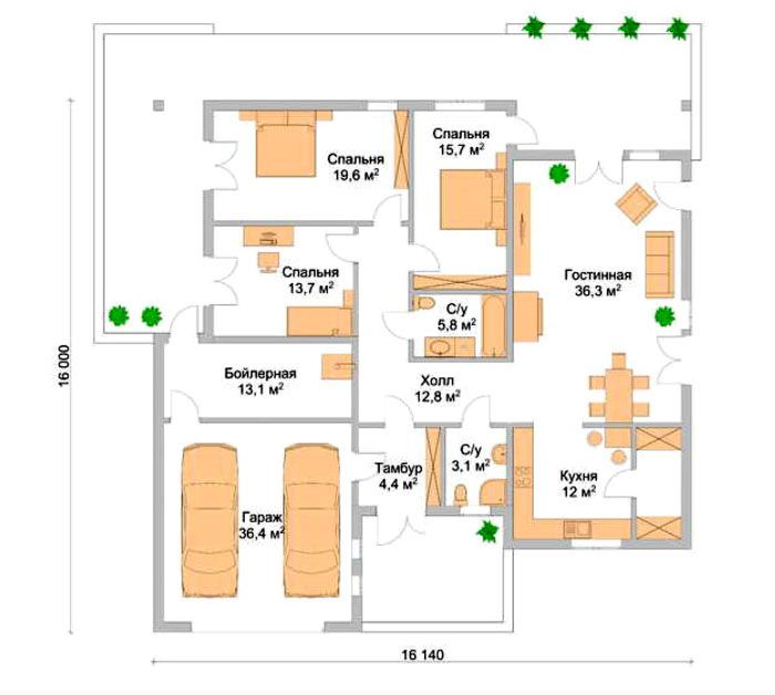
סקירה כללית של פרויקטים של בתים מגושי קצף עם פריסה
זה נוח לרכוש פרויקטים של בתים מגושי קצף עם קומפלקס של עבודות בנייה מארגון אחד. מחיר המפתח אינו משתנה עם ההסדר החוזי המתאים. הלקוח מקבל ערבויות כלליות אמינות. השליטה במבצעים מופשטת ואחריותם מוגברת. העלות הכוללת נמוכה יותר מבחירת קבלנים מרובים. הפתרונות האופייניים המוצגים להלן יכולים לשמש לבניית בניינים בכוחות עצמם.
פרויקטים של בתים דו קומתיים מגושי קצף
מבנים כאלה, עם שטח בנייה קטן, מאפשרים ליצור אזורי מגורים מן המניין בשני מפלסים.
הדוגמה האחרונה מדגימה כיצד לשפר את הפרמטרים הצרכניים של פרויקט חסכוני בגודל 6 × 6 קצף ללא עלויות מוגזמות. כדי ליישם רעיונות כאלה, אתה צריך מקום פנוי על הקרקע.
מאמר קשור:
תוכניות לבתים דו קומתיים. היקף ותכונות ייחודיות, יתרונות וחסרונות, חומרים; פריסות בתים 9x9, 10x10, 7x7, 6x8, 6x10, 9x6, 12x12 מטר - בפרסום שלנו.
פרויקטים של בתים חד קומתיים מגושי קצף
מבנים אלה מספקים סביבת מגורים נוחה ללא טיפוס מדרגות מייגע.החיסרון המשמעותי היחיד הוא הדרישות המוגברות לגודל המגרש.
הערה! עלות הפרויקט לבית בן קומה אחת העשויה מגושי קצף מוגדלת בשל אורך הקירות החיצוני הארוך יותר.
- תוכנית מרתף
- חדר אוכל עם חלון מפרץ
- הפרויקט של בית חד קומתי 8 × 8 מגושי קצף
- שטח הגג גדל. עליות עלות ניכרות אם משתמשים באריחי קרמיקה יקרים.
- פרמטרים בידודיים טובים של יחידות חלונות מודרניות מקלים על יישום רעיונות כאלה.
- במרתף / במרתף תוכלו ליצור אזור מנוחה שלם
- בעת הצבת הבריכה יש לשים לב במיוחד לאיטום איכותי
- חדר האדים במרתף מוגן היטב מפני אובדן חום מיותר
- גימור תקרה מיוחד ימנע התקפות של קלסטרופוביה.
מאמר קשור:
התוכנית של בית בן קומה אחת. פרויקטים של בתים בגדלים שונים עם מרתף, מוסך בעליית גג, כיצד לפתח נכון פרויקט של רשתות הנדסיות בבית, עצות שימושיות ממומחים - תמצאו בפרסום.
פרויקטים של בתים מגושי קצף עם עליית גג
עם בידוד טוב החלל שמתחת לגג הופך למגורי מגורים מן המניין.
מאמר קשור:
בית עם עליית גג: פרויקטים, תמונות. מבני עליית גג הם רעיון מעשי ואטרקטיבי מאוד לחלקה פרטית. פרויקטים, תמונות של חללי פנים מוצלחים והמלצות של בונים מנוסים נמצאים בחומר שלנו.
פרויקטים של בתים כפריים מגושי קצף
קבוצה זו כוללת מבנים קומפקטיים. נקודת בנייה קטנה מרומזת.
פרויקטים של בתים מגושי קצף עם מוסך
בחדרים כאלה הם מתקינים אוורור יעיל, לשמור על תנאי אחסון אופטימליים לטמפרטורה לציוד רכב.
טכנולוגיה לבניית בית פרטי מגושי קצף
אי אפשר לקבוע מהתמונה את המחיר הסופי של הפרויקט עבור בית בלוק קצף. יש לקחת בחשבון את העלויות של ביצוע פעולות עבודה.
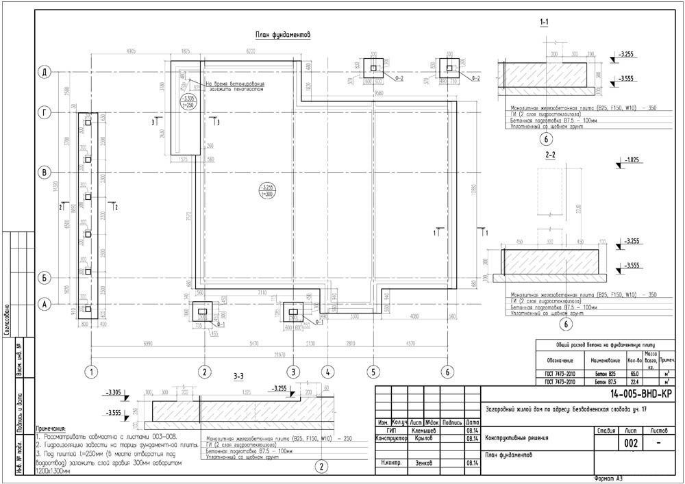
תכונות של הנחת יסוד, בנייה וחיזוק קירות
סוג היסוד נבחר תוך התחשבות במשקל הבניין, גאולוגיה, תנאים סייסמיים, עומסי שלג. בתהליך הנחת, הקפד להשתמש תִגבּוֹרֶת כל 4-6 שורות. חיזוק מיוחד נעשה מתחת ללוחות רצפה, מעל לחלונות ולדלתות.
התקנת גגות, בידוד וחיפוי חזיתות
מבנה הקורות מורכב על הקרקע עם הרמה לאחר מכן או מותקן ישירות עם תמיכה על לוחות הרצפה. הקפידו להתקין שכבות של חום, קול ואיטום. חישובים זהירים במיוחד נעשים בבחירת אריחי קרמיקה כבדים.
גימור אופייני מתבצע באמצעות טיח, מסיים את הציור. בחוץ, אתה יכול להתקין קיר של לבנה פונה עם פער אוויר. שילובים שונים משמשים גם עם בידוד חיצוני, ציפוי ויניל.
כמה עולה לבנות בתים מגושי קצף - סקירה כללית של מחירים תוך התחשבות במפרט הפרויקט
| שם הפרויקט של הבית מגושי קצף | תְמוּנָה | סה"כ / שטח מגורים, מ"ר | מחיר (נכון ליוני 2018), אלפי רובל, |
|---|---|---|---|
| "קלַאסִי" | ![]() | 121/81 | 2080 |
| "מַכנִיס אוֹרְחִים" | ![]() | 93/78 | 1570 |
| "צְפוֹנִי" | ![]() | 220/133 | 2650 |
| "מונטה רוזה" | ![]() | 172/123 | 3855 |
| "חולם" | ![]() | 77/53 | 1470 |
יש לזכור כי המחירים הנתונים של פרויקטים לבניית בתים מבלוקים קצף "סוהר" מרמזים על התצורה הבסיסית. העלויות הכוללות נקבעות לאחר בירור דרישות הלקוח. השתמש בתגובות למידע נוסף. הגש כאן סקירות משלך על פרויקטים, טכנולוגיות בנייה, חומרים.

































































