כיצד להכין מלתחה במו ידיך: ציורים, הרכבה, דוגמאות לפתרונות מוצלחים
שליטה אישית בכל שלבי הייצור החשובים מאפשרת ליצור רהיטים בעלי מאפיינים ייחודיים ללא עלות נוספת. מאמר זה מתאר כיצד להכין ארון בגדים במו ידיך. רישומים, הוראות מפורטות, חומרי צילום ווידאו יעזרו לכם לממש את התוכניות שלכם במהירות וביעילות.
תוכן המאמר
- 1 כיצד להכין ארון בגדים במו ידיך: ציורים, פרמטרים כלליים של הפרויקט
- 2 יתרונות וחסרונות של ארון בגדים: מחיר המוצרים המוגמרים והמוצרים הביתיים
- 3 סוגי ארונות בגדים: גדלים, צורות ופרמטרים מגדירים אחרים
- 4 איך קונים חומרים לארון בגדים
- 5 השימוש בארון בגדים בחדרים שונים
- 6 שלבי הכנת ארון בגדים במו ידיכם
- 7 מראה של ארון בגדים מודרני, צילום עם דוגמאות טובות
- 8 תכונות של הכנת ארון בגדים לפי הזמנה
- 9 וידאו: כיצד להרכיב ארון בגדים במו ידיכם
כיצד להכין ארון בגדים במו ידיך: ציורים, פרמטרים כלליים של הפרויקט
כדי לגלות כיצד להכין ארון בגדים בעצמך, עליך להבהיר את מטרת הרהיטים. מחקר מדוקדק של העובדות הבאות יועיל:
- נפח פנימי משמעותי מרמז על האפשרות להציב בגדים ונעליים, מכשירי חשמל ביתיים, צעצועי ראש השנה, מצעים ודברים אחרים. לכל מיקום יש צורך במצב אחסון אופטימלי, נוח למשתמשים.
- עם חזית גדולה, פרמטרים אסתטיים הם חיוניים. למשטח קדמי יפה ישפיע באופן משמעותי על התפיסה הכוללת של הפנים המתאים.
- בחירת חומרי הבסיס היא משימה קריטית. לא רק העלות, אלא גם קלות ההרכבה ועמידות המבנה תלויה במידה רבה בהחלטה הנכונה.
יש צורך לקבוע את פרמטרי האבזור, מנגנונים לארון הבגדים, כדי להבין את טכנולוגיית ההרכבה. חבילת תיעוד העיצוב חייבת להכיל רשימת רכיבים, כלים, מחברים. כל הניואנסים החשובים נחשבים שלב אחר שלב במאמר.
יתרונות וחסרונות של ארון בגדים: מחיר המוצרים המוגמרים והמוצרים הביתיים
לא יזיק להבהיר את היתרונות שתוכלו לקבל לרשותכם לאחר היישום המוצלח של התוכניות. מידע זה יעזור להבהיר את כמות המימון הזכאי:
- כל אחד אִחסוּן ניתן לארגן בדיוק לפי הצרכים האישיים. כדי להרים חפצים כבדים, מותקן מוט עם מיקרוליפט, משתמשים בפתרונות טכניים אחרים.
- המראה נבחר תוך התחשבות בסגנון הכללי ובאלמנטים העיצוביים של פנים מסוימים.
- רהיטים גדולים משמשים לתיקון בליטות, קירות לא אחידים ופגמים אדריכליים אחרים.
- הרבגוניות של המוצר מאפשרת לך ליצור עיצובים אידיאליים לקבוצת הכניסה, חדר ילדים, הנחות אחרות.
- מגוון רחב של מדריכים, אביזרים מיוחדים מאפשר לכם להכין ארון במו ידיכם באיכות גבוהה ללא עזרת מומחים ועלויות מיותרות.
- טכנולוגיות מפותחות, כאשר משתמשים בהן נכון, מבטיחות אמינות גבוהה של כל חלקי הרהיטים, כולל מנגנונים לחיזוק והזזת דלתות.
סרטון הרכבה בארון בגדים DIY:
חומר זה מאשר את הפשטות היחסית של הטכנולוגיה. עם זאת, זה גם ממחיש את החיסרון המשמעותי העיקרי - את פעולות העבודה יהיה צורך לבצע באופן עצמאי. בנוסף לבזבוז זמן ומאמץ פיזי, יש לזכור לגבי אחריות אישית לתוצאה הסופית. במקרה זה, אין חובות אחריות של צד שלישי, ולכן יהיה צורך לתקן שגיאות על חשבונך.
סוגי ארונות בגדים: גדלים, צורות ופרמטרים מגדירים אחרים
הבנייה העצמאית אינה שונה מריהוט ארונות רגיל.
בפרויקט זה, התושבות מותקנות במסילות מחוררות המחוברות ישירות לקיר הבניין. פתרון זה מאפשר לך לשנות את גובה המדפים במהלך ההפעלה, להוסיף אלמנטים חדשים. המסגרת עם מדריכים לעלה הדלת מיושרת במדויק למידות החדר. היעדר כיסוי, רצפה וקירות מפחית משמעותית את עלות הריהוט מבלי לפגוע בפונקציונליות, במראה ובפרמטרים צרכניים אחרים.
ה"מינוס "היחיד הוא חוסר האפשרות להעביר את הארון למקום אחר. עם זאת, מותר לעשות שימוש חוזר בציוד הפנימי לאחר הפירוק.
איך קונים חומרים לארון בגדים
עץ
דגמי רהיטים יקרים נוצרים מחומרי גלם טבעיים איכותיים. הם משתמשים בסוגי עץ קשים ובעלי ערך, בטכנולוגיות ייבוש מתוחכמות, ויוצרים שכבות דקורטיביות ומגנות. לשימוש פנימי מתאימים רק לכות והספגות בטיחותיים לבני אדם.
למרות העלות הגבוהה, מדובר במוצרי עץ שנפגעים מההשפעות השליליות של לחות וטמפרטורה משתנים. הגורם השלילי הבא הוא משקל מוצק. לרוב, לוחות דקורטיביים, לוחות בסיס ואלמנטים קישוטיים אחרים עשויים מחומר כזה.בלעדיות של רישומים שיצר הטבע עצמו זוכה להערכה מיוחדת.
קיר גבס
זהו חומר זול אך שביר. רק דרגות קיר גבס מיוחדות מוגנות מפני לחות. אפילו לחץ קל יכול לפגוע במוצרים כאלה. כדי להגביר את ההתנגדות לעומסים, הם מותקנים במסגרות מתכת. נדרש תוספת טיפול שטח לאסתטיקה מקובלת. העיצוב מורכב, עם מאפיינים צרכניים נמוכים יחסית, ולכן משתמשים בו לעתים נדירות.
סיבית, MDF וסיבית למינציה
נסורת ולוחות גילוח משמשים לעתים קרובות בתעשיית הרהיטים. הם נבדלים על ידי מחיר סביר, חוזק מספיק, עמידות. במפעל, יצרנים אחראיים משתמשים בקלסרים איכותיים החוסמים תהליכי ריקבון, מסייעים בשמירה על צורה ושלמות לאורך חיי שירות ארוכים. חלקי הקצה מוגנים מפני מתח מכני וחדירת לחות על ידי קצוות PVC בעובי של 0.5 עד 2 מ"מ.
הערה! בבחירת חומרים בקטגוריה זו נבדקת בטיחות רכיבי ההדבקה. יש לשים לב במיוחד כאשר מציידים את חדר השינה, חדר הילדים בריהוט. יש לא לכלול את חדירת החומרים המזיקים והאלרגנים לאטמוספירה.
לוחות דיקט ורהיטים
חומרים אלה בתכנון המקביל פחות רגישים לשינויים בטמפרטורה ולחות בהשוואה לעץ מלא. הם טובים מ- סִיבִית החזק ברגים ומחברים אחרים.
חומרים אחרים
מסגרת האלומיניום מספקת קשיחות טובה עם משקל נמוך. זה לא נפגע על ידי קורוזיה לאורך חיי שירות ארוכים. תוספות זכוכית חלבית הן פיתרון מעשי. הם מסתירים את פנים הרהיטים, נראים אסתטיים ולא מתלכלכים בקלות. מנקים משטחים כאלה מלכלוך ללא נזק ומאמץ מיותר. בתנאים הקשים ביותר, מוצרי זכוכית נשארים שלמים ללא אמצעים נוספים.
השימוש בארון בגדים בחדרים שונים
יש לקחת בחשבון את הגורמים שלמטה בעת ציון פרמטרי הרהיטים עבור עֲלִיַת גַג, מִטְבָּח, חדר עבודה, חדרים אחרים.
מִסדְרוֹן
ליד קבוצת הכניסה, יש להוסיף אותו עם מתלה נעליים (1), ספסל נוח (2), מתלים (3) לבגדים חיצוניים, מדפים פתוחים (4) לאביזרים ואלמנטים דקורטיביים.
בהתחשב בתדירות השימוש הגבוהה ביותר, ריהוט לחדר זה מצויד במדריכים אמינים. כאן ראוי להשתמש בזכוכית, סגסוגות מתכת וחומרים אחרים העמידים בפני השפעות חיצוניות. בחדרים קטנים משתמשים בצבעים בהירים של גימורים, בתוספות מראה גדולות.
מאמר קשור:
רוצה לבחור ארון בגדים במסדרון? קרא את הפרסום שלנו! נשקול את התכונות וסוגי העיצובים, סודות הבחירה, טיפים למיקום, רעיונות לצילום של אפשרויות מעניינות והמלצות שימושיות אחרות.
סלון
על מנת לשמור על מאפיינים אסתטיים מצוינים, חוטי החיבור וכבלי החשמל מוסתרים בערוצים בתוך הרהיטים. בשלב התכנון יש לספק חיתוכים מתאימים עם הוספות פלסטיק.
יְלָדִים
הערה! שים לב שמסגרות שקועות וללא ידיות בולטות משפרות את הבטיחות. ריהוט כזה מתאים היטב לאבזור חדרי ילדים.

אם אתם מתכננים להכין ארון בגדים במו ידיכם, לא יהיה קשה להחיל ערכת צבעים שתואמת באופן הרמוני לפרטי פנים אחרים
לוגיה
דוגמה זו מראה בבירור את היתרונות של יצירת ארון בגדים "עשה זאת בעצמך" להתקנה אכסניות:
- דלתות הזזה לבצע את תפקידיהם מבלי לנוע בתוך החדר, כמו עמיתים לתנופה.
- ארון הזזה מתאים בדיוק לגודל מסוים ללא פערים גדולים בהם מצטבר אבק.
- עבור הנחות מקום זה, זולים, אך עמידים בפני השפעות חיצוניות שליליות, חומרים מתאימים.
- עם מראה, כמו במסדרון, כאן אתה יכול להגדיל את עוצמת הקול באופן חזותי.
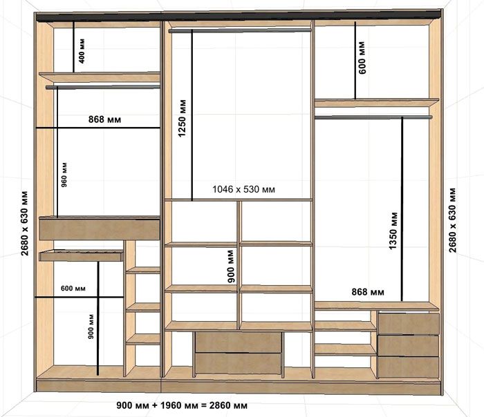
שלבי הכנת ארון בגדים במו ידיכם
מדידות החדר וחישוב מידות הארון
כלי זה יאפשר לך בו זמנית להבהיר את הדיוק של אלמנטים אופקיים ואנכיים של מבני בניין. הדרך הקלה ביותר למדוד היא ריהוט ארונות. במקרה זה, מספיק לקחת את הגודל המינימלי ולהחסיר כמה סנטימטרים כדי ליצור מרווח קטן.
הרבה יותר קשה להיכנס במדויק לארון בגדים מובנה. במו ידיך עליך לבצע לפחות שלוש מדידות לכל מטר אורך (גובה). אם מתגלים פגמים מוגזמים, יש ליישר את המשטחים מראש.
חָשׁוּב! בכל מקרה, בדוק את הפתיחה החופשית של גושי החלונות (הדלתות) הקרובים ביותר. אם יש צורך, התקן את עצירות העלים. וודא כי הארון אינו מכסה את מתג התאורה היחיד בחדר או שהוא קרוב מדי לתקרה או לפנס הקיר.
הכנת תיעוד עיצוב ליצירת ארון או ארון בגדים מובנה במו ידיכם
תוכניות אלה זמינות באתרים הרשמיים של ארגוני סחר. הם חופשיים לחלוטין לשימוש. כל אחד יכול להכניס את תוצאות המדידות שלו. בחירת המדריכים מתבצעת באופן אוטומטי ומחושבת לפי העומס הנקבע על פי גודל הרשת והחומר.
בעזרתו תוכלו לבצע פרויקט איכותי גם ללא ניסיון קודם בעיצוב. אפילו מתחיל ישתלט במהירות על כלי זה באמצעות האלגוריתם הפשוט הבא:
- הגדירו מידות כלליות רְהִיטִים;
- בחר את החומר של הקיר האחורי המחובר אליו על ידי מחמירים;
- החלל הפנימי מחולק למיקומי אחסון נפרדים;
- מלא אותם במדפים פתוחים, מגירות ורכיבים אחרים;
- להציג את הממדים של דלתות ההזזה לארון הבגדים;
- סמן את הקצוות שיש לסגור בעזרת סרט שולי;
- הוסיפו ידיות ואביזרים;
- לבצע את השינויים הנדרשים;
- הדפיסו את התיעוד בצורה נייר, שמרו אותו בקובץ.
רישומי חלקים ניתן למסור לסדנה מיוחדת, או להכין בעזרתם חלקים בודדים של הארון במו ידיכם. הפרויקט האלקטרוני נוח לצפייה מנקודות שונות. ניתן לבצע בה במהירות שינויים שונים תוך התחשבות בדרישות נוספות. הרשימה שנוצרה משמשת לרכישת הרכיבים והחלקים הדרושים.
חָשׁוּב! בסדנה נותרו שאריות גדולות למדי מגיליונות סיבית ומחומרים אחרים. עדיף לקחת אותם איתך כדי להקל על תיקון שגיאות במהלך תהליך ההתקנה ולבצע פעולות תיקון בעתיד.
בחירת גלילים, חומרים, אביזרים ורכיבים אחרים למלתחה
השרטוט מציג את המרכיבים העיקריים של עיצוב טיפוסי:
- המסילות התחתונות והתחתונות של הארון מחוברות לרצפה ולתקרת החדר (החלק התחתון ומכסה הרהיטים, בהתאמה).
- בדוגמה זו, העומס העיקרי הוא על הגלילים התחתונים. אבל יש גם דגמים עם בד תלוי.
- פרופיל הצד "C" משמש בנוסף כידית.
- אלמנטים האיטום עשויים סיליקון, מה שמבטיח קיבוע זכוכית מאובטח.
- האלמנטים הרוחביים האמצעיים מחזקים את מסגרת העומס, מפרידים את האלמנטים הבודדים ברשת מחומרים שונים.
התאמת דלתות קופה עשה זאת בעצמך ותכונות הרכבה אחרות
התקנה ישירה של ארון ישר או פינתי במו ידיכם אינה שונה מהרכבת רהיטים סטנדרטיים. באותו אופן, התקן תחילה את החלק התחתון, הקירות, הכיסוי. לאחר מכן, מדפים פנימיים וחיצוניים מחוברים למסגרת נושאת העומס.
הערה! נוח להזמין מערכת הזזה לארון הזזה לאחר התקנת המארז. במקרה זה ניתן יהיה לבצע מדידה מדויקת.
מראה של ארון בגדים מודרני, צילום עם דוגמאות טובות
יישום של טכניקת ויטראז '
רישומי התזת חול
מדבקות ויניל
אסור לשכוח את זה סרטי ויניל בעלי כוח מוגבל. הם עלולים להיפגע במהלך ניקוי מזהמים באמצעות תרכובות כימיות אגרסיביות.
מאמר קשור:
ארונות בגדים מודרניים: צילום, עיצוב. במאמר נשקול את התכונות של הארונות, את העיצובים הפופולריים והמעניינים ביותר, המלצות לבחירה וטיפים שימושיים אחרים.
תכונות של הכנת ארון בגדים לפי הזמנה
לאחר לימוד הטכנולוגיה של יצירת ארון במו ידיך (ציורים, הוראות שלב אחר שלב, תיאורי התאמות), קל יותר לקבל את ההחלטה הנכונה לגבי שיטת ההרכבה. ניתן להפקיד אותו בידי חברה מתמחה, אומן מנוסה. אך בנוכחות מטען הידע המתאים, השליטה מפושטת מאוד. תוכלו לחלק את העבודה בצורה שמתאימה לכם על מנת לחסוך כסף ולקבל איכות ברמה גבוהה.



























































