מיכל ספיגה עשה זאת בעצמך מבלי לשאוב 10 שנים לבקתות ביתיות וקיץ: תכונות התקנה ותמונות
על אודותאחד התנאים לבילוי נוח מחוץ לעיר הוא הקמת מערכת ביוב. במקביל מבוצעות סילוק שפכים, איסוף וסילוק איכותי. עיצובים כאלה דורשים ניקוי קבוע. כדי להימנע מקריאה תכופה של ציוד מיוחד לשאיבת פסולת, אתה יכול להרכיב בידיים בור ספיגה מבלי לשאוב במשך 10 שנים לבית ולקוטג 'קיץ. לצורך עבודת ההתקנה הנכונה, עליכם ללמוד עוד על התכונות המבניות של מבנים כאלה.
תוכן המאמר
- 1 בור ספיגה עשה זאת בעצמך מבלי להזרים 10 שנים לבית ולמעון קיץ כתחליף לבור מים
- 2 כיצד לבחור את המקום הנכון להצבת בור ספיגה
- 3 מחיר לבורות ספיגה לבית פרטי
- 4 מכשיר ספיגה דייגי מטבעות בטון: תרשים ותכונות בנייה
- 5 בניית בטון מונוליטי
- 6 יישום יורוקובס
- 7 איך משתמשים בחביות?
- 8 מיכלי ספיגה לבקתות קיץ עם מי תהום ברמה גבוהה: תכונות התקנה
- 9 וידאו: מיכל ספיגה עשה זאת בעצמך
בור ספיגה עשה זאת בעצמך מבלי להזרים 10 שנים לבית ולמעון קיץ כתחליף לבור מים
הצורך בהתקנת מערכת ביוב מתעורר כשמתגוררים בבית כפרי לאורך כל השנה. במקרה זה, יש צורך בבור ביוב. זהו מיכל אטום מיוחד בו אוספים פסולת. בהתקנה כזו, פסולת אינה נפטרת באופן טבעי, ולעתים קרובות נדרשת שאיבה באמצעות מכונת ביוב. יצירת בור ספיגה במו ידיך מבלי להזרים 10 שנים לבית ולמעון קיץ נחשבת לאופציה הטובה ביותר.
הניואנסים של טנקים ספיגה לבית פרטי במו ידיך
לכל תכנון של מיכל ספיגה, נדרשת שאיבה מעת לעת. לכן כדאי לשקול את ארגון השירות.
לפני התקנת המערכת, יש צורך לבצע חישובים של נפח מתאים, כמו גם לקבוע את יכולת הניקוז של האדמה.
בור הספיגה הוא מבנה איתן ומוצק. ככל שהמים נעים לאט יותר הם מנקים טוב יותר.
חשוב לבחור את הגודל הנכון של בור הספיגה. זה יעזור למבנה לבצע ביצועים טובים יותר. אם משתמשים במערכת לאורך כל השנה, עליה להיקבר כחצי מטר מתחת לנקודת הקפאה. לאחר 12-15 שנות פעילות, האדמה מתחילה להטביע.
מידע מועיל! על מנת שבורות ספיגה לבקתות קיץ יתחילו לעבוד ללא שאיבה, יש צורך בחיידקים להתיישב במיכל. לשם כך, תערובת מטופשת מוצגת. אתה יכול להשתמש בקפיר במקום.
המכשיר ועקרון הפעולה של המבנה
מפריד משמש לאיסוף שפכים. הוא מפריד בין רכיבים מוצקים לנוזליים. בתחתיתם מתמקמים חומרים כבדים, ועל פני השטח נוצר קרום.
בעזרת חיידקים מעבדים את השברים הצפופים מבחינה ביולוגית. במקרה זה נוצרים רכיבים גזיים הדורשים ניקוז. בור הספיגה הוא תעלה עם קרקע אדמה, בה מתחזקים הקירות בנוסף.
למבנה סימן הפעולה הבא: נוזלים עוברים לאט לאדמה. נפח החומר שעבר תלוי במידות עמוד המים.
אפשרויות מכשיר ללא שאיבה
מיכלי ספיגה לבית פרטי יכולים להיות בעיצובים שונים. במו ידיך, במקום באר פילטר, תוכל להתקין מערכת צינורות או תעלה עם סינון. בעזרת ציוד שונה ניתן להגדיל את התפוקה של מפעל הטיפול בשפכים.
לשיפור ביצועי המכשיר ניתן לבצע את השינויים הבאים:
- אם מותקנת משאבת ניקוז בחדר השני, ניתן להשתמש במים המצטברים קוֹנִיָה;
- שימוש במדחס להעברת אוויר דרך המפריד יסייע בשיפור פעילות החיידקים. זה יפחית את היווצרות הסחף;
- ניתן להניח את מיכל המסנן באבנים, ביניהן נוצרים חללים שבהם יעבור מים.
מאמר קשור:
מיכלי ספיגה לבקתות קיץ: מה עדיף? דוגמאות לסוגים שונים של מתקני טיפול, כמו גם טיפים שימושיים להתקנתם, נמצאים בפרסום נפרד בפורטל שלנו.
כיצד לבחור את המקום הנכון להצבת בור ספיגה
כדי ליצור מיכל ספיגה איכותי במו ידיך מבלי להזרים 10 שנים לבית וקוטג 'קיץ, עליך לבחור במקום הנכון. זה צריך להיות ממוקם עשרים מטרים מבאר שתייה ומטר ממעבר מי תהום.
יש להפנות מים ממנו מהיסוד. נפח המבנה יעלה על כמות המים הנצרכת שלוש פעמים, מכיוון שהנקזים חייבים להתיישב במיכל במשך כשלושה ימים.
אם לאתר יש שיפוע, יש למקם את המערכת מתחת למיקום הבניין הראשי.
מידע מועיל! המרחק המינימלי מהבניין לתחנה חייב להיות לפחות חמישה מטרים.
חישובי נפח ועומק המבנה העתידי
התקנת מערכות טיפול מתחילה בסימון מיקום המים. זה לוקח בחשבון את עומק ההקפאה של שכבת האדמה.על מנת שהמכשיר יעבוד באופן מלא, ניתן להשתמש בחומרים כמו שבבי פלסטיק קצף, חימר מורחב או פוליסטירן.
על תאי המבנה להיות בעלי נפח המחושב תוך התחשבות בכמות הביוב היומית. במקרה זה יש לקחת בחשבון את הנקודות הבאות:
- מספר התושבים;
- שימוש בציוד אינסטלציה;
- תכונות העבודה של מכשירי חשמל ביתיים;
- תכונות של מטלות הבית בבית ובאתר.
מידע מועיל! על פי SNiP, עם נפח ניקוז של עד 1 קוב ליום, נדרש מבנה עם תא אחד. אם המספר משתנה בין 1 ל -10, אז נבחר מבנה דו-קאמרי. שלושה חדרים משמשים לכמויות גדולות.
מחיר לבורות ספיגה לבית פרטי
מתקני טיהור רבים מוצעים על ידי יצרנים מקומיים. לא רק מכשירים יקרים מוצגים, אלא גם מיכלי ספיגה תקציביים לבית פרטי. המחיר תלוי במספר המצלמות והביצועים.
הטבלה מציגה את הדגמים המפורסמים ביותר:
| שֵׁם | פריקה נוזלית, l | מחיר ממוצע, שפשף. |
|---|---|---|
| טופאס 8 | 450 | 107 000 |
| אקו-גרנד 5 | 260 | 74 000 |
| יונילוס אסטרה 3 | 160 | 66 500 |
| להנביט | 250 | 26 900 |
| טֶרמִיט | 400 | 74 000 |
| טנק 1 | 600 | 35 000 |
| טרִיטוֹן | 500 | 48 000 |
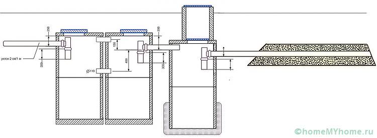
מכשיר ספיגה דייגי מטבעות בטון: תרשים ותכונות בנייה
אתה יכול ליצור בור ספיגה מטבעות בטון במו ידיך. התרשים מראה את התכונות של עיצוב זה.
טבעות בטון הן מהחומר הפופולרי ביותר להקמת מתקני טיהור שפכים. יתרונות העיצוב כוללים:
- מהירות עבודת ההתקנה;
- אטימות מעולה;
- חיי שירות ארוכים;
- כוח.
יש לבחור את קוטר המבנה תוך התחשבות בנפח. עם זאת, מצלמה אחת דורשת ארבע טבעות. החסרונות כוללים את הנפח המוגבל ואת עלות הבנייה הגבוהה.
לאחר יצירת בור היסוד, הבסיס מיוצר לתאי האחסון. אזור זה מוחזק. כרית אבן כתושה מיוצרת כדי לאבזר את הפילטר היטב. הטבעות מותקנות זו על גבי זו. צעד חשוב נחשב להובלת צינורות לבאר. במקרה זה, יש צורך לחשב נכון את זווית הנטייה והקוטר.
החדרים אטומים משני הצדדים. לשם כך משתמשים בחומרי סיכה ובטיט מלט.
בניית בטון מונוליטי
מתקני בטון מונוליטי נחשבים אמינים ועמידים. יש להם את היתרונות הבאים:
- חיי שירות ארוכים;
- פּרַקטִיוּת;
- תכונות איטום גבוהות;
- זמינות חומרים.
החסרונות של מבנים כאלה כוללים את הצורך להתקין מערכת חיזוק ורמת תפוקה נמוכה. בעת ביצוע בטון נדרשת הנחת רשת חיזוק. לנזקי קורוזיה יש צורך ליצור שכבת בטון באתר.
מידע מועיל! לפני התקנת התקנה כזו מבוצעת טפסות. כדי ליצור אותו, מגנים ו לוחות OSB... סוגים אלו של חומרים מאופיינים בעמידות לחות מוגברת ובעלות נמוכה.
יישום יורוקובס
אם יש לך חומרים מסוימים, אתה יכול ליצור טנק ספיגה טוב מיורוקוביות במו ידיך מבלי לשאוב.יורוקובים הם מיכלים מיוחדים העשויים מחומרי גלם פולימרים. בסיס בטון מיוצר בהכרח תחתיהם. זה ימנע את עקירת המערכת בהשפעת מי תהום.
יש לבודד את התקנת הפלסטיק לפני ההתקנה. ואז המבנה הוא בטון ומלא מים. צינורות אוורור מובאים אל פני השטח. זה משתמש בשדות סינון ובקלטות סינון.
מידע מועיל! לשיפור תהליך הניקוי, מומלצים תוספים ביולוגיים המגבירים את קצב פירוק החלקיקים.
איך משתמשים בחביות?
לעתים קרובות משתמשים בקנה לייצור בור ספיגה. עיצוב דומה עשוי מכמה חדרים. תהליך תנועת הנוזל מתבצע על ידי כוח הכבידה. לשם כך ההתקנה מתבצעת מתחת לצינורות המותקנים.
כדי להגדיל את המבנה, ניתן לבצע התקנת חבית שנייה. במהלך ההתקנה, יש צורך להקפיד על אטימות. למבנה זה יתרונות רבים. זהו טווח נרחב, עמידות בפני גורמים אגרסיביים וחיי שירות ארוכים.
מוצרי פלסטיק
התקנה קלה מחבית פלסטיק. זה לא דורש שום תחזוקה מיוחדת. אם הבניין משמש למגורים קבועים, אתה יכול להשתמש במיכל, מיכל שלם או קוביית פלסטיק.
מיכלי ספיגה לבקתות קיץ עם מי תהום ברמה גבוהה: תכונות התקנה
גישה מיוחדת מחייבת שימוש בבורות ספיגה עבור קוטג'ים עם רמת מי תהום גבוהה. יחד עם זאת, חשוב לחשוב על מערכת הטיפול בשפכים. לשם כך משתמשים במבנה אטום ואחסון. במקביל, המערכת מוגנת מפני חדירת נוזלים תת קרקעיים. אבל מבנה כזה דורש ניקוי קבוע עם ציוד מיוחד.
להתקנת מיכל אטום משתמשים בפלסטיק או בטון. עיצוב זה מחולק לתאים, שנועדו לספק ולסלק נוזלי פסולת.
מידע מועיל! אם המבנה מותקן ללא שאיבת הנוזל, מתבצע טיפול נוסף בשפכים. במקרה זה משתמשים בקלטות פילטר מיוחדות.
מאמר קשור:
בור ספיגה למעון קיץ עם GWL גבוה. חומר נפרד מספק מידע על בניית טנקים ספיגה עם כללי GWL, כללי התקנה ותפעול.
כיצד לבחור מיכל ספיגה לאזור עם מפלס מי תהום גבוה
בעת בחירת מיכל ספיגה לאתר עם מפלס מי תהום גבוה, עליך להיות מונחה על ידי המלצות מסוימות:
- נפח המערכת מחושב על פי קצב הטיפול במים מזוהמים;
- עדיף להשתמש בבטון או בחומרים פולימרים ליצירת מבנה;
- מבנים יעילים המותקנים אופקית ובעומקים רדודים;
- ניתן להשתמש במערכות מאולצות או מצטברות;
- מספר החדרים משפיע על תוצאת הניקיון.
מידע מועיל! לא כדאי לבנות בור ספיגה מצמיגים או לבנים. עם מיקום קרוב של מי תהום, כדאי לנטוש את השימוש בצינורות מחוררים.
מבחר העיצובים לבורות ספיגה מגוון. רבים מהם ניתנים ליצירה עצמאית מחומרי גרוטאות.
וידאו: מיכל ספיגה עשה זאת בעצמך
















































