חממה עשה זאת בעצמך למלפפונים: רעיונות לעיצובים מוכנים עם תמונות
לא כל אזור יכול להתהדר בתנאים מתאימים לגידול מלפפונים בשדה הפתוח מראשית האביב. למרכז רוסיה יש סיכוי נהדר לרסק מלפפונים ריחניים טריים הרבה לפני ימי הקיץ החמים. כדי לעשות זאת, אתה רק צריך לבנות חממה למלפפונים במו ידיך. תמונות יעזרו לך להחליט על בחירת הסידור, ועצת הסקירה של צוות המערכת של homebase.decorexpro.com/iw/ יעזור לך להימנע מטעויות נפוצות בעבודה על בניין.
תוכן המאמר
- 1 יתרונות וחסרונות של חממות מלפפון ביתיות
- 2 אפשרויות לחממות למלפפונים עם תמונות של עיצובים עשה זאת בעצמך
- 3 כיצד לבחור את החומר הנכון למסגרת ולנדן של חממה למלפפונים
- 4 מתי צריך בסיס לחממה?
- 5 היכן למקם חממה בקוטג 'קיץ
- 6 איך לעשות משעמם בארץ במו ידיך - הוראות כלליות
- 7 כיצד להכין חממה למלפפונים מקשתות עם ציפוי סרט במו ידיך
- 8 איך להכין בוראז 'מעץ ופוליקרבונט במו ידיך
- 9 איך להכין במו ידיכם חממה שקועה למלפפונים ממסגרות חלון ישנות
- 10 כללים להפעלת חממות למלפפונים
- 11 וידאו: עשה זאת בעצמך חממה
יתרונות וחסרונות של חממות מלפפון ביתיות
לכל מבנה היתרונות והחסרונות שלו. כדי להחליט איזו חממה לבנות, שקול את היתרונות והחסרונות של בניית חממה למלפפונים במו ידיך.
יתרונות:
- אתה יכול לבחור חומר בהתאם לרעיונות שלך לגבי הבניין העתידי;
- מידות המבנה העתידי יכולות להיות כל, בהתבסס על צרכיו של בעל האתר;
- הרבה יותר קל לפרק חממה העשויה במו ידיך עם תחילת העונה הקרה.
מינוסים:
- יהיה מהיר יותר לקנות חממה מוכנה מאשר לבנות אותה בעצמך, כי התהליך יכול לקחת הרבה זמן ומאמץ;
- אתה יכול לטעות בחישובים ולהוציא הרבה יותר על חומרים ממה שעולה חממה מוכנה למלפפונים.
אפשרויות לחממות למלפפונים עם תמונות של עיצובים עשה זאת בעצמך
בואו נסתכל באתרים של אחרים ונכיר סוגים שונים של עיצובי חממות למלפפונים, שהבעלים בנו בעצמם. אנו מציעים כמה תמונות של חממות בוראז ', שנעשו בעבודת יד.
בתמונה לעיל, גרסת תקציב של חממה, המורכבת מצינור קופסא ומצינורות מעוקלים.

חממה רחבת היקף עשויה זכוכית ועץ: לא ניתן לפרק בניין כזה עם תחילת החורף, אך הוא יימשך גם יותר מעונה אחת
הכל תלוי ברצון של בעל האתר ובאפשרויות השימוש בחומר זה או אחר.
מאמר קשור:
חממה עשה זאת בעצמך מצינור פרופיל. בסקירה נפרדת, הוראות מפורטות לתכנון ובנייה של מבנה מצינור פרופיל מובאות עם דוגמאות צילום.
כיצד לבחור את החומר הנכון למסגרת ולנדן של חממה למלפפונים
אם כל המבנים נחקרו, וסוג המבנה הרצוי נבחר, אז הגיע הזמן להחליט על החומר למסגרת ולנדן. בלוקים מעץ, לוחות, צינורות PVC, HDPE, צינורות צרים מפוליפרופילן מתאימים באופן מושלם למסגרת, פרופיל מתכת מגולוון המשמש לקיר גבס נוח לשימוש.
חומר החיפוי יכול להיות פוליאתילן, סרט שקוף מחוזק, ספנדבונד, לוטראסיל, פוליקרבונט וזכוכית. לכל חומר יש מאפיינים משלו: אם אתם מעדיפים לבנות חממה קבועה, עליכם לבחור בשילוב של מתכת, עץ, פוליקרבונט או זכוכית. עבור חממה עונתית, חומרים שקל יותר לעבוד איתם יעשו זאת.
מאמר קשור:
חממת DIY עשויה צינורות פלסטיק. סקירה נפרדת מספקת סקירה מפורטת על השימוש, התכנון וההתקנה של חממות צינורות PVC.
מתי צריך בסיס לחממה?
בסיס לא נדרש לבניינים עונתיים בקיץ, אך אם יש רצון לבנות חממה מוצקה ועמידה, בהחלט יהיה צורך בקרן עבורה. היסוד נחשב לערוב ליציבות ואמינות הבניין, ומגן עליו מפני עיוות בזמן תנועה קרקעית אפשרית.
עשה בסיס רצועה מחומר כזה: עץ, ישנים, בטון, הריסות. ל יסוד העמודים השתמש בבטון מזוין, לבנים, בלוקים, בר עץ, ערימות מתכת.
היכן למקם חממה בקוטג 'קיץ
מטרת החממה היא לייצר קציר ירקות מהיר ומרשים. לכן נדרש לבחור במקום הנכון להתקנת החממה. ראשית כל, לוקחים בחשבון את תאורת המקום, שמהלך השמש על פני השמים משמש לה נקודת התייחסות. מיקום מוצל יהיה מצער ביותר. הבניין מכוון, כמו מיטות בשדה הפתוח, לנקודות הקרדינליות, גם שושנת הרוח נלקחת בחשבון.
מלפפון הוא תרבות תובענית קלה, אך נותן עדיפות לקרני בוקר וערב. לכן החממה ממוקמת עם קצה לדרום ולצפון. רוח חזקה גם לא תרצה שוטים עדינים, ולכן עדיף לשים חממה בה הרוח לא משתוללת כל כך. אם יש שפלה באתר, אזי התקנת חממה לא יהיה הרעיון הטוב ביותר עקב הצפה באביב.אם יש מדרון דרומי או מזרחי, ניתן יהיה למקם את הבניין על כל אחר שאינו הצפוני.
עֵצָה! החממה צריכה להיות נגישה לכל תקשורת כדי להקל על העבודה שלך.
איך לעשות משעמם בארץ במו ידיך - הוראות כלליות
על מנת לדעת כיצד להכין כראוי חממה למלפפונים, עליך לפעול על פי התוכנית:
- המקום הראשון יהיה הדמיה, רצוי בצורה של רישום עם כל הסימונים.
- בהתאם לסוג הבנייה שנבחר, נבחרים חומרים וכלים. כדי לעבוד עם עץ תצטרך מטחנה ודיסקים, מקדחה, ברגים הקשה עצמית, פטיש. יש לחתוך ולהלחין את פרופיל המתכת, כך שתצטרך מכונת ריתוך, אלקטרודות, צינורות PVC למסגרת, מלחם צינורות ואביזרים תואמים לחיבור, סרט אלומיניום מחורר.
- חומר כיסוי יכול להיות זכוכית, פוליקרבונט, פילם ואפילו בקבוקי פלסטיק. עבור הסרט תצטרך מספריים, עבור זכוכית, בהתאמה, חותך זכוכית.
- לאחר מוכנות הציורים ומערכת חומרי בנייה וכלים, תוכלו להתחיל לבנות את המבנה.
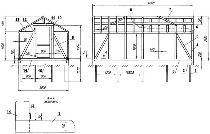
בתמונה למטה יש כמה דיאגרמות משוערות של חממות למלפפונים עשה זאת בעצמך:
מאמר קשור:
חממת פוליקרבונט DIY. רישומים, סוגי מבנים, בנייה שלב אחר שלב, ייעוץ והמלצות של מומחים ועוד ועוד בפרסום נפרד של הפורטל שלנו.
כיצד להכין חממה למלפפונים מקשתות עם ציפוי סרט במו ידיך
קשת חממה עם קשתות - המנהיג בין חממות ביתיות. הקולקציה אורכת שעות ספורות בלבד, והמבנה פורק במהירות גם בסתיו ונשמר לאחסון עד העונה הבאה.
לצורך ביסוס החממה תזדקק לקופסת קרשים. רוחב הלוח הנוח הוא 15-20 ס"מ. כל העץ מטופל בחומר חיטוי. להרכבת הקופסה נרכשים פינות ברזל וברגים הקשה עצמית. עבור המסגרת, השתמש בצינורות PVC Ø20-25 מ"מ. חוט צפוף ישמש עניבה. נותר להכין את חומר הכיסוי שנבחר.
עֵצָה! הכן צינורות של 3-6 מטר.
הכנת הבסיס
הבסיס עשוי בצורה של קופסה - זה גם הידוק המבנה כולו, וגם שמירה על אדמה פורייה בתוך החממה. עדיף לבנות בסיס ממוט עץ עם חתך של 10 × 10 ס"מ לפחות, אם כי רק לוחות רחבים יעשו זאת. חומר הבניין מנוסר על פי מידות השרטוט וההוראות, מחובר בפינות וברגים הקשה עצמית.
עֵצָה! אם אין רצון או הזדמנות להתעסק עם העץ, אזי החלקים המוחדרים אנכית של הצפחה, שגם ימנעו את שטיפת האדמה מהחממה, יעשו זאת.
התקנה וחיבור קשתות עם עניבות
ברגע שתיבת המיני-חממה למלפפונים מוכנה, הם עוברים לסידור הקשתות. הם צריכים להיות ממוקמים לא יותר ממטר אחד מהשני. כדי שהקשתות לא יתנודדו, 2-3 משטחים נעשים לאורכם לכל אורך החממה. הקשתות מוחדרות ישירות לקרקע או מחוברות לקופסת עץ. יש לחתוך את האביזרים במטחנה לחתיכות של 50-60 ס"מ, ואת הצינורות ניתן לחתוך לחתיכות של 3 מטר: עם אורך קשת כזה גובה החממה יהיה שווה למטר אחד.
על הקרקע במקומות המסומנים, גזירי חיזוק מונעים עם פטיש או פטיש לעומק של 25 ס"מ.
חָשׁוּב! האבזור חייב להיות באותה הרמה מכל צד!
ניתן לכופף את הצינורות בקלות ולהחדירם לאבזור ליד הקרקע. כדי לאבטח את המבנה באיכות גבוהה, השתמש בקלטת מחוררת. הקשתות עשויות להיות מוטות מעט, אך כדי לתקן את הפגם הזמני הזה, קשירה עשויה מכמה צינורות ארוכים, המחוברים לקשתות באמצעות חוט.
צריך לסגור את החממה מהקצוות, כל חומר מתאים: גם פילם וגם פוליקרבונט, או שאתה פשוט יכול לשלוף את קצוות הסרט ולקבע אותם יחד.
הידוק הסרט
הסרט נלקח מחישוב אורך הצינורות. אם אורך החממה הוא 3 מטרים, אז רוחב חומר הכיסוי לא צריך להיות פחות מ -4 מטרים, מכיוון שיש לקבע את הסרט מלמטה. אורך החומר ייקח 7 מטרים.
הסרט נחתך באורך של 2.5-3 מטר, השרוול נחתך והבד מיושר. הבד מקשה אחת מונח על הקשתות מלמעלה ומיישר לאורך כל הקצוות. כעת עליך לתקן את הסרט בכל דרך שהיא.
עֵצָה! הקובץ המצורף הטוב ביותר במקרה זה יהיה 10-15 ס"מ צינור גינה, חתוך לאורך.
מאמר קשור:
חממת DIY העשויה מחומרי גרוטאות. מאפיינים מבניים, שימוש בחומרים שונים ליצירת מסגרת נושאת עומס וחיפוי איכותי, הוראות התקנה שלב אחר שלב עם הכללים לבחירת מקום מתאים על הקרקע נמצאים בפרסום שלנו.
איך להכין בוראז 'מעץ ופוליקרבונט במו ידיך
חממות מלפפון פוליקרבונט פופולריות מאוד. השימוש בחומר סינתטי נמשך למעלה מ- 40 שנה בגננות ובחקלאות. התמונה למטה מציגה משעמם פוליקרבונט אסתטי.
המצאה ישראלית עם שקיפות של 80-85% הפכה לפופולרית לא רק בזכות האסתטיקה החיצונית והמראה המסודר שלה, אלא גם במאפיינים כמו עמידות לתופעות טבע כמו ברד, רוח, גשם, שלג ומקדם העברת החום המינימלי. ניתן לקנות חממה מפוליקרבונט למלפפונים מוכנים או להכין בעצמכם.
הרכבה, התקנה ועיבוד של המסגרת
כדי להשיג תוצאה מצוינת, עליך לשים לב להמלצות להרכבה והתקנת המסגרת. מומלץ להשתמש ביריעות חלת דבש פוליקרבונט בעובי של 4-6 מ"מ. פוליקרבונט הוא חומר שאינו מאפשר לעבור אוויר, ולכן גם בשלב השרטוט נפתרת בעיית האוורור, כמו גם גישה למים לחממה.
קל לעבוד עם חומר כמו פוליקרבונט - אפשר להשתמש בסכין חדה רגילה לחיתוך. אם משתמשים בחומר במשורה, יהיה פחות בזבוז. הכלים והחומרים הבאים שימושיים לבנייה:
- פרופילי מתכת או מוטות עץ משמשים כמסגרת;
- יריעות פוליקרבונט;
- סרט צילום;
- מברג עם ברגים הקשה עצמית.
עֵצָה! חשוב לטפל במוצרי עץ או מתכת: עץ עם חומר חיטוי, ומתכת עם חומר נגד קורוזיה.
הרכבת חממות פוליקרבונט עשה זאת בעצמך למלפפונים נראית כך:
- הנחת יסוד מורכבת מחפירת תעלה בעומק 0.5 מ 'ורוחבה 2 מ'. אורך התעלה זהה לאורך החממה.
- התעלה מכוסה בחול וחצץ, ומעליה מניחים שכבה של 25-30 ס"מ אדמה.
- שכבת הבידוד מורכבת מנייר כסף.
- בסיס העץ תואם את גודל הבסיס. הבסיס קבוע.
- לאחר מכן, המדפים מותקנים בצעד של 1 מ ', המחוברים לבסיס.
מעטפת המסגרת בפוליקרבונט
השלב האחרון הוא הצמדת הפוליקרבונט. בשל שבריריות החומר, יש להניח מנקי מתכת מתחת לברגים.
ראשית, הם סוגרים את קצוות החממה ויוצרים דלת. ואז הם מתחילים להניח ולצרף את הסדינים מכל צד של החממה.מלאכת הכנת החממה של בורגול פוליקרבונט אינה קשה וכמעט ולא תימשך יום אחד במיוחד אם ישנם עוזרים.
איך להכין במו ידיכם חממה שקועה למלפפונים ממסגרות חלון ישנות
לא כולם מכירים חממה קבורה לגידול מלפפונים. זו חממה קלה לשימוש המאפשרת לך לרצות עם הקציר המוקדם ביותר.הגודל הקטן אינו מאפשר גידול יבולים בקנה מידה תעשייתי, ובתוכו צפוף למדי. אבל התשואה הגבוהה של המלפפונים הפריכים הראשונים שווה את זה.
הנה מה שאתה צריך: קורת עץ, פוליקרבונט או מסגרת עם זכוכית, כבול, קש, חומר אורגני.
חפירה ומילוי התעלה בדלק ביולוגי
לאחר שהשלג נמס, תוכלו להתחיל לחפור תעלה. העומק יכול להיות 50-60 ס"מ, רוחב - 80-100 ס"מ. האורך נבחר על ידי בעל האתר. אם האדמה חולית, רצוי לחזק את התעלה באמצעות לוחות.
חומר אורגני פשוט מונח בתעלה: זבל, נסורת, קש והשכבה מהודקת. הכל מכוסה באדמה פורייה של לפחות 25 ס"מ. ואז מפוזרים קש על גבי בידוד תרמי ומלט.
ייצור ארגז והנחת מסגרות חלונות
הקופסה עשויה מחומרים מוצקים בהישג יד. כדי להתחמם, חשוב לפזר את הקיר החיצוני בכבול או בחבילות קש דחוס. זה יספק תמיכה נוספת למסגרות. מסגרות חלון ישנות עם זכוכית מונחות פשוט על גבי החממה.
חימום המיטות עם דליפת מים חמים
בתחילת האביב נדרש לחמם את האדמה. לשם כך עליך לשפוך את האדמה במים חמים, לכסות את הרכס בנייר כסף ולסגור את כל המסגרות. לאחר 2-3 שבועות תתרחש תגובה בין אדמת החימום לזבל חם: האדמה והאוויר יתחממו.
תשומת הלב! עבור חממה מוקדמת שכזו, עליכם לבחור את זרעי הזנים וההיברידים המאביקים בעצמם.
החממה משמשת באופן פעיל עד כפור.
כללים להפעלת חממות למלפפונים
אם החממה מכוסה בסרט, יש להסיר אותה ולנקות אותה בחורף, אך הטיפול בפוליקרבונט יהיה רציני יותר:
- לא לשריפה ליד החממה;
- ללא חומרי ניקוי שוחקים - מספיק לנגב את הפוליקרבונט במים ובסבון רגיל;
- בחורף עדיף להסיר את יריעות הפוליקרבונט ולאחסן אותם בתוך הבית.
דיברנו על דרכים פשוטות לבניית חממות גדולות וקטנות עשויות פוליקרבונט וחומרים אחרים לגידול מלפפונים. הדבר היחיד שנותר הוא להכין חממה. אנו מקווים שהסרטון הזה יעזור לך.












































