עיצוב פנים של מטבח קטן: תמונות של דוגמאות מוצלחות עם המלצות שימושיות
עיצוב הפנים של מטבח קטן בתצלום במגזין, למרות שהוא נראה מרשים מאוד, בפועל עבור מתחילים רבים יכול להיות משימה מוחצת. כיום, מערכת מערכת homebase.decorexpro.com/iw/ תציג המלצות כיצד ליישם את פרויקט העיצוב הרצוי ללא הוצאות ועצבים עצומים. בעזרת פרסום זה תוכלו ללמוד כיצד להעריך בצורה נבונה את יכולותיכם בעבודה על שיפור שטח המטבח. תלמד כיצד לסדר כראוי רהיטים, לארגן אזור כביסה וסינר, לסדר את התקרה והרצפה ולבצע גימור וקישוט. בואו נתעכב גם על פרויקטים בגודל קטן ועיצוב דירות סטודיו.
תוכן המאמר
- 1 תכנון ועיצוב פנים של מטבח קטן עם דוגמאות לצילום
- 2 חומרי גימור לקישוט מטבח קטן
- 3 ריהוט למטבח קטן עם דוגמאות לצילום
- 4 תאורה בחלק הפנימי של מטבח קטן
- 5 טקסטיל ועיצוב למטבח קטן ונעים
- 6 ציוד טכני
- 7 כיצד לשלב מטבח קטן עם חדרים אחרים
- 8 רעיונות מודרניים לשנת 2018 לעיצוב מטבח קטן עם תמונה של חללי פנים
- 9 סקירת באגים ועזרה נוספת
- 10 וידאו: דוגמאות לתכנון אובייקטים שונים של נדל"ן בשטח קטן
תכנון ועיצוב פנים של מטבח קטן עם דוגמאות לצילום
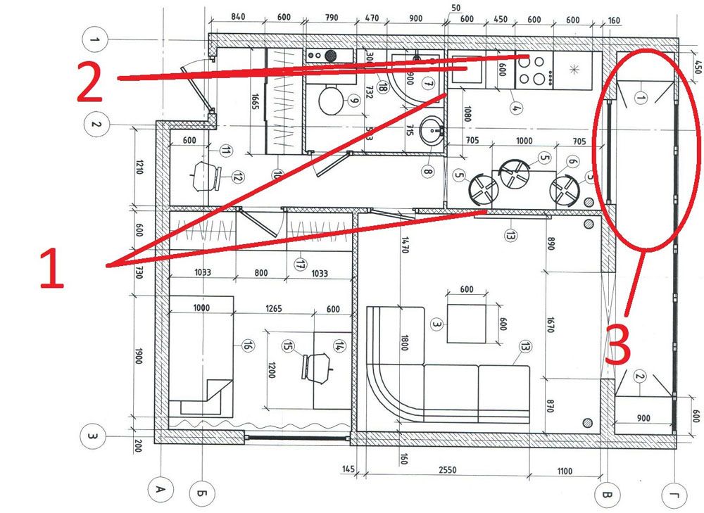
הדבר הקשה ביותר הוא לשנות את הדרך בה אתה רגיל ואת השקפותיך על המטבח. במיוחד כשקיר נושא עומד בפני רעיונות עיצוב. בנוסף, לעיתים קרובות קשה לבצע שינויים בעיצוב יחידות החלונות והדלתות. צורת השטח וגובה התקרות הם בעלי חשיבות מכרעת. לכן, יש להתחיל בעבודה על ידי לימוד הניואנסים האפשריים של פיתוח מחדש.הדבר הראשון שצריך לעשות הוא לפתוח את תעודת הרישום של המקום ולהבין איזה פרויקט אתה צריך לחפש מידע עליו. בנוסף, המסמך יפשט את העבודה על מדידת החדר.
פרטים חשובים מסומנים בתרשים:
- קירות אלה (1) אינם קבועים. לכן, ניתן להזיז מחיצות, להרחיב את הקטעים.
- יש צורך לקבוע את הרכב הפרמטרים של הציוד הטכני חובה למשתמשים עתידיים (2).
- חל איסור לשנות את גודל החלונות בבניינים רבי קומות. עם זאת, יהיה שימושי להרחיב את אזור המגורים בעזרת זיגוג ובידוד של המרפסת / אכסדרה (3).
הערה! שים לב לתרשים השירות. צינורות אוורור וכמה רכיבים אחרים יכולים להשפיע משמעותית על העיצוב והסידור של מטבח קטן.
אתה יכול לנסות ליצור מודלים כאלה בעצמך, או להדריך איש מקצוע. בהיעדר ניסיון ורצון לחסוך כסף, אתה יכול לעשות פריסת החדר מקרטון בהתאם לפרופורציות ולגדלים האמיתיים. אל תשכח לגזור את קווי המתאר של רהיטי הארון מנייר עבה, שולחנות וכיסאות, מכשירי חשמל ביתיים גדולים. נסה את התבנית המתקבלת בחדר אמיתי, וקבל מושג כיצד ייראה המטבח שלך לאחר שיפוץ ושיפוץ.
ערכו רשימה של מטבח בסיסי ומכשירי חשמל נוספים. בדקו את דרישות המארחת לארגון חלל העבודה, לאחסון כלים ומזון. כמובן שאסור לנו לשכוח מהעדפות סגנון.
מטבח מרובע
באפשרות זו, מותר להשתמש באפשרויות שונות לסידור רהיטי ארון, שכן ההנחה היא שהמרחק בין הקירות שווה בערך. בכל מקרה, אל תשכחו מהשטח שתופסים דלתות הדלתות הפותחות.
מטבח מלבני צר
בחדרים כאלה מותקנים ריהוט ארונות יחד עם מכשירי חשמל ביתיים גדולים לאורך קיר אחד. להפך, אם יש מספיק מקום, מקום שולחן קומפקטי... במקום זאת ספות, השתמש בכיסאות שניתן להסיר במהירות מהמעבר במידת הצורך.
תכונות של ערכות צבעים שונות
בחדר קטן יחסית ניתן לא לכלול מצבים הגורמים להתקפי קלסטרופוביה. כדי להרחיב חזותית את החלל משתמשים בגימורים לבנים, בז 'ושאר אור. קווים אנכיים "מגדילים" את גובה התקרות. אופקי - "הפוך" את החדר לרחב יותר.
חומרי גימור לקישוט מטבח קטן
שקול את המידע הנ"ל בעת פיתוח תכנון פרויקט מטבח קטן. תן עדיפות לצבעים בהירים. שים לב לאוורור תכוף, לשינויים מהירים בטמפרטורה ולחות. בחדר זה הכוונה לשימוש אינטנסיבי, ולכן המשטחים המקבילים חייבים להיות בעלי עמידות בפני שחיקה גבוהה. תחזוקה פשוטה תועיל ותשמר את המראה לאחר מחזורי ניקוי רבים.
רצפה ותקרה
מעשי לא יקר רַצָפוּת יכול להיות עשוי אריחי קרמיקה. הם בוחרים במוצרים מיוחדים שלא הופכים חלקלקים מדי כאשר הם פוגעים על פני המים. כדי לשמור על האקלים הפנימי הנדרש, משתמשים ברצפות חשמליות או במים. בעת התקנת מערכת חזקה מספיק, אתה יכול לפרק את הרדיאטורים הסטנדרטיים, ובכך לפנות מקום נוסף.
לוחות, פרקט ולמינציה משמש לעתים רחוקות יותר. משטחים כאלה הופכים במהירות לשימוש בלתי אפשרי בתנאים קשים. בבחירת חומרים כאלה הם רוכשים שינויים עם שכבות הגנה מחוזקות, הספגה עמוקה מפני ריקבון.
הדוגמה בתמונה מדגימה את היתרונות האסתטיים של טכנולוגיות בנייה חדשות בעת עיצוב מטבח קטן. יש לציין גם:
- אפשרות התקנה על בסיס כלשהו;
- עובי קטן;
- עמידות לתרכובות אלקליין, חומציות ואגרסיביות אחרות;
- קלילות וגמישות, תכונות נגד החלקה של רצפות עם תוספי פוליאוריטן;
- עמידות וחוזק של משטחים שנוצרו על בסיס שרף אפוקסי.
בתערובות בנייה כאלה לגימור, אין רכיבים המזיקים לבריאות וגורמים לתגובות אלרגיות. היעדר תפרים טכנולוגיים מפשט את התחזוקה, מספק הגנה מפני לחות. על התקרה, עדיף להשתמש בצבע רחיץ המיושם על היישור מֶרֶק משטח רצפה מבטון. לחלופין, אם יש גובה מספיק, התקן מבנה תלוי קיר גבס. קבל לוחות מיוחדים המיועדים לחדרים עם רמות לחות גבוהות.
סיד זול מתכהה עם הזמן, ולכן לא מומלץ להשתמש בו. קשה לנקות תקרות מתיחה אופנתיות. טפט על בסיס נייר רגיל סופג לחות, ריחות ולכלוך היטב.
קיר וסינר
לקישוט הקירות נבחרים חומרים תוך התחשבות בתכונות הנ"ל. צבע עמיד במים שאינו משאיר סימנים בבגדים מתאים. טפט נבחר על ויניל או בסיס לא ארוג... ניתן לנקות דגמים מסוימים בעזרת מברשות ופתרונות סבון. כמובן, מוצרים כאלה הם יקרים יותר לעומת טפט סטנדרטי.
יש לשים לב במיוחד לגימור סינר... בתחום זה מבוצעות פעולות טכנולוגיות מורכבות. יש לקחת בחשבון את העוצמה המוגברת של השפעות חיצוניות שליליות, נוכחות של שומנים, צבעי מאכל.
מאמר קשור:
האפשרות הטובה ביותר לקישוט אזור הבישול היאסינרים למטבח - skinaliשתמונותיהם מוצגות בסקירתנו. מדוע הם זכו לפופולריות כזו קראו הלאה.
ריהוט למטבח קטן עם דוגמאות לצילום
כאשר בוחנים רכיבים פנים אלה, שקול אסתטיקה בשילוב עם פונקציונליות. גישה זו תמנע טעויות בבחירת מוצרים מתאימים במגוון הרחב של הקמעונאים המודרניים. שימו לב להמלצות היצרן לטיפול נכון, חובות אחריות רשמיות.
ריהוט ארונות ומערכות אחסון
אם תבחר בסדר ארונות בצורת U וליצור שני קווים בצד אחד, תוכל להקטין את רוחב האוזניות. חברות ייצור מציעות שינויים ממדיים בטווח עיצוב ספציפי בתשלום סביר. הדוגמאות הבאות בתצלום יסייעו בשמירה על עיצוב נאה ויספקו רמת נוחות גבוהה במטבח קטן מאוד.

במטבחים קומפקטיים מותקנים ארונות לגובה הקירות עד לתקרה. יתרון נוסף הוא ביטול החריצים העליונים, "מצברי אבק"

מדפים פתוחים קומפקטיים, במקום ארונות קיר גדולים, הם רעיונות טובים בתמונה ליצירת עיצוב הרמוני של מטבח קטן בדירה
מאמר קשור:
ערכות מטבח: תמונה עם דוגמאות לפתרונות סגנון שונים, בחירת חומרים לחזית ולמשטחים, מידות, שימוש בתצורה מתאימה של רהיטים, תוך התחשבות במאפייני החדר ודרישות המשתמש, סקירה כללית של יצרנים מתמחים והצעות השוק הנוכחיות - בפרסום שלנו.
אזור ארוחת הערב
אם אפשר, עדיף להעביר אזור פונקציונלי זה לחדר אחר. המטבח ישמש אך ורק לפעולות קולינריות, לאחסון כלים ומזון. עם זאת, בפועל, לעתים קרובות אתה צריך ליישם פתרונות אחרים.

ריהוט קומפקטי מיוחד. ניתן להרחיב את שולחן השולחן במודל זה. הרגל מורחבת עם שינוי זה כדי ליצור תמיכה נוספת.
שימו לב להשעיה המקורית, המספקת אחסון נוח של רהיטים. ראש השולחן מורם ומקובע במצב זה בעזרת מכשיר מיוחד. התמיכה מופנית הצידה.
מאמר קשור:
פינת מטבח למטבח קטן. תכונות, סוגים, יתרונות, קריטריונים לבחירה, גדלים, ייצור DIY, סקירה של דגמים פופולריים, טיפים וטריקים שימושיים - בפרסום שלנו.
תכנון מטבח פינתי קטן עם בר חצי אי
תוספת זו משמשת במקום שולחן האוכל המסורתי. זה יועיל לארוחות בוקר מהירות, חטיפי לילה. כסאות גבוהים תופסים מקום קטן.
תאורה בחלק הפנימי של מטבח קטן
מכשירי LED משמשים לעתים קרובות לאבזור חדרים אלה כיום. מנורות כאלה צורכות מינימום חשמל עם ביצועים טכניים מצוינים. הם שומרים על הפונקציונליות שלהם לאורך זמן בתנאי הפעלה קשים. הגודל הקומפקטי מאפשר לך לבחור מיקומי הרכבה מתאימים ללא הגבלות משמעותיות.
הערה! מנורות ליבון קלאסיות מבזבזות אנרגיה רבה על חימום חסר תועלת של האווירה. התקנים להזרמת גז חסכוניים מכילים חומרים רעילים בזרחן. לאחר השמדת הבקבוקון יש צורך בניקוי יסודי של חדרי המגורים.
טקסטיל ועיצוב למטבח קטן ונעים
לריפוד מושבים רכים נבחר עור מלאכותי שהוא זול, נקי בקלות מלכלוך. עדיף לרכוש חומרי בד לרהיטים ולווילונות עם תנומה קטנה. הספגות מיוחדות במפעל ותוספת סיבים סינטטיים מגבירות את עמידותן של מוצרים כאלה ללבוש.

המוצרים בקטגוריה זו נבחרים בצבעים בהירים עם דוגמאות קטנות ובינוניות, ללא פרטים גדולים ואקספרסיביים מדי.

ניתן להוסיף ריהוט מעשי עם ריפודי עור אקולוגי עם תריסים רומאיים, תריסים ועיצובים קומפקטיים אחרים לקישוט פתח חלון.
ציוד טכני
היצרנים מציעים דגמים רבים של מכשירי חשמל ביתיים שלמרות גודלם הקטן ממלאים את תפקידם באופן מלא. כדי לייעל את אפשרויות הקניות שלך, עליך להעריך באופן מציאותי את הדרישות שלך.

אם בכוונתכם לחמם רק כלים מוכנים מהבישול, במקום תנור מגושם, תוכלו להתקין מיקרוגל קומפקטי קל במקום מתאים.
כיצד לשלב מטבח קטן עם חדרים אחרים
יצירת חלל יחיד מותרת אם החדרים מופרדים על ידי מחיצות קלות. הם גם מרחיבים את אזור המגורים על ידי מרפסות, טרסות, אכסניות. הנחות חדשות מצוידות בחלונות סטנדרטיים מרובי חדרים ומכשירי חימום. ההשקעה הכוללת בפרויקטים כאלה יכולה להיות משמעותית. עם זאת, זה זול יותר מאשר לקנות דירה גדולה.
רעיונות מודרניים לשנת 2018 לעיצוב מטבח קטן עם תמונה של חללי פנים
הקפדה על הגבלות סגנון חשובה ביותר עבור חללים קטנים. אפילו סתירות קטנות נראות במרחק קצר. המידע שלהלן יעזור לך להימנע מטעויות בבניית ותיקון מטבח קטן. לתמונות משלימים טיפים מועילים לעיצוב.

תכנון מטבחים קטנים בגודל קטן בסגנון קלאסי עם דוגמאות צילום
בבחירת כיוון זה, הימנע מיומרות יתר. זכרו כי סביר להניח שסגנון האימפריה המפואר אינו מתאים בחלקו הפנימי של מטבח קטן בשטח של 6 מ"ר.
תכנון מטבח קטן בחרושצ'וב בסגנון מינימליזם, הייטק ולופט
אזורים אלה מאופיינים במספר מצומצם של אלמנטים מורכבים. הרעיונות המוצגים בתמונה מתאימים ליצירת עיצוב יפה ונוח של מטבח קטן בן 6-8 מ"ר.
מאמר קשור:
סגנון לופט - מה זה. בסקירה, נשקול ביתר פירוט את תכונות הפנים בסגנון זה, כיצד ליצור אותו ובאילו חומרים עדיף להשתמש, כמו גם להעריך תמונות של דירות הסטודיו או דירות הלופט הטובות ביותר.
תכנון מטבח קטן בדירה - בסגנון פרובנס, דוגמאות לצילום
צבעי פסטל ו תמונות עם מניעים טבעיים יוצרים תחושה של נוחות וחום. כדי ליצור אווירה זו, השתמש בהעדפות של מחוז צרפתי קלאסי.
מאמר קשור:
מטבח בסגנון פרובנס. הפרמטרים העיקריים, בחירת הצבעים עם דוגמאות לפרויקטים שהושלמו, הגדרת חומרי הגמר, ניסוח קריטריונים למציאת רהיטים, מנורות, ציוד טכני, אביזרים דקורטיביים ופונקציונליים - בפרסום שלנו.
סקירת באגים ועזרה נוספת
הדוגמאות הבאות מדגימות החלטות עיצוב שנויות במחלוקת ושגויות. מידע זה יעזור לך לבטל טעויות ביישום הרעיונות שלך ושל אחרים.
עיין בתמונה בקפידה. משטח אידיאלי המותקן בקרבת מקום כיורים, יהיה צריך לנקות מלכלוך כל יום.הסרת כתמים שומניים קשים היא תענוג מיוחד.
דלתות להגדיר כך שהאבנט ייפתח כלפי חוץ. פיתרון נוסף לחיסכון במקום הוא בד הזזה צד.
במטבחים קטנים, בגוונים כהים קודרים, אין להשתמש ברהיטים כבדים מאסיביים. עדיף לא להשתמש בווילונות מורכבים ובווילונות המורכבים מכמה בדים. קווים ודפוסים אנכיים יכולים "להרים" את התקרה. אך במקביל ייווצר רושם של שטח מצומצם.
תמונות ותיאורים של טכניקות עיצוב שונות בפרסום זה יסייעו בקביעת השלבים העיקריים בעיצוב פנים המטבח הקטן. למידע נוסף, שאל שאלות בתגובות.




































































