תרשים אספקת חשמל בקו יחיד - מטרה וסוגים
בהתאם ל"כללים להפעלה טכנית של מתקנים חשמליים של צרכנים ", תרשים אספקת חשמל בקו אחד הוא אחד מסוגי התיעוד המבצעת, אשר חייב להיות זמין מארגון ומאדם פרטי המפעיל רשתות חשמל וציוד ללא כשל. במאמר זה של מהדורת homebase.decorexpro.com/iw/ נתאר בפירוט מהי תוכנית כזו, מה עליה לכלול, כמו גם את הכללים לעיצוב שלה בהתאם לכל מסמכי הרגולציה.
תוכן המאמר
מהי תרשים אספקת חשמל בקו אחד ולמה יש צורך בכך
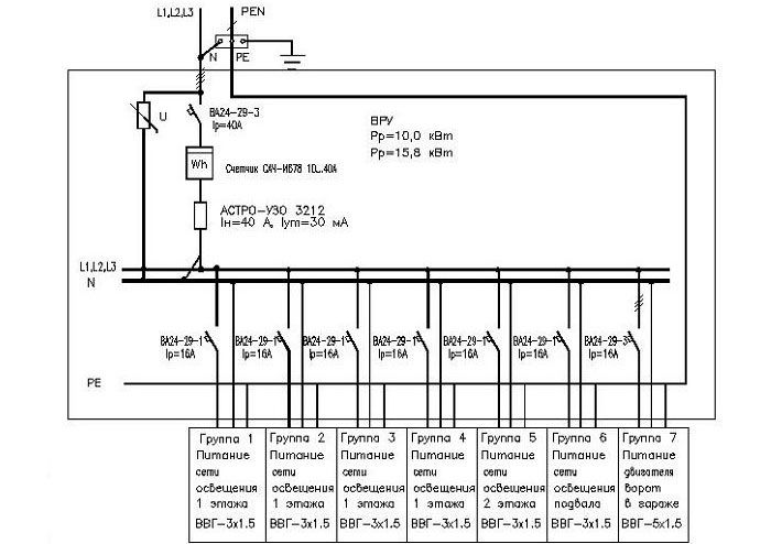
תרשים אספקת חשמל בקו יחיד הוא מסמך טכני המציג את כל מרכיבי רשת החשמל של המתקן, המציין את מאפייניהם ואת הפרמטרים שלהם, כמו גם את הקיבולת המותקנת ומחושבת של המתקן כולו. פירוש המושג "קו יחיד" הוא שכל חיבורי החשמל הקיימים על האובייקט, ללא קשר לשלב שלהם, מוצגים בתרשים כקו אחד. הכללים לעיצוב דיאגרמות בשורה אחת מוסדרים על ידי GOST 2.702-2011 "מערכת אחידה לתיעוד תכנון (ESKD). כללים ליישום מעגלים חשמליים ". מטרתו העיקרית של תיעוד בכיר זה היא לספק מידע ותפיסה חזותית של תצורת רשת החשמל של המתקן, הנחוצה לקבלת החלטות במהלך הפעלת משק האנרגיה.
סוגי מעגלים חשמליים בקו אחד
בהתאם לשלב שבו מתבצעת עבודה על יצירת רשת החשמל של האובייקט תרשים קו אחד, סוגו ומטרתו המיועדת תלויים.בשלב פיתוח תיעוד הפרויקט, מתווה דיאגרמת חישוב בשורה אחת המשמשת כמסמך הראשי לחישוב הפרמטרים של מערכת אספקת החשמל. מסמך זה הוא הכרחי לאישורים הבאים עם הרשויות המנפיקות תנאים טכניים לחיבור אובייקט הבנייה לרשתות החשמל הקיימות, שהן ארגוני רשת החשמל במקום הצרכן במתקן של אנרגיה חשמלית.
הערה! הנוהל לקבלת מפרט טכני לחיבור לרשתות חשמל מוסדר על ידי מספר מסמכים. ביניהם: צו ממשלת הפדרציה הרוסית מס '861 מיום 27 בדצמבר 2004 "על אישור הכללים לגישה בלתי מפלה לשירותים להעברת אנרגיה חשמלית ולמתן שירותים אלה", "כללים לגישה בלתי מפלה לשירותים לבקרת משלוחים תפעוליים בתעשיית החשמל ולמתן שירותים אלה", " מכללי הגישה הבלתי מפלה לשירותי מנהל מערכת הסחר בשוק הסיטונאי ואספקת שירותים אלה, וכן "הכללים לחיבור טכנולוגי של מקבלי חשמל של צרכני אנרגיה חשמלית, מתקנים לייצור אנרגיה חשמלית, וכן מתקני רשת חשמל השייכים לארגוני רשת ואנשים אחרים לחשמל. רשתות ". יש לקחת בחשבון את כל מסמכי הרגולציה בעת פיתוח תיעוד ללא כישלון.
בשלב ההפעלה של המתקן, נערכות דיאגרמות מנהלים בשורה אחת, המציגות את כל השינויים שנעשו בתצורת רשת החשמל במהלך השימוש בה. זה יכול להיות בגלל המודרניזציה של הציוד המשמש או החלפתו, תוספת של יכולות חדשות או שינוי בתצורת קווי תא המטען והקבוצה. במתקנים גדולים, שבהם מערכת אספקת החשמל מחולקת למספר מפלסים, משורטטים דיאגרמות של שורה אחת לכל קבוצת צרכנים: "המתקן בכללותו - בית מלאכה - אתר" וכו ' בתחילה, נעשה ציור המציג את תחנות המשנה (TP) ואת תצורת הרשתות המאחדות אותן, ואז את התרשים של TP או MSB (מרכזייה ראשית) ואז - כל לוח חשמל או לוח תאורה זמין במתקן.
הערה! במתקנים של צורות בעלות שונות האחראי על תחום האנרגיה אחראי על שמירת התיעוד הטכני ועמידתו בדרישות (PTEEP, פרק 1.2 "חובות, אחריות הצרכנים לעמידה בכללים").
על בסיס אלה של קו אחד, מתפתחים מעגלים חשמליים אחרים של מערכת אספקת החשמל: מבניים ופונקציונליים, עקרוניים והתקנתיים.
עקרונות תכנון לתרשים אספקת חשמל בקו אחד
בעת פיתוח ועריכת תיעוד בנוי, יש לעמוד בדרישות למסמכים דומים המשתקפים בספרות הרגולטורית, כמו גם ב- PTEEP ו- PUE ("כללי התקנת חשמל").
מה צריך לכלול תרשים אספקת חשמל בקו אחד
המידע הבא צריך לבוא לידי ביטוי בתרשימים של ספק כוח יחיד, כלומר:
- גבול אזור האחריות של הארגון המספק אנרגיה חשמלית וצרכניו;
הערה! גבול תחום האחריות מוצג בחוזה לאספקת החשמל של אובייקט ספציפי.
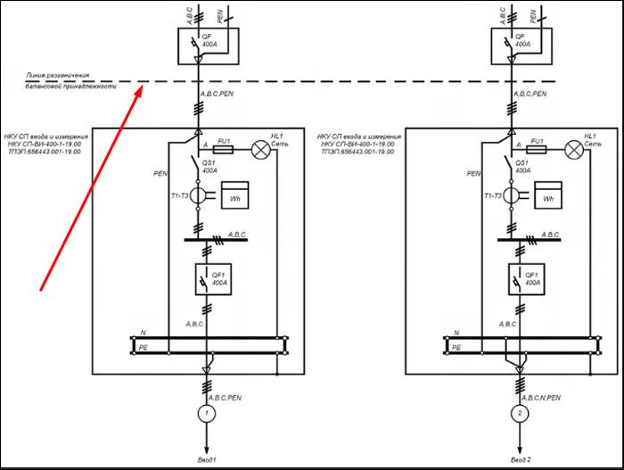
- התקני חלוקת קלט (ASU) או מרכזייה ראשית, כמו גם תחנות שנאי במאזן הצרכן עם תצוגת התקני ATS (הפעלה אוטומטית של המילואים), אם בכלל;
חָשׁוּב! אם יש ספק כוח אוטונומי במערכת אספקת החשמל, עליו לבוא לידי ביטוי בתרשים השורה היחידה ללא כישלון.
- מכשירי מדידה לאנרגיה חשמלית המציינים את יחס הטרנספורמציה של שנאי הזרם בעת שימוש במונים הפועלים בזרם משני של 5 אמפר;
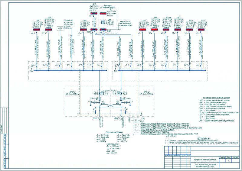
- מידע על כל ארונות ההפצה הקיימים במתקן, הן ציוד כוח והן מערכות תאורה;
- אורך קווי החשמל העיקריים עם ציון של מותג הכבלים, החוטים ושיטות הנחתם;
- פרמטרים טכניים ומצבם במצב העבודה של כל התקני הכיבוי האוטומטיים, הכוללים מתגים אוטומטיים, RCD ונתיכים;
- נתונים על כל העומסים החשמליים המחוברים לציוד המוצג בתרשים, המציינים את הספקם, הזרם וה- cos ϕ.
שלבי עיצוב
נוכחות של תרשים אספקת חשמל בקו אחד היא תנאי מוקדם לקבלת אישור לחיבור אובייקט הבנייה לרשתות של ארגון אספקת החשמל, לכן לפני שתמשיך בפיתוחו, יש צורך לבקש תנאים טכניים.
בהקשר זה ניתן לחלק את כל העבודות על תכנון תוכנית הכוח למספר שלבים:
- בקשה וקבלת מפרט טכני;
- פיתוח תרשים אספקת חשמל בקו אחד המבוסס על המסמכים שהתקבלו;
- תיאום התיעוד המפותח בארגון שהוציא את המפרט הטכני.
כללי רישום, דרישות GOST
בעת עריכת תרשים אספקת חשמל בקו אחד, יש צורך לעמוד בדרישות GOST המסדירות תהליך זה, כלומר:
- GOST 2.709-89 “מערכת אחידה לתיעוד תכנון (ESKD). ייעודים קונבנציונליים של חוטים וחיבורי מגע של אלמנטים חשמליים, ציוד וחתכי מעגלים במעגלים חשמליים ";
- GOST 2.755-87 “מערכת אחידה לתיעוד תכנון (ESKD). ייעודים גרפיים במעגלים חשמליים. החלפת מכשירים וחיבורי קשר ";
- GOST 2.721-74 “מערכת אחידה לתיעוד תכנון (ESKD). ייעודים גרפיים מותנים בתכניות. ייעודים לשימוש כללי (עם תיקונים מס '1, 2, 3, 4) ";
- GOST 2.710-81 “מערכת אחידה לתיעוד תכנון (ESKD). ייעודים אלפאנומריים במעגלים חשמליים (עם תיקון מס '1) ".
אפשרות העיצוב לדיאגרמת אספקת חשמל בקו אחד בהתאם ל- GOST אלה מוצגת באיור הבא.
סמלים המשמשים לשרטוט דיאגרמות של שורה אחת
כל האלמנטים של מערכת אספקת החשמל מוצגים בתרשים בצורה של תמונות גרפיות, המוסדרות על ידי הספרות הרגולטורית שצוינה בסעיף הקודם של המאמר. קופסאות חשמל וארונות למטרות שונות מתוארים כדלקמן.

על מנת לברר כיצד לערוך נכון את תיעוד הביצוע, יש צורך ללמוד את כל הדרישות של GOSTs או להשתמש בתוכנת מחשב מיוחדת שתיקח בחשבון את כל הדרישות הללו במצב אוטומטי בעת השימוש בה.
תוכניות לביצוע תיעוד מנהלים
נכון לעכשיו, על מנת לערוך דיאגרמה מפותחת של שורה אחת בהתאם לדרישות GOST, מספיק רק שיהיה מחשב אישי ותוכנה מיוחדת המאפשרת לך לבצע את העבודה הזו. ישנם מספר סוגים של תוכנות מחשב המיועדות למטרות אלה:
- "מצפן-חשמלי" - תוכנית חינמית, די קלה לשימוש, פופולרית בקרב מהנדסים וטכנאים העובדים בשירותיו של מהנדס הכוח הראשי של מפעלים בעלי פרופילים שונים.
- מיקרוסופט Visio - תוכנית חינמית שאנשים משתמשים בה בדרך כלל בעת ערכת תכנית אספקת חשמל לבית פרטי או דירה באופן חד פעמי.
- "ערכת 1-2-3" האם תוכנית חינמית פופולרית בקרב סטודנטים וטכנאים שאפתנים.
- "נשר" - התוכנית מיושמת בחבילות בחינם ובתשלום, שונות ביכולות הטכניות שלהן.
- DipTrace - התוכנית משמשת לעריכת מעגלים חשמליים וציור מעגלים מודפסים המשמשים לייצור מכשירים אלקטרוניים.
- "AutoCAD חשמלאי" - אחת התוכניות המפורסמות והנפוצות ביותר המשמשות הן מעצבים מקצועיים והן משתמשים רגילים עם ניסיון מספיק בטכנולוגיית מחשב.
וידאו: טיפים של חשמלאי מנוסה
בסרטון זה נספר כיצד להכין ערכת אספקת חשמל בקו אחד לבית המבוססת על מרכזייה תלת פאזית.
ואם יש לך שאלות למחבר המאמר, אל תהסס להשאיר אותן למטה בתגובות.

































